项目背景
在过去的十年里,人们对健康和福祉的各个方面的兴趣与日俱增,设计师们也没有例外。大部分讨论都是围绕提供空间来支持健康观念以及更成熟的医学和治疗形式,通过个人优化和自我保健以及增加社会中代表性不足的群体的可及性,可持续性和健康材料的使用更是另一个受持续关注的问题。
新世界集团旗下的大健康产业品牌Humansa,旨在中国香港及大湾区建立一个突破性的预防保健和保健生态系统,以满足疫情下新兴市场的需求。它通过提供多样化的健康和保健服务,如医学影像、牙科、内窥镜检查、营养学、物理治疗和高性能培训,针对妇女和儿童、高管、体育表演者及其家人实现广泛的健康目标。

概念图
01
主入口与洽谈区
MAIN ENTRANCE & NEGOTIATION AREA


第一个多功能旗舰中心不是典型的医疗环境,而是采用“亲生物”的方法来创造健康和保健的“可持续中心”。水磨石地板、硅藻泥墙和竹子等可持续、耐用和可回收的主要材料被应用在繁忙的市中心创造一个城市休憩之所,目标是提供一个自然和平静的空间,以改善客户的健康、福祉和状态。

它是业内首个获得享有盛誉的 BEAM Plus Interiors Platinum 评级的项目,该评级是香港绿色室内环境的整体认证系统,评估基于以下标准:创新、室内环境质量、材料应用、能源和用水、绿色建筑属性和物业管理。




在接待和洽谈区,客户的旅程从一条竹廊开始,水光投影映入眼帘。一个充满自然光的多功能等候区,提供灵活的沙发设置和全高的咨询亭,与有机造形的配药房互相辉映。




02
体检及影像区
PHYSICAL EXAMINATION AND IMAGE AREA


体检、物理治疗包间均采用有机造型,分别由天然饰面硅藻泥墙或半磨砂玻璃组成,给予人性的空间和生活感。





03
饮食顾问区
CATERING CONSULTANT AREA




自然光、干燥的植物、绿色的草坪座椅和竹屏风为饮食顾问区的零售和营养咨询活动提供了平静和休闲的时刻。



04
物理治疗与健身区
PHYSICAL THERAPY AND FITNESS AREA



草坪般的乙烯基地板健身区面向海港和水磨石覆盖的个人更衣室,完成了全新的医疗体验。竹屏风为不同的训练区域增加了更多的私密性,让用户在锻炼的同时与大自然联系起来。





这场全球流行病成为了现有大健康概念的催化剂,也是对健康的室内空间进行全新的、全方位的重置。推广健康和福祉空间的建筑和设计不断发展,我们希望这个项目的用户能够在一个过去可能不会出现这种情况的地方发现这个新概念,成为感受难忘的健康和福祉功能的群体。



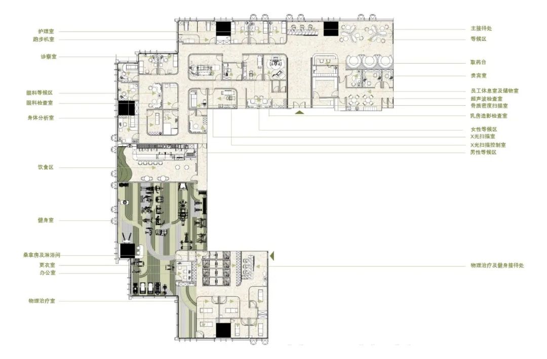
平面图
DESIGN PLAN

项目信息
ABOUT THE PROJECT
项目名称 | HUMANSA
地点 | 香港
客户 | 新世界发展有限公司
空间设计 | PANORAMA泛纳设计集团
总设计师 | 潘鸿彬
设计团队 | 梁明晖,潘敏霞,黄诗淇
摄影师 | 吴潇峰, etoN
年份 | 2022年10月
面积 | 1400平方米


潘鸿彬
▪ 香港泛纳设计集团创始人
▪ 香港室内设计协会会长
▪ 香港设计中心董事
▪ IFI国际室内建筑/设计师联盟2011-14执委