平时都给别人做设计,设计师自己的家又是什么样的呢? 看过他的家你就知道了——高颜值只是标配,居住体验非常nice!
房屋信息
屋主:dylan王小野(男屋主)&半夏(女屋主)
户型:2室2厅
使用面积:90㎡
装修花费:25w
城市:中国上海
这是小野婚后第二套房子,因为从事的是设计行业,装修第一套的时候,从设计全套图纸到现场监工、跑市场买建材都是亲历亲为。
有过第一次装修经验后,这次的新房装修也算比较顺利,前期设计大概一个礼拜不到就全部搞定,后期施工将近三个月。
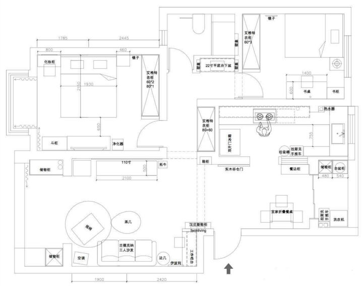
户型图

南北通透的户型,比较正。卫生间干湿分离是后隔出来的,原本北阳台是通到厨房外的,把它隔掉了,加大了厨房的面积,缩小北阳台的面积。
玄关

进门第一个镜头,谷仓门。
设计的时候,最头疼的就是一进门大白墙。后来网上看到了谷仓门这个神器,用来做厨房门还正好装饰了这面大白墙。

置物架是老房子带过来的,用了四年依然如新,尺寸放这里也恰到好处。

大门贴了毛毡,鞋柜是宜家的汉尼斯,这款鞋柜比较高,如果要上面做插座或者开关的话,一定要提前设计好高度。
客厅

客厅全景,磨蹭半年多才布置ok。

鞋柜和吧台的隔墙是新建的轻质隔断,这个吧台下面实际也是个鞋柜,全部都是屋主的鞋子。

吧台的这面墙是用了芬琳的黑板漆,平时办公都在这个区域,右边的置物架是宜家的伊波利,好看又便宜(可惜已经停产了)。

吧台的立面图,原本打算两层一样尺寸的隔板,后面改成了一长一短的,稍微增加点层次感。

客厅和南阳台是打通的,当初看到户型的时候,就坚定了要把阳台做到客厅里。

宜家的这款沙发颜值挺高还不贵,性价比挺高的。

家里打扫卫生的神器,设置好时间定时打扫全屋,下班回家后地板干干净净。

来我家的客人,都会第一时间选择坐这个摇椅。名族风的地毯和这个老房子带回来的抱枕很配。

客厅没有用电视,直接上了激光投影110寸抗光幕,效果棒棒哒!再陪上了小米环绕音响和低音炮,可以随时在家看大片了。

一直都很喜欢小米家的家居产品,家里也有不少。强力安利小米这款小吉冰箱,用来放饮料,平时看电影,待客,拿饮料超级方便。

客厅铺的是人字拼实木复合地板,阳台用的是拼花木纹砖,中间的接缝用的是5mm宽的黄铜条。

当初执意要把客厅和阳台打通,实际效果非常正确,阳光撒一地,坐在懒人沙发上可以发呆一下午。挂毯是定制的尺寸,画面是半夏自己设计的。后面是一个空调外机的窗,用来遮丑。

坐在懒人沙发上喝一个下午茶,享受放空的午后。
餐厅

▲餐厅全景

▲从餐厅往客厅的全景

餐厅的面积比较小,老房子家里用的是宜家的折叠餐桌,拿过来用正好,还能放下一个餐边柜,当人多的时候还能拉出来坐6人。

这款餐边柜原本是一个鞋柜,根据家里的尺寸要卖家特制的,柜底下四个角是自己另外配的。

餐边柜上基本是一个饮水台。窗台上的木板是自己定制的一块橡木板。

餐厅墙面上方是一个电表箱,洞洞板遮丑*法大**好。

洞洞板上的袋子里的干花是自制的,家里基本上都是干花(因为鲜花实在养不活)。

餐厅和北阳台之间做了三联动的长虹玻璃,透光不透视,平时拉上后外面根本看不见里面,当窗帘用一举两得。

宜家的这款网红推车,用过的都知道,便宜又好用,特别是用来吃火锅太合适了。

bruno的深锅盘第一次开锅,用来吃火锅太棒了,适合2-3人食。有颜又好吃,吃出仪式感。
厨房

厨房是半敞开式的,谷仓门基本上不关,装饰作用大于使用性。为了让厨房更通透,建了半高的墙,上面做了田字格玻璃窗。

橱柜用的是宜家的,价格真的不便宜,但是使用下来的感受还是很好的。

热水器用了汽车贴膜,效果棒棒的,包水管的那面墙是宜家的挂杆,直接拿免钉胶固定的。

双门冰箱是海尔的,性价比很高,家里两个冰箱分工明确。
家里的冰箱目前还挺干净的,但我觉得自己心目中的冰箱的样子应该是贴满各种冰箱贴,期待以后的样子。

厨房抽屉收纳。宜家的抽屉很好用。

最好用的当然还是宜家的这个调味拉篮,把花花绿绿的调味瓶都收进里面,台面干干净净。
由于厨房的宽度尺寸问题,没法做u形橱柜,特别定制了一款深度只有34公分置物架。

大单槽用起来真心爽,高低台也很重要。

我只是一块清洁海绵

平时在家也经常下厨,基本都只是一些简单的菜,偶尔也会烧一两次大菜。
卧室

家里的卧室面积还不算小,平时晚上最爱躺在床上看电影,后期可能会考虑把卧室的电视机也换成激光投影。

卧室整体的成本是家里最便宜的。

床头柜和两幅装饰画都是老房子拿过来的,梳妆台是工厂尾单拿到的货,才500元。

全身镜和床头柜都是老房子拿过来的,用了四年了还保护的很新。

家里一共三个衣柜,都用了宜家最日天的神器“艾格特”,谁用谁知道。

电视柜和斗柜也是老房子搬过来的,由于白色的家具不耐脏,台面都已经花了,定做了两块皮垫垫在上面焕发了第二春。

一款自带表情的斗柜(^_^)

飘窗上根据尺寸定做了一块软垫,坐在上面晒太阳无比舒服。
次卧

目前是书房,以后作为儿子的房间。

家里的两个床都是宜家的,性价比都比较高的两款。



书柜是定制的,桌椅都是宜家,其它小摆件都是从老房子搬来的。

大爱洞洞板和壁龛,装饰与收纳能力都兼具。

次卧的衣柜当然也是宜家的艾格特。
走廊

家装的真谛就是榨干每一寸空间,虽然家里没有衣帽间,但是在走道上隔出了一个衣柜,也就是家里的第三个衣柜。

走道上的衣柜内部供参考,宜家艾格特简直日天好用,衣服全部挂起来挑选起来太方便。
卫生间

卫生间是自己隔的一个干湿分离,卫生间门做的是玉沙玻璃开门,黑色不锈钢门套。

干区为了更大的储物空间,上面做了吊柜,两边做了壁龛。
干区的边上是次卧,干区走道的天花顶上设计了筒灯,但基本不爱用,都喜欢用这个“小太阳”圆镜照明。

晚上洗手台的效果
两边都做壁龛的好处就是收纳能力无敌。

台盆柜抽屉收

台盆柜下方用来放清洁用品和洗漱品备货

干区的立面图,想了解尺寸详见这张图

入住后把卫生间升级到了2.0,毛巾架用了更大的,能放更多毛巾,配套的金色小推车甚是欢喜。


马桶是无水箱的智能马桶,自动感应冲水,座圈加热,满满提升幸福感。垃圾桶也是智能的,踢一脚或者手放上面就能自动开盖,非常方便。

根据家里老房子的习惯,必须用浴帘,不仅不需要搭理,脏了换一块就行,而且可以随时更换喜欢的样式。

浴室里也做了壁龛,不用墙上挂各种置物架,整体更干净许多。

收纳好帮手,这个拿毛巾架挂拖鞋很实用。

颜值控必须要用的隐形地漏,长条形的下水能力更强。
阳台

家里的衣服晾晒也是在北阳台,碰上阴雨天就直接拿洗衣机烘干。

阳台正面照,家里的工作阳台就在这不到三平米的北阳台,兼备各种功能于一体。

洗衣机是小天鹅的洗烘一体机,老品牌值得信赖。

家里第二辆宜家的小推车,真心实用。

置物架是在工厂拿的费木料让木工裁切的,成本就是配了两个隔板的托架。

同时还是一个种植植物的区域。

洗衣机对面做了一个杂物柜,用来存放清洁用品。
活在当下,热爱生活,这就是家。