
我们追寻的好设计,不是流露于卓越的视觉表象,而在于细细品味,你必须融入进去,体验如同清风拂过的痕迹,如同潺潺水音缓缓淌过心头,这一切都存在于不易觉察的室内细节与整体氛围的营造。——Bloom Design绽放设计
Bloom Design绽放设计 立足于设计之都深圳,合伙人李宝龙和陈小虎分别担任团队的创意总监和设计总监。绽放设计致力于时尚领域的品牌设计,设计范围涵盖商业空间、时尚品牌零售空间和品牌视觉形象设计等。拥抱时尚,但不追赶潮流,绽放设计善于营造中国时尚品牌独有的空间格调,他们以一种温和的偏执,坚守着本心的温情。
他们的作品,总能够以本色肌理触碰人心,那些简净的空间,有希望、人性、尺度、温暖和对自然的开放,呈现友好、亲切、接纳的能量振频。空间原始的质感仿佛经过了时间的提炼精粹,让那些最精纯的意识碎片不断融汇交集,呈现出更丰富的内涵和蓬勃的生机,那是一种更加内敛的张力,这样的感官体验,在斯泰纳的东方自然精神、安藤忠雄的清水混泥土中亦能觅得踪迹。
时光简净如水
陆利餐室
我们追求的设计就是不经意,不刻意,因自然而动人的呈现。——Bloom Design绽放设计 陈小虎
时光简净如水,一蔬一饭,皆是生活;岁月终成诗篇,一饮一酌,话说虔敬安详。
陆利餐室位于深圳湾科技生态园,这是个新兴的企业聚集区,产业生态、经营生态和环境生态深度融合,区位价值和发展空间都处于上升期。Bloom Design绽放设计在此打造一片简约静雅、自然明洁的安静场所,呼应园区生态主题,让奔波于尘世中的忙碌人群能拥有一片远离喧嚣、收起浮躁内心的静宁天地。
从走进餐厅的那一刻起,就能感觉到,心中某个不为人知的部分,在其中找到了轻松的慰藉。入口处是一片玻璃帘幕水景,清浅的水流自上而下缓缓淌过,隔绝室外的喧嚣,也让自然的宁静与清透潜入心田。
整体环境优雅,清净有格调,白色与浅淡的灰色交织,自然无痕,低饱和度的石材色彩,温柔细腻的空间质感,在每个人心目中会产生不同的记忆与情感的共鸣。素白的桌布承接着轻软的灯光,深木色的餐椅散发着和敬清寂的禅意。天花和灯光设计是设计师的心力聚集处,一枚小小的天花槽灯亦价值不菲,只为在不经意间凝聚空间精粹细微的感受,制造沁心体验。
餐室设有独立包房和吧台,均不拘泥于对华丽外表的追求,而专注于宁静深邃的内心世界,身处其间,无论浅酌还是细语,都是自然的流露、惬意的体验,让人想起小津安二郎的黑白影像,又像一阕深远的钢琴小品,低吟浅唱生活的静好。
穿过吧台可进入后院的室外就餐区,那里静植着几株翠竹,整个空间的氛围舒适放松,让人心生清新的愉悦。
陆利餐室 平面图
陆利餐室 立面图1
陆利餐室 立面图2
“白”设计
Bloom Design Studio
每一次,我都不是在做一组有形的空间规划,每一次,我都在构建一个心中的美好世界。—— Bloom Design绽放设计 宝龙
来到Bloom Design绽放设计, 印入眼帘便是静寂的白色外墙,和悬浮于墙面的同色系LOGO,通过光影叠加,呈现出耐人寻味的层次感。
“白”设计,即是白色充斥着整个空间——白色的地、白色的墙、白色的玻璃隔断、白色的桌椅、白色的麻布吊帘,还有满溢的白色阳光与空灵音乐,这一切都会让人感觉放松与平静。
办公区连续的橡木框玻璃飘窗设计,使整个空间显得通透明亮。Studio的创意总监宝龙说:“光是有生命的,从早到晚随着光线变化,空间中的光影流转可以让你感受到时空的流动感。”
“白”设计,看不出刻意设计痕迹——原始水泥柱、裸露的天花、复古的红砖墙,一切感觉好似未经雕饰。Bloom Design绽放设计联合创始人小虎说:“我们追求的设计就是不经意,不刻意,因自然而动人的呈现。”
红砖墙延伸至走廊,过往项目中曾经使用的设计元素整齐的陈列在走廊陈列架上,讲述着每一个项目所经历的故事。室内各式茂盛植物自然肆意生长,与户外郁郁葱葱的绿树遥相呼应,偶然间还能听到几声鸟叫,平时员工就像坐在植物园中工作,思绪开阔,灵感不绝。
怀着一颗对自然的敬畏之心,Bloom Design绽放设计师法于自然,始终在探寻一种简单的美好和真实的感动。在这里逗逗猫、浇浇花、喝喝茶,回归单纯,日常而自然。
“白”设计 平面图
会呼吸的蛋糕店
玛莉叶洋菓子
将设计的根植入大地,才能长出参天大树。—— 余平
玛莉叶在日语里面代表着亲近,代表着人与人之间亲密的联系。玛莉叶首家传承店隐逸在深圳上梅林具有年代感的老社区一楼,脱离喧嚣,闹中取静。
对于Bloom Design绽放设计 团队的宝龙和小虎而言,每个项目都是一个与众不同的故事,而这个项目则是要通过设计语言讲述64岁的玛莉叶品牌创始人丸山师傅一生只做一件事,对蛋糕制作技艺的不懈追求,力求做到完美极致的职人精神。
绽放设计秉承玛莉叶品牌40多年坚持“甄选纯天然食材做最好吃蛋糕”朴质的经营哲学,在设计中保持高度克制,怀着对自然的敬畏之心,大面积留白,借用大自然中未经修饰的天然元素点缀,创造虚实相生的体验空间来诠释玛莉叶品牌简素、内敛的气质。
空间中取自矿山表面荒凉的石材以及带有泥土气息的空间质地,天然朴质的原生木料,传统复古的水磨石地面,彻底摒弃一切装饰与华丽,都是为了追求高度真实且单纯自然的美。窗外的老树透过狭长的玻璃幕墙与店内巨大的原生石块相映成趣,让自然回到城市,让顾客沉浸在自然之中远离喧嚣。用心去体会一杯台湾冷泡茶,一份日式洋菓子,一段闲适的下午茶时光,给生活带来的特殊质感。
这一切都以玛莉叶品牌所追求的天然健康的理念为依据,大地的色彩,自然的肌理,素雅的店铺陈设,自然的元素点缀。绽放设计用极简的视觉语言和设计手法传达东方语境下石似山、木成林的多层次意境。让消费者体验到一个如自然呼吸般存在的体验空间,存在于纷繁的都市之中,简淡而稀缺。
玛莉叶洋菓子 平面图
刹那间的印象
The Fashion Door
概念店
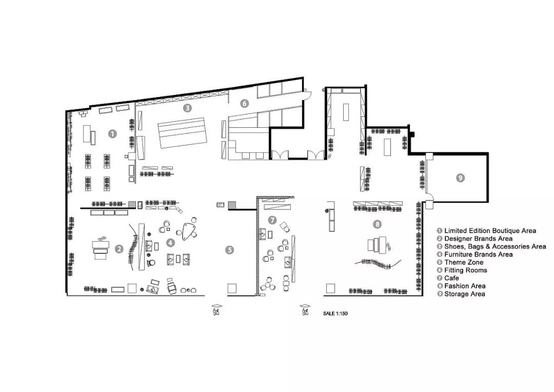
坐落于广州8090荟潮坊的TFD旗舰店,是一间汇集世界原创潮流品牌和国内新锐设计师创意作品的多品牌集成店,面积近2000平米的国内首家专营店。
独特的购物空间由Bloom Design绽放设计 与TFD 团队联手打造,以简约、开放和包容的设计理念,结合几何、立体、直线等元素,以突出每个独立品牌各自的个性和格调,更有每月更新的设计师主题展示区和休闲惬意的咖啡生活馆,带来别致的消费体验。一尚门以独特的想象力,把多维时尚风格进行有效组合,代理多达60多个品牌的上千件单品,品类涵盖男女服装、鞋包、配饰、家居用品、趣味玩具、个性IT产品等。
设计师用最简单的建筑材料:水泥、粘土、钢材、原木……将基础材料发挥极致,打造最独特的空间。通过被分解的形体与背景相互交融,使整个空间布满以各种垂直、倾斜及水平的线所交织而成的形态各异的块与面。在这错综复杂的网络结构中,品牌形象只是慢慢的浮现,可即刻间便又消解在纷繁的块面中。硬装的色彩作用在这里被降低到最低程度,而视觉上似乎仅有单调的黑白灰色,设计师所要表现的是线与线、形与形所组成的结构,以及由这种结构所发射出的张力。这样才更突出每个设计品牌最精彩的地方。


The Fashion Door 概念店 平面图

Bloom Design绽放设计 立足于设计之都的深圳,合伙人李宝龙和陈小虎现分别担任团队的创意总监和品牌总监。绽放设计团队致力于时尚领域的品牌设计,设计范围涵盖商业空间,时尚品牌零售空间和品牌视觉形象设计,是一家整合多元化创意服务的机构。

李宝龙(创意总监) | 陈小虎(品牌总监)
多年的时尚品牌服务经验使团队的时尚嗅觉更加敏锐,对新项目更热情专注。绽放设计团队积极探索艺术与商业的创造性结合,为客户提供创造性的解决方案。凭着丰富经验及突破性的设计手法,成功地为诸多商业品牌创造了极具竞争力与启发性的多维品牌体验。