前言
写新风机已经挺长时间了,说真的当年第一次开始DIY新风机的时候,绝对想不到会坚持到现在,也不会想到能做首生,更没想到《新风知识科普》已经开始写第十三篇,想不到的事情很多,前几天和好友同时也是首生的朋友聊天,我说,如果我想给自己打个标签,我该如何定位自己?
他轻笑一声“呵”
你是值得买首席生活家,XXX副舵主,资深评测师,传媒职业,职业撰稿人。新风机评测大师,评测和使用过200到2万元各类新风机。经常获得值得买首页推荐,连续获得值得买年度生活家身份。
呃,如果我真把它作为自己的宣传标语,似乎有点太不要脸了。 开开玩笑,现在是个朋友都知道我一直在写新风机原创,聊了那么多,把今天要写的讲一下吧,一直想写但是没时间的一篇,新风机安装位置的优劣。

首先,你需要确定的是你需求是什么,是全屋净化呢?还是针对性单屋净化兼顾全屋。是对CO2有更高要求呢,还是除甲醛。
请根据思维导图观看自己需要的部分

在文章开始之前先聊聊这次疫情中土豆厂家的表现,其实之前的原创就想写的,本人觉得愿意帮助大家的企业,不管能力多少,只要愿意去做,都是值得表扬和赞许的,当然也遇到了不少奇葩的事情,这个后面说。
大家都知道疫情开始爆发后,基本上就如图片上的日期,1月24开始,KN95基本上市面上就难得一见了,土豆厂家通过自己的渠道,找到了5000只KN90口罩,品牌为锦绣粤兴。疫情没爆发之前,这些口罩其实都是便宜货,但是疫情爆发之后,(图片取自于朋友圈)



当然,本人还要“感谢”那些“拒收的”(因为是顺丰到付21RMB,口罩免费)土豆厂家也给我发了12个KN90口罩,也算是帮了我一把。
而第二批5000个口罩因为成本实在受不住,上架成本价销售,但是土豆厂家收到货后发现为库存,且可能受潮导致口罩的金属部分有锈蚀,担心霉菌问题,在忍受着冷嘲热讽和白眼中,一个一个解释,一个一个说好话让用户退款。作为旁观者,也是十分理解厂家的难处。仔细看包装盒和拉带的金属卡扣,已经生锈。

而且关于口罩的事情告一段落,土豆新风厂家就想着回馈大家,对前线民警和医务工作者最高600RMB的优惠活动,并且老用户凭订单和工作证免费领过滤器一套。

土豆super EPP版会在疫情过去之后发布,可惜的是万年不变的外观依然是,没有变化。



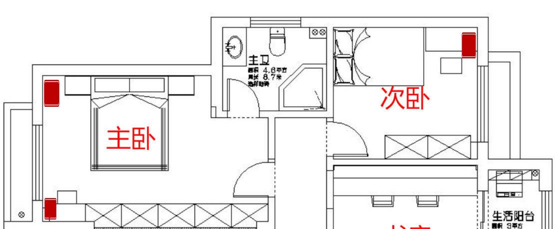
案例1:约120㎡建筑面积
非常典型的房屋结构,尺寸不大,但非常紧凑,三室两厅两卫。
结构图展示,分析
主卫,公卫为非净化区域,厨房也是,原因在之前的文章中已经提过了。
总的需要净化面积大约为75㎡,需要净化的体积约为201m³,那么最佳风量应该在200~250m³/h,非常紧凑的结构,利用率很高。

房子分布如下

安装区域建议1
一台全屋净化:建议风量200m³/h以上
主选安装区域:书房,阳台
备选安装区域:主卧,次卧,小孩房。
安装分析:新房主考虑甲醛,建议安装位置,阳台,直接安装小孩房更好,但是无法兼顾主卧次卧和书房,退而求其次安装于阳台,根据房屋密闭性调整各区域窗户开度;若暂时无孩子,小孩房安装是最佳方案,因为暂时不住人,小孩房可以作为缓冲区,解决冷/热风直吹的尴尬。等有孩子以后,白天不在房中也可以作为全屋净化高档运行,而夜晚则需要调整到低档位运行,那么后续可能需要考虑在主卧,次卧,或者书房,阳台再安装一台用于全屋净化。
额外建议:第一台也可以安装于阳台,若有孩子之后,在小孩房安装一台热交换壁挂新风机。
产品建议:土豆super新风机,土豆MAX新风机,小米新风机等。
土豆super产品优点,成本相对较低,噪音低,档位合理,风量大,支持米家。
土豆MAX产品优点,成本低,滤芯面积大后续成本低,支持米家。
https://s.taobao.com/search?q=%E5%9C%9F%E8%B1%86%E6%96%B0%E9%A3%8E%E6%9C%BA&imgfile=&js=1&stats_click=search_radio_all%3A1&initiative_id=staobaoz_20191124&ie=utf8
小米产品优点,价格较低,支持米家。
https://detail.tmall.com/item.htm?spm=a230r.1.14.13.324e4d19HMZq9x&id=591773727988&cm_id=140105335569ed55e27b&abbucket=9
安装区域建议2
多台全屋净化:建议单风量60m³/h及以上,最大运行风量100m³/h。
主选安装区域:主卧一台,次卧一台,小孩房一台
备选安装区域:小孩房一台,主卧一台
安装分析:这种方式主要针对气体污染物,每个房间不需要太大的风量就可以有效保证甲醛和CO2的低数值,缺点是投入大,成本高,需要打孔的位置较多,仅打孔和安装就需要付出较高的成本,以此案例为例,三个孔包括安装,即使每个孔,配件和安装成本为300RMB,最终仅安装也需要900RMB的费用,而新风机本身的费用也是×2,×3甚至×4这样,如果更贵,那么总费用也会水涨船高。
多点安装也不是全无好处,机型越多,单个机型所需要的风量也就越低,低风量直接带来的好处就是滤芯寿命的增加。以本人朋友的案例,一台连续运行了12个月的土豆MAX,出风口依然低于1μg/m³,直到14个月开始才有明显的过滤衰减。
产品建议:土豆mini壁挂新风机,米家新风机A1,递安3S壁挂新风机
https://s.taobao.com/search?q=%E5%9C%9F%E8%B1%86mini%E6%96%B0%E9%A3%8E%E6%9C%BA&imgfile=&js=1&stats_click=search_radio_all%3A1&initiative_id=staobaoz_20191124&ie=utf8
https://detail.tmall.com/item.htm?spm=a230r.1.14.6.22f875caxEXJam&id=602997497132&cm_id=140105335569ed55e27b&abbucket=9
https://item.jd.com/19410123305.html
案例1总结
对于如此面积的房子是否需要那么多台新风机?以上其实都是从理论得出的结论,个人也只是抛砖引玉给大家一些建议,其实上面的房子本身结构来说非常之紧凑,所以需要净化的面积和体积实际上也并不大,所以个人的最终建议是,阳台安装一台土豆super,并准备一台CO2检测仪,对于关门情况下对各房间的CO2进行监测,如果CO2超标情况不严重,则一台即可,以个人经验来看,除非房子本身的气密性过好,或者过差,一台应该是足够的。实在不够等有了孩子可以在儿童房添置一台热交换壁挂新风机,以获得更好的体验。
案例2:约140㎡建筑面积
属于比较大的房子了,但高层结构也让公摊面积比较大,三室两厅两卫,少了儿童房,所以空间比较富余。
结构图展示,分析
总的需要净化面积大约为90㎡,需要净化的体积约为250m³,那么最佳风量应该在250~300m³/h,

房子分布如下

安装区域建议1
一台全屋净化:建议风量300m³/h以上
主选安装区域:主阳台,(书房)生活阳台,门厅。
备选安装区域:主卧,次卧,客厅
安装分析:因装修设计等原因,主阳台和客厅是没有做门来隔断的,所以不管是安装在主阳台,还是客厅,在使用上是没有明显差异的。而书房所在的生活阳台,个人认为是一个不错的点,可以说是非常不错,可以说是全屋净化新风机单台的最佳位置。首先,生活阳台和书房基本上成为一个相对独立的区域作为缓冲区域,不管是温度,气味,噪音来说,哪怕高档位运行,对人的影响也相对较小。当然,有得也会有失,相对较远的位置会对房屋的气密性和风量要求相对较高,寻找合适的档位和窗户留缝会是需要的注意点。

产品建议:土豆super,土豆MAX,352G30等。
土豆super,土豆MAX
推荐理由,实惠,后续滤芯成本低,300风量下噪音值很低,加上安装位置噪音基本上无感。
https://s.taobao.com/search?q=%E5%9C%9F%E8%B1%86%E6%96%B0%E9%A3%8E%E6%9C%BA&imgfile=&js=1&stats_click=search_radio_all%3A1&initiative_id=staobaoz_20191124&ie=utf8
352 G30壁挂新风机
推荐理由,机型较贵,但滤芯面积较大,滤芯更换周期更长些。
https://item.jd.com/5943067.html
安装区域建议2
多台全屋净化:建议单风量60m³/h及以上,最大运行风量100m³/h。
主选安装区域:主卧一台,次卧一台。
备选安装区域:主卧一台,生活阳台一台。
安装分析:卧室较少,所以每个房间上一台也不过两台,非睡眠时间两台可以随时调高风量以保证综合风量维持在300m³/h左右,而睡觉时候两台都开睡眠档,静音又舒适。
考虑到主卧和次卧衣柜的位置,如果不怕空间侵占,将新风机藏于柜子中间也未尝不可。(下图主卧左下角,次卧右下角)

产品建议:土豆super×2,如果是将新风机藏于柜中,则土豆mini×2或智米新风机。
土豆super
推荐理由,实惠,噪音优秀,后续滤芯成本低,支持米家。
https://s.taobao.com/search?q=%E5%9C%9F%E8%B1%86super&imgfile=&js=1&stats_click=search_radio_all%3A1&initiative_id=staobaoz_20191125&ie=utf8
土豆mini壁挂新风机
推荐理由,体积相对较小,不侵占空间藏于衣柜也不用考虑颜值,支持米家。
https://s.taobao.com/search?q=%E5%9C%9F%E8%B1%86MINI%E6%96%B0%E9%A3%8E%E6%9C%BA&imgfile=&js=1&stats_click=search_radio_all%3A1&initiative_id=staobaoz_20191125&ie=utf8
智米新风机
推荐理由,实惠,风量足够,体积小,最大综合风量超过300m³/h,支持米家
https://detail.tmall.com/item.htm?spm=a230r.1.14.6.446e5975nyYyc0&id=567326765498&cm_id=140105335569ed55e27b&abbucket=9
案例2总结:壁挂新风机隐藏化确实是一个极少人会谈及的方法,其实也是挺有意思的一种安装方式,这样你就完全不用考虑安装后的突兀感,颜值要求也就没那么高了,要说缺点么,基本上就要按照新风设备来定橱柜的结构了。
案例2总结
壁挂新风机隐藏化确实是一个极少人会谈及的方法,其实也是挺有意思的一种安装方式,这样你就完全不用考虑安装后的突兀感,颜值要求也就没那么高了,要说缺点么,基本上就要按照新风设备来定橱柜的结构了。
案例3:约70㎡建筑面积
小户型方案,户型小不过利用率很高,两室一厅,拥有两个阳台。
结构图展示,分析
相对较小的结构,所需要的净化区域也小很多,建筑面积预估在70平米左右,而需要净化的实际面积也不过50㎡出头而已

房子分布如下

在写之前聊聊对方寻找的某大新风给的方案,当然在我否掉之前,他先把某大给否了。为什么否掉?我们聊一聊。
第一,非待装房子,是已经装修过的老房子,并且没有再装修的打算。
第二,打孔必然会有损伤,损伤后厂家是否会管?如何管,如何处理?
第三,延续1,老问题,管子外露,你说咋办?
第四,就那么点管子,主机,打孔,投入就要15000RMB。(当然,没选所以没还价)

安装区域建议
一台全屋净化:建议风量150m³/h以上
主选安装区域:阳台B
备选安装区域:阳台A,卫生间右侧,客厅。
安装分析:比较典型的小户型案例,考虑过滤面积不大,小风量机型也是可以的,当然为了效率预留一定的风量也是有必要的,比如这家,预算充足的情况下推荐了352 G30壁挂新风机。
安装在此处的目的将阳台B作为一个缓冲区域,以解决高温,低温,气味的问题。当然客厅位置也是可以的。

产品建议:土豆super,352G30等。
土豆super多次推荐了不再重复。
352G30
推荐理由,对方终选方案。
https://item.jd.com/5943067.html
终选安装位置
最后对方并没有选择阳台B,而是客厅窗户的下面。
窗下,非承重结构,可以安心打孔。所以这个位置确实是可以的,不过因为设备过重,安装人员开始并不想安装在此处,因为怕不牢靠,G30也属于非常重的设备,最后用最长的膨胀螺丝安装后才放心。

三个案例推荐结束,对于用户除了需要关注价格,安装位置的选择确实是一个力气活当然这三个案例属于常见例子,本人也推荐了不少不常见的例子,我们下面继续聊。
遇到的问题
这部分是后添加的内容,是关于这个用户在安装完G30之后遇到的问题,而且非常麻烦,简单来说就是漏风,类似于下图这种情况,而且由于对方所居住的环境,晚上的风特别大,而气温又比较低,导致窜风降低了室内温度,所以让对方购买厚密封棉以解决此问题。

现在也比较理解为什么有用户需要风阀了,但我还是那个建议,建议将新风机摆放于人相对较少的区域,可以免除风直吹,或者是漏风的烦恼,没错,正常情况下,哪怕有一些漏风,也不至于像这位用户一样,吹到都感冒了。
特殊安装方式
当然除了以上,我也推荐过不少奇葩方法,实际上这些方法在FFU时期那么做的也大有人在。
新风机反装方案
如果在室外,你有地方安装新风机,而且防雨没有问题,那你就可以那么做。其实在往期评测中,本人也提过这种另类方案。

这个方案除了可以装室外,同样也可以装在阳台和客厅的隔断墙体上,当然,前提是你的墙体可以承受新风机的重量。

这样做有啥好处呢?
当你打开阳台窗户,关闭阳台和客厅的移门,那么它就是一台新风机。
当你关闭阳台窗户,打开阳台和客厅的一门,那么它就是一台净化机。
是不是很有意思?
如果你说你不需要净化机模式,就新风机就行,给新风机接风管到室外就可以了。对了,客厅可以做好看的小风帽以遮挡,既好看有可以做一定的遮挡,防止直吹。

这些方案都非常灵活,可以通过不同的方法和方案来安装新风机。
注意事项
- 反装需要支架,或落地,所以必须有空间。
- 室内墙体是否可以承受新风机的重量,需要注意。
- 反装于室外必须做好防雨工作,不然得轻则毁滤芯,重则毁机。
单进风新风机的风管设计
这种其实在FFU时期就有的思路,单进风新风机是否可以配合风管进行送风呢?理论上来说,完全可以。实际?先看看呢?需要注意的是,这仅仅推荐给待装修的用户。
思路是这样的,将壁挂新风机出风口设计一个法兰,将风引至各个房间,可以设计多风管,也可以单风管。
利用不同尺寸的风管将新风引至不同的房间,调节出风口的大小以控制到每个房间的风量,需要验证的是如此操作是否会有噪音问题,还有有可能的长期使用后的管道积尘问题。当然因为新风机的滤芯级别大都是H13,这个 问题相对于中央新风还是会好很多,别忘了中央新风可是需要回风的,滤芯级别也并非全部H13。
下图中红色方框为新风机,蓝色为风管,白框标注的为出风口。位置画错了,应该靠外墙位置。

关于新风的装修建议
另一种思路,记得本人在测试关于CO2的时候,发现的一些问题,比如门留缝和不留缝CO2的表现差异。

那么,难道就不能想个办法?每个房间比如门口位置在装修的时候留通气口?
怎么留?在设计吊顶的时候留呗,或者再安装门的时候,在门的上沿留一排缝隙呢?

比如,这样,你同样可以利用门边条做隐藏式通气口,反正藏起来你也看不到。

其他注意要点
除此之外,也并非一劳永逸,这些选项,大家 必须要注意。
气味问题
这个问题本人在多篇原创中都提过,但是似乎重视的人并不多,那么哪种人需要重视?
在新风机未安装之前,先请问个问题。
当地的气体污染情况严重吗?气体污染的味道重吗?
不重,从来没有味道过严重异味,好,新风机装哪里,你随意。
严重?不好意思,建议新风机远离人,越远气味越淡。
以本人为例,当地江阴是经常遭遇江北的“*弹核**”攻击。
焚烧秸秆造成的严重污染,真的不用我说太多。

这种攻击,基本上以非常重的焦味为主,如果恰逢您呼吸道感染,不好意思,影响加倍,本人就经历过一晚上睡不着的情况,一直在咳嗽,每一口呼吸都觉得快挂了,别笑,我不开玩笑,真的非常严重。
而将新风机安装于书房,在客厅或者睡觉的时候,并没有觉得不舒服,其实气味是存在的,但是因新风机在远端,所以这个矛盾点反而并不突出。所以如果你有这种潜在隐患,请寻找一个区域安装新风机,远离人,这会让影响减至最低。
房屋本身的密封情况,是否是高层结构
本来准备分开写的,最后决定放一起,中国房子的气密性其实大家心里都有数,本人与密封相关的原创种已经提及。
https://shimo.im/docs/vGVkRHcTGPRGWxRC
以最常见窗为例,大家看看就知道了。


从这点来说,推窗的气密性会好很多,但是便利性也会大幅下降,特别是阳台窗。

而高层建筑的强风问题,则会加重房屋气密性不足导致的漏风,这也是部分本人的粉丝在安装新风机后PM2.5下不来的一个原因。
而高层强风是基本上无法回避的问题,这也是为什么本人家中的气密性如此差的情况下,PM2.5依然可以控制的不错,但是我弟家就做不到的原因,而他家也才8楼而已。

如果更高,那么这个问题就会更严重。要解决这个问题,只能对部分区域加强密封,以减少风量损失,并开更高档位应对。
开孔部位是否剪力墙结构,是否有钢筋,混凝土
这个问题其实类似于中央管道新风系统的开孔问题,只不过壁挂新风机的问题相对小一些,中央新风的问题就会大得多了。
开孔部位检查是否有钢筋,可以通过一些检测仪进行检测后确定,如果有钢筋则会报警。

当然最简单有效的是找最初的施工图纸。
以下图为例,墙体黑色部分为剪力墙结构,是不能动的,包括打孔。

剪力墙(shear wall)又称抗风墙、抗震墙或结构墙。房屋或构筑物中主要承受风 荷载 或地震作用引起的水平荷载和竖向荷载(重力)的 墙体 ,防止结构剪切(受剪)破坏。又称抗震墙,一般用钢筋混凝土做成。

而一般来说,窗下结构基本上不承重,至少不承担房屋本身的重量,所以是可以进行操作的。

总结
今天这篇主要是聊了一下新风机安装位置的实战案例和需要注意的一些问题,文章写得比较详细,也基本上是有啥聊啥,至于CO2的测试记录和数据,还在进行中,还是因为忙,所以那篇到现在还没开始动笔,不过也就这几天了,最近气温下降,关于辅热一块的测试也要提上日程了,比如打开辅热后的总耗电情况等等。一件一件来吧,要写的东西还是很多的。
首生铭记,继续新风!