
屋是墙壁与梁所组合
家是爱与梦想所构成
——— 泰戈尔

// 设计理念

原始平面图

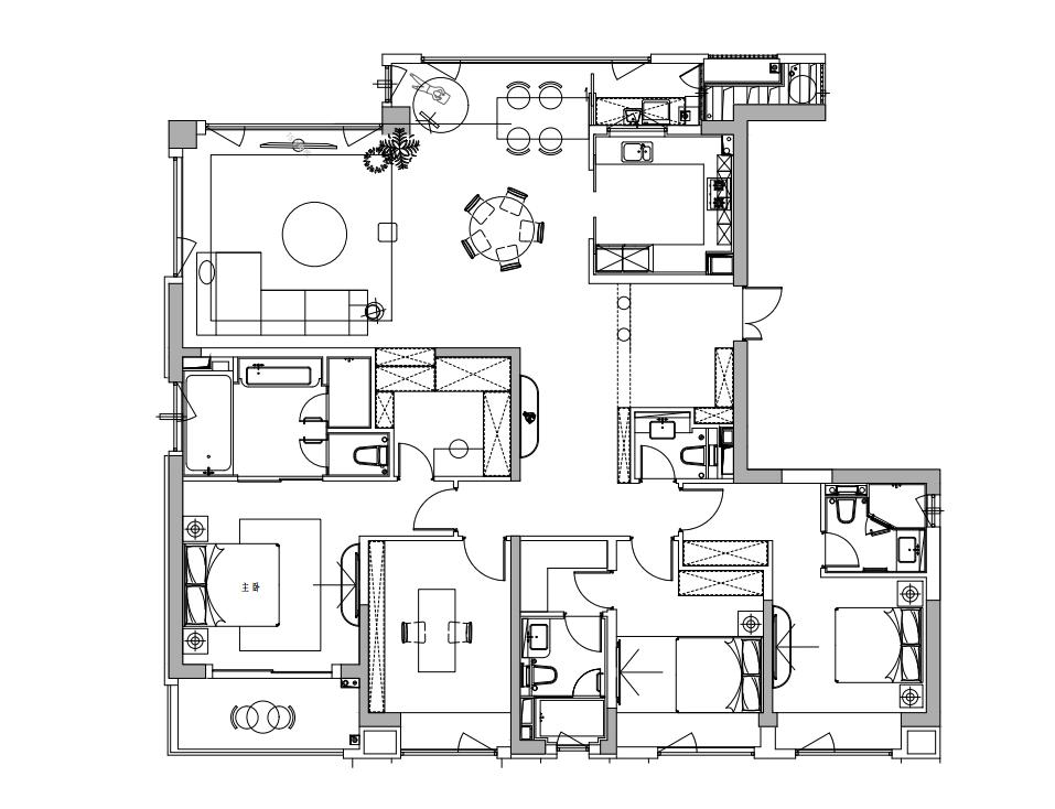
平面布局图

设计前

本案,位于中粮瑞虹·海景壹号,250㎡精装交付大平层,对于新家的期待,屋主希望是通透大方、耐看、有质感、有细节,且有一定的空间松弛度。
设计师结合需求定位现代法式的设计风格,结构上,通过合理的生活活动动线,与户外光线构成流畅的整体关系,更丰富的层次与质感则通过材质与纹理凸显出来。
现代简约的法式线条,搭配个性手工质感的深胡桃木雕刻,肌理感艺术漆的留白墙面,多种材质的碰撞,在空间中寻求美学平衡,低饱和度的配色,加上不同元素的运用,空间建立起韵律,体现了舒适悠闲之感。
// 玄关




原玄关储物间拆除后,用弧形拱形元素分隔出独立的玄关空间,设计柔美有趣味,同时又给空间增加些许设计感。
现代法式拱门作为框景使客厅半露,搭配BD BARCELONA玄关柜,无论是从外部结构上还是内部的装饰上,它都通过灵活的空间动线与室内外光线构成一种流畅的关系,艺术又高级。

cabinet tout va bien by antoine et manue
充满艺术和幻想的TOUT VA BIEN 餐边柜来源于西班牙BD BARCELONA DESIGN,由Antoine + Manuel设计,柜子是应用艺术、象形文字语言、当代图形、幻想和乐观主义的趣味混合。
// 餐厅



半开放式厨餐厅,更加注重互动与交流。南阳台打通后,一半作为吧台,可边吃早餐边看风景(楼下和平公园),另一半则作为儿童活动区。
吧台区,算是一个非常巧妙的小细节处理,既在视觉上做到隔而不断,又承担起连接空间的作用,避免了生活动线太过生硬。



整体浅淡的主色调,形成一种微妙的分离感,局部用橘色系点缀,赋予了空间生机与活力。简约的北欧风情水滴餐椅营造了轻松悠闲的就餐氛围。

餐厅灯来源于Catellani & Smith PostKrisi系列,造型多变,玻璃纤维和金箔创新性的利用让灯也能成为一件艺术品。半透明的纤维像晶莹剔透的燕窝,光线从裂缝中溢出来;顺着金箔纹理的光仿佛具有流动感,不开灯时也能熠熠生辉。
// 客厅




餐边柜借用部分主卧衣帽间空间,上半深胡桃木雕刻柜用于储物,下半放至壁炉,凸显舒适温暖的氛围感。



活动电视置于靠窗的角落,与轻盈的转角沙发,小巧精致的Cassina茶几,单人椅等围合成轻松的社交空间。LUCEPLAN 的长臂灯作为打破大空间的点睛之笔,十分具有张力和戏剧性。
客厅软装家居,除了最大化减轻视觉体量之外,也赋予了屋主更加自由的生活形态,以应对不同的场景需求。
空间的塑造与情感的表达息息相关,每个空间都在材质上有着微妙变化,但也同时在视觉上保持整体调性的一致,时间在这里积累下来的宁静,更容易成长为自身的底蕴与底气。
项目情况|
项目地址丨Address: 上海虹口
面积丨Area:250㎡
设计单位丨Company:上海示觉室内设计事务所
服务方式丨Service:硬装+软装全案设计服务,主材+软装代购及落地服务