随着城市的快速发展,都市新贵成为了精英的新定义,他们不盲目追求高贵和奢华,而是注重内心和自我,钟爱格调生活。紫光天府芯城位于天府新区,这里作为成都的CBD,汇聚着周边的都市新贵。元禾大千循从于此,用设计打造有格调的居所,诠释都市新贵艺术、时尚、优雅的生活态度。
A
摩登艺术家
法国知名建筑师夏洛特·贝里安说过,“居住艺术的延伸,便是生活的艺术。”元禾大千从都市新贵审美的取向出发,用设计打造艺术生活。

门廊

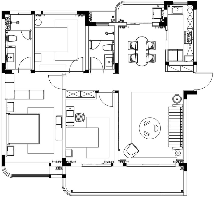
A户型平面图
摩登·朝气
在柔和的浅米色中,抢眼的红色赋予了空间热烈的朝气。极简的线条交织将原本方正的空间切割,与抽象画的线条呼应,摩登艺术的生活氛围自此萌生。






温暖·浪漫
在热爱艺术的灵魂面前,生活的烟火气也是美的。餐厅以浅色为基调,突显着空间的舒适感,家具圆润的线条柔化了空间的直角线条,用极少的红在空间中跳动,气氛温暖而浪漫。



极简·情怀
极简的室内没有堆砌,抓眼的几何单品充满了设计感,设计师将主空间的红色延续,在浅色的室内加以点缀,苛求每一处细节,是主人完美主义般的艺术情怀。





艺术不仅是装置的设计感,更是整体空间的气质。空间用线条主导,布以沉稳的深灰色,藏置着主人精心挑选的艺术饰品,无处不在的格调,形成一场不喧闹的美*运学**动。



艺术是成人的追求,而篮球则是男孩难以割舍的情怀,不论是玩具、装饰、还是抱枕,都昭示着孩子对篮球毫不压抑的热情,而这里,是一方只属于他的小天地。



B
轻奢优雅家
香奈儿传达过这样的理念:奢华并不是贵重和装饰华丽,而是摒弃粗俗。用优雅而不娇柔做作的空间,将品质都藏在细节中,是更加纯粹的生活方式。

门廊

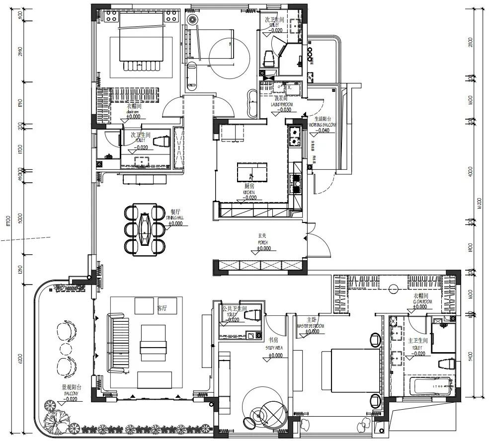
B户型平面图
安静·品质
设计师用内敛的色彩铺陈出安静的空间,低矮的家具拉伸空间线条,视野上更加大气宽阔,尽显室内温润的气质。大幅的置画,像轻轻搭在绅士的羊绒大衣上、被风扬起的围巾,让沉稳的空间多了一分灵动。




真正享受生活的人,不需要刻意地卖弄。室内极有质感的皮质沙发结合大理石与鎏金色,透着高级的奢华,而纯手工编织的阳台吊椅用手作的温暖为家注入了归属感,在日常物件的质感上彰显主人对品质的极致追求。






质朴·淡然
极简的线条、温暖的木作将自然的质朴之气渲染出来,再加入腐蚀金属,在通透而宽阔的空间中弥漫着历经洗礼后的岁月感,默默诠释着主人波澜不惊的淡然心境。





挂镜来自品牌Zieta Prozessdesign
宜动·宜静
书房空间方圆相济,直线和曲线交互出放松而惬意的生活氛围,以几何元素传达工作和爱好融汇无间。墙上艺术化的高尔夫挂饰是主人的兴趣所在,而书籍、电脑则勾勒出都市生活的样貌,展开了一方宜动宜静的空间。


独立·雅致
主卧布局独立,包含卫浴、化妆室、衣帽间,关上门即与其他空间分隔开来,自成一片天地。室内极简大气的风格延续自主空间,摈除了繁缛的装饰,用和谐而统一的色彩营造出雅致的生活空间。




空间·造梦
在孩子漫长的一生中,梦想是宝贵而难得的。在儿童房,设计师用浪漫的粉色和步入式衣柜装盛小小淑女的时尚憧憬,再摘取月亮和宇宙的元素布置空间,容纳孩子对宇宙的好奇与幻想。




项目全名: 紫光·天府芯城A/B户型样板间
项目地址: 成都市天府新区
软装设计: 元禾大千
硬装设计: 喆建筑设计咨询事务所
设计时间: 2020.05
完工时间: 2020.06
空间面积: 137㎡/230㎡
特别支持: 紫光海阔
摄影团队: 三棱镜建筑景观摄影