1.门窗发展历程
木窗→钢窗→铝窗→塑钢窗→断桥铝窗→新塑钢窗→铝木复合窗→……

国内门窗一般采用欧槽(欧洲标准槽口),一般分为C型槽口(铝合金)和U型槽口(塑钢)

欧洲的六种标准槽口一般都称为欧槽,其中以C槽最为常见,其代表是旭格槽、诺托,其次是阿鲁克槽,HUCEK槽等


2.断桥铝门窗加工工艺:
一、断桥铝门窗加工工艺:



1.门窗框45°组角拼装工艺
▼



2.门窗框90°组角拼装工艺
▼

3.门中梃拼装工艺—T字型梃
▼


4.门中梃拼装工艺—十字型梃
▼


5.单组份胶使用工艺
▼

双组份胶使用工艺

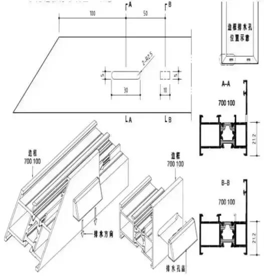
6.平开系列排水槽开设工艺
▼


7.三元乙丙胶条90°专用胶条装配工艺
▼

8.三元乙丙胶条90°拼接工艺
▼

9.加工阶段半成品保护
▼
『型材室内摆放』
- 型材加工前应贴保护胶带;
- 加工中的型材杆件应放入周转小车存放和搬运,禁止随地摆放和混放;
- 门窗半成品叠放时,应使用隔离垫使窗与窗之间有足够的间隙;门窗成品存放时应用保护胶带进行包裹,并使用厚纸板制成的保护角,捆扎在门窗成品四角
『成品的摆放』
- 产品应放置在清洁、通风、干燥的地方,严禁与酸、碱、盐类物质接触并防止雨水侵入;
- 产品严禁与地面直接接触,底部垫高应不小于100mm;
- 产品放置应用垫块垫平,立放角度不小于70℃。
『成品的运输』
- 装卸及运输时应轻拿轻放,严禁摔、扔、撞击。
二、塑钢门窗加工工艺:






3.断桥铝门窗性能
一、隔热性能:
建筑外门窗的热量损耗通过玻璃的辐射热量损失;通过框架型材的热量传导损失;通过门窗缝隙的空气对流热量损失;通过建筑门窗内外存在的温差和空气压力损失。





二、水密性能:
门窗渗漏原因分析:

土建洞口误差几种表现形式:洞口尺寸误差大;对角线误差大;企口抹灰不符合要求。
最好先用带钢附框安装方式,可有效避免上述问题。


安装质量导致渗漏的几种形式:发泡剂不密实,断断续续,内有空腔;密封胶质量不合格或施工前未清理尘土导致翘裂;密封胶条安装不到位;下侧打安装孔时易形成雨水渗入墙内的通道。
加强材料监管、安装人员的素质培训及现场施工监管力度,采用合理的安装方式可有效避免因安装所导致的渗漏问题。


三、隔音性能:
隔音性能遵循木桶原则,即整体性能取决于最薄弱的环节。
玻璃选择和玻璃安装方法包括:玻璃厚度和材料;中空玻璃空气层厚度和介质;中空玻璃不对称结构;玻璃安装方法。
框、扇的型材设计和与结构连接方法:型材的重量;型材可视面宽度;型材结构的不对称性;与结构的连接点数量;框扇锁点数量;加工质量。
建筑隔声性能要求:


最后,实地测试门窗的隔音效果。真中空玻璃门窗的隔音效果非常好,而假“中空”门窗的隔音效果则很一般。
4.计算断桥铝合金门窗生产成本的方法

断桥铝门窗市场价格的确很乱,乱的什么程度呢?就拿55断桥门来说吧,便宜的仅300到400左右一平方,而贵的呢,700到800一平方,甚至还有1000多一平方的,这之间差别到底在哪里?从外表看它们并没有什么区别,那问题到底在那呢?今天小编从材料、工艺和窗型三个方面来给大家做一个比较。

一,材料
1,型材
a、55断桥型材现在市场上厚度从1.2mm到1.8mm毫米都有,仅一根6米长型材仅因厚度不同,差价就有几十元之多。
b,大厂小厂之分:因设备,工艺方面的原因,小作坊生产的型材,加工费每吨在2000多到3000之间,而大厂的每吨加工费达到5000到6000元,这也是个不小的差别哦!
2,中空玻璃,
a、55断桥中空玻璃有非钢化中空,单面钢化中空,双面钢化中空之分,非钢化中空每平方米60到70元左右,而双面钢化中空却在每平方100多元。
b、55断桥玻璃可以装配的中空玻璃的规格有三种,分别是 5+6a+5,5+9a+5,5+12a+5,这三种规格中,5+6a+5的隔音隔热性能最差,5+12a+5的隔音隔热性能最好,他们的价格区别在每平方米25到30元之间。
3,隔热条
普通pvc隔热条一般的在6000到7000左右一吨,而尼龙66的隔热条每吨高达28000元,进口的更是每吨在3万多元,你去算算它们之间的差价是多少吧!
4,五金件
就拿一套内开倒五金件来说吧,价格低的市场上才卖不到100元,而质量好的一套就达两三百元,特别是进口品牌,更是高达四 五百元。这差别可是四 五倍哦。
5,玻璃胶
在安装断桥铝门窗时,有的人为了省钱,用的是两三块钱一支的用于填缝的密封胶,而有的人为了达到质量要求,用的是外墙上的结构胶,每支达到18元以上,拿消费者来说,您是希望为了省钱而用两三块一支的胶?还是为了质量而用质量更好的结构胶?

二,工艺
小作坊一整套生产设备也就几万块钱;而大厂仅一台普通精密的双头锯就达6万多,数控的十几万,进口的更是达到几十万元一台,这种投资可不是因为大厂有钱,而是因为它们的切割精度的确不在同一档次上!这还仅是拿一台设备作比较,还有其他若干种设备呢!所以,大厂的投资大,小作坊投资小!生产出来产品,你说谁的质量好?精度高?要生产出质量达标的好产品,硬件投资首先要达标,也只有硬件达标了才能生产出达标的产品来,成本无疑就更高了。
三,窗形

其实,窗型不同生产成本也有着天壤之别,比如,一平方开一扇活动窗与五个平方才开一扇活动窗,这种成本上的差价就有几倍之多!
影响门窗成本的因素还有很多,我们就不在这一 一啰嗦了。
有句老话说得好,叫百货中百客,其实,买门窗产品,和现在的汽车市场有得一比:两三万也可以买一辆QQ车,只是功能少一些,空间小些,寿命短些,跑的慢些;而花几十万甚至上百万买一辆奔驰宝马,它也只是功能多一些,动力强一些,安全系数高一些,内饰豪华些。决定你买QQ还是宝马,取决于自己的家庭条件和实际用途。
所以,买门窗产品,同样取决于自己家庭条件,你愿意一次性解决问题,你就买质量好一些的产品,价格是高一些,但是一次性解决了问题,没有后顾之忧了。如果条件不允许,你就用价格低一些的产品,等到将来条件允许了,再来换质量好的,这也不失为一种权宜之计了。