聊了很多四合院,法拍房,大宗的商业,侃哥今天跟大家聊聊一手新房!
谈房子离不开地段,侃哥做了多年四合院,说起来也要说说二环里的一手房
NO.1 故宫边上的府宅——霞公府

霞公府入府大门
谈到北京首先想的是故宫,来了北京不来故宫逛逛那就不叫来过。故宫边上有个很出名的饭店,叫做北京饭店。最近侃哥看《打过鸭绿江》电视剧,毛主席有一段话还提到:咱们朝鲜战场的战士们挖的坑道就是朝鲜的北京饭店啊!由此可见,北京饭店是有怎样的意义在!
霞公府位置得天独厚,位于故宫东侧,王府井西侧,北京饭店北侧,皇城根南侧,闹中取静,好一处大宅!
霞公府开盘于2010年,当时售价10-14万,可谓是京城至尊豪宅,一个卫生间能在其他城市买一套大别墅了。
小区一栋南北两栋楼,西班牙进口名贵陶板熔铸经典外立面,总高7层,共计74户,物业费为18元,物业公司为世界五大物业公司——世邦魏理仕,这么想想,这个物业费真心不贵,户数这么少,这么豪的大宅物业费便宜了还哪来的服务!
这个位置的产品自然是豪宅定位,小区户型为三居室、四居室、五居室,面积350-591平米,算一算,这个小区,10年的入住标准最低也得4000万+,我的天,有钱真好!





户型看完有什么感触,提醒一下,平层里面带影音室和酒窖的,二环里只此一家!
霞公府均是2010年统一的精装修,不要觉得土豪,这就是专属于那个年代的,那个味!
地板是紫檀木实木复合地板,厨房设有橱柜、洗碗机、消毒柜、冰箱等。会所里面有健身房、儿童室、阅览室、雪茄屋、专属游泳池等。
回味一下10年前那个时候的顶级装修吧:








有人问,这卖了11年了,还有房么,侃哥告诉你,还有房
中国的开发商,估计也就霞公府的开发商会这么卖,不温不火,不急不躁,无须广告,我就是我,不信你来看看,11年前的装修,依旧辉煌夺目!
NO.2 金宝街上的明珠——金舆东华

金舆东华,位于金宝街主街上,位于金宝街90号,这个项目看完之后的感觉是什么?
侃哥想到了上海滩,想到了赌王,那种戴着墨镜,穿着披风的上海滩大佬,赌王里面的发哥,就是这个感觉。
金舆东华的定位在于核心区的闹市之中的传世大宅,关窗即是家,开窗即是传承千年的老北京繁华之态,属于 OLD MONEY的专属定制!
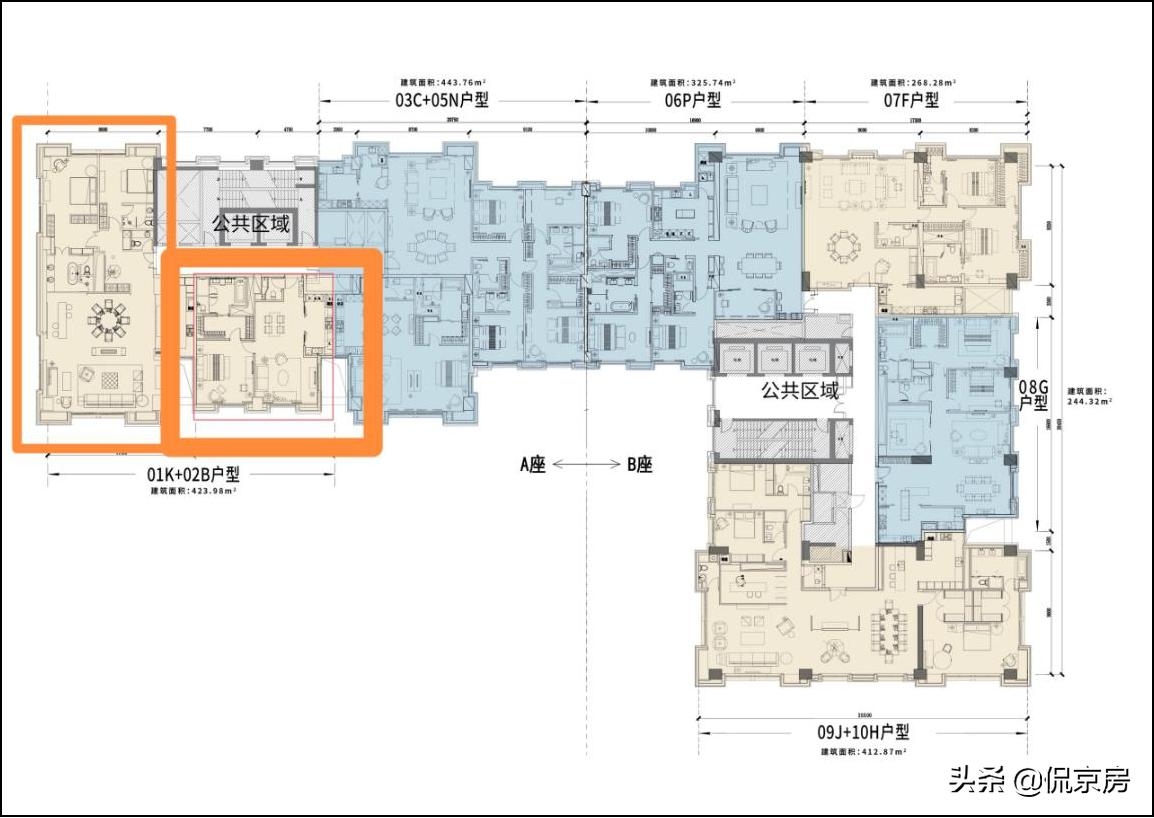
金舆东华纯石材外立面,摩登英伦风,小区共107套,层高3.5米,单价16-30万,产品由245-509平米,个别整层可以打通变成800多平米360°超级大house!
入门级别,4000万起!



整层平面图



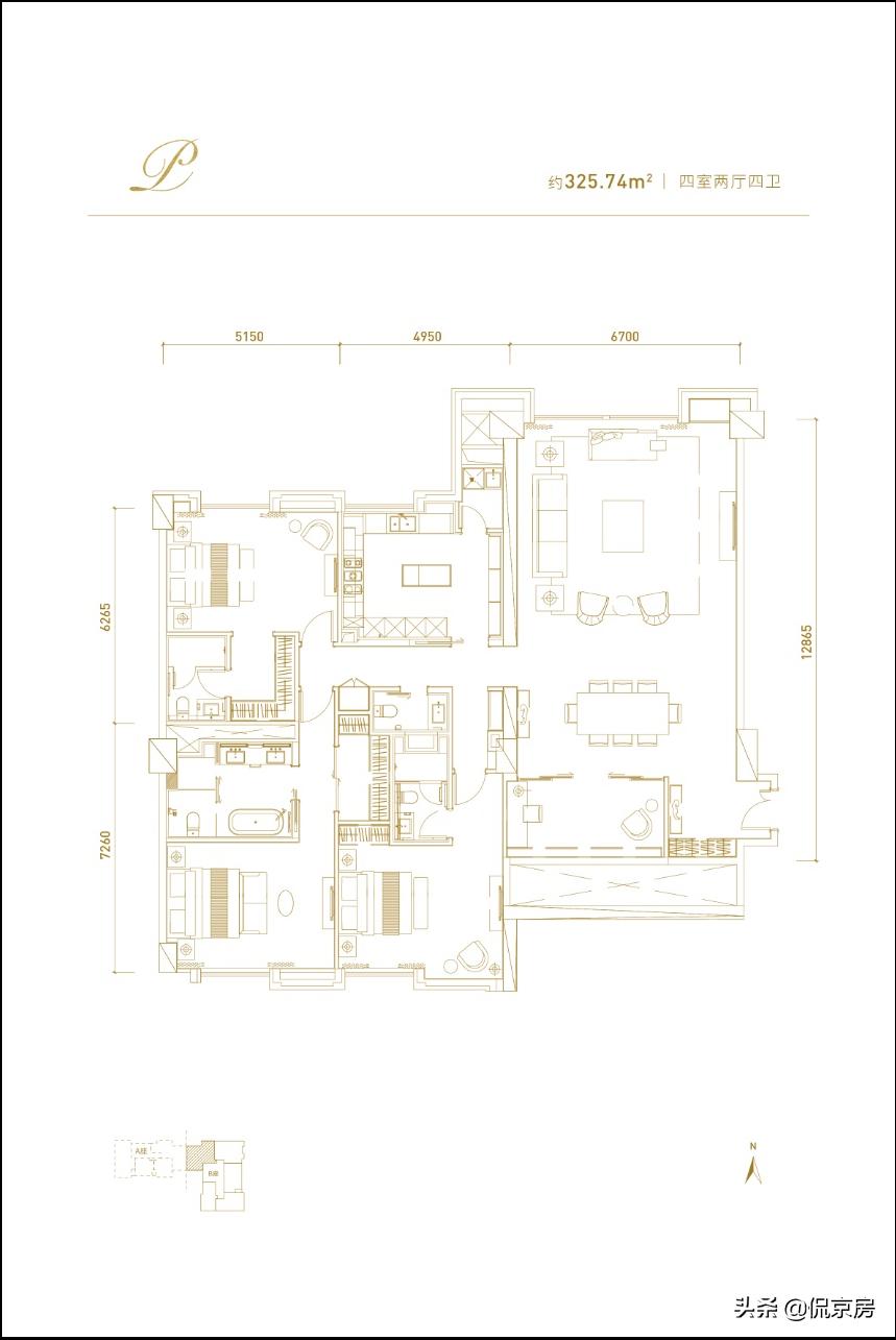
325平南北向三居室

443平米南北四居室
户型看起来一般,毕竟属于高端公寓,位置是主要的,配套是无敌的!


装修也是一流的!








