
临街立面
这座位于澳大利亚珀斯的绿色小住宅,是为一个年轻的家庭设计的,由于孩子的奶奶将来有可能与他们同住,所以在设计上要特别考虑无障碍设计。

主入口

入口坡道
这座住宅满足了澳大利亚《宜居住宅设计导则》(Liveable Housing Design Guidelines)的金质标准,整个一层完全没有台阶,通过坡道协调高差,可以无障碍通行。

从厨房看客厅
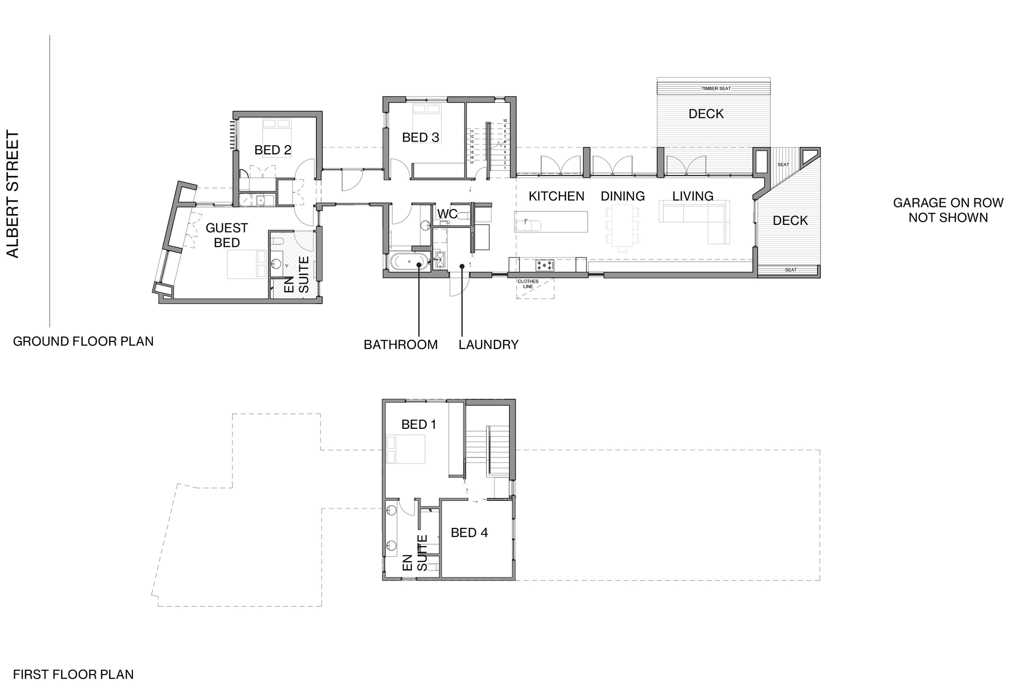
住宅一层包括开放式LDK(客餐厨)、两间卧室、一间卫浴间,以及一间“奶奶套房”。二层是主人套房和一间家庭办公室。

餐厅和厨房

餐厅

厨房橱柜细部
奶奶套房包含了独立的卫浴间和一个小厨房,还有独立的沿街入口。奶奶到了一个阶段会搬进来同住,有她独立的空间。在此之前,这间房间用作瑜伽房。奶奶套房紧邻车库,可以停两辆车。

奶奶套房的窗外街景

奶奶套房的独立出入口
绿色设计贯穿了整个住宅设计,甚至连墙身的木骨架和橱柜的柜体,这些表面看不见的材料,都使用的FSC认证的木材。屋主非常在意可持续这一点,所以准备了充足的预算在绿色设计。

客厅外的露台和花园

客厅落地门通往室外花园
建筑外立面采用的是回收的斑点桉木(spotted gum),随着岁月会渐渐 银化 。密封木材时添加了少量灰色着色剂,以促进更均匀的风化(因为有些墙壁比其他受到更多的阳光照射)。

客厅露台的侧面对景
一层的墙体采用了“反向砖砌面”的施工构造,即砖砌体在内侧,轻质饰面墙在外侧,这种墙体构造非常适合珀斯的温带气候。灰色的实用砖直接暴露在室内,没有添加其它的饰面,这样有助于室内的热质量。

客厅室内灰砖墙

奶奶套房室内灰砖墙
客厅北向玻璃经过精确的遮檐处理,以确保冬季最大的阳光穿透率和夏季的零穿透率。客厅上方的坡顶将更多自然光线带入室内空间。

客厅露台

花园看餐厅

客厅

客厅一角

客厅一角

沿街小景

沿街入口
一层的次卫采用了薄荷绿马赛克贴面,清新而活泼,适合孩子们使用。

儿童卧室

次卫

次卫

次卫
二层的主卫则采用了深灰色的搭配,更加沉稳。

主卫

主卫
项目名称:Mosman Park House项目地点:珀斯,澳大利亚项目年份:2019建筑面积:269 m²建筑师:Robeson Architects摄影师:Dion Robeson

平面图
图片来自Archdaily,撰文:Tian
-------End-------
天天设计笔记,写给自己的笔记,分享给同好之人。
Tian,国家一级注册建筑师,独立设计师,从事建筑、室内、家居设计。
#建筑# #家居# #室内设计# #绿色建筑# #无障碍设计#