
南京长江第五大桥跨江主桥采用纵向钻石形索塔中央双索面三塔组合梁斜拉桥,桥跨布置为
80+218+600+600+218+80=1796m,索塔采用钢-混凝土组合索塔,索塔基础采用钻孔灌注桩基础,主梁采用粗骨料活性粉末混凝土为桥面板的流线型扁平整体箱形组合梁,斜拉索采用钢绞线斜拉索。本文系统全面地介绍了该桥的设计标准、总体设计以及主桥各部分的结构设计,以资借鉴参考。

项目地理位置图
三塔斜拉桥
南京长江第五大桥是G205和G312共线的过江通道,同时也是南京“高快速路系统”中绕城公路的重要组成部分,在南京长江第三大桥下游约5公里,在南京长江大桥上游约13公里处,是国务院批复的《南京市城市总体规划(1991-2010)》中确定的南京地区过江通道之一,已经列入国家《长江经济带综合立体交通走廊规划(2014-2020)》。
项目路线起自南京市浦口区五里桥,接改建的江北大道,跨越长江主航道后,经梅子洲,下穿夹江南岸,接已建成的江山大街,全长约10.334km。其中,跨长江大桥长4134m,夹江隧道长1754.6m,其余路段长约4.4km。跨江大桥主桥采用桥跨布置为80+218+600+600+218+80=1796m的三塔斜拉桥。初步设计批复总概算约62亿元人民币。
设计标准如下——
公路等级:双向六车道一级公路,兼具城市快速路功能。
计算行车速度:路基、桥梁100km/h,隧道80km/h。
桥梁结构设计基准期:100年。
标准宽度:双线六车道,桥梁标准宽度30.5m,隧道12.25m×2。
设计洪水频率:特大桥1/300,其他结构物1/100。
航道等级:设计最高通航水位为8.53米,设计最低通航水位为-0.03米(85国家高程基准)。
通航净空尺度:单孔单向通航:268×32m,单孔双向通航:525×32m。
荷载标准:车辆荷载为公路Ⅰ级;设计基本风速为31.7m/s;地震基本烈度为Ⅶ度,按实测地震动参数进行结构抗震分析,按规范规定进行抗震设防,E1、E2设防标准如表1所示;跨江大桥桥墩船舶撞击力标准如表2所示。


主桥设计

跨江主桥桥型布置图
桥跨布置
根据水文、通航条件,南京长江第五大桥跨江大桥主桥采用桥跨布置为80+218+600+600+218+80=1796m三塔斜拉桥。该方案基本覆盖10.5m水深区域,其中2×600m桥跨为主通航孔;左侧218m边孔预留,右侧218m边孔为非通航孔。上述布置方案满足现有航道通航要求,亦可适应航道可能变化、航运发展及多线通航需求。
结构体系
根据三塔斜拉桥的结构特点布置合理的结构体系:①中塔处设置支座约束纵向位移及竖向位移,并设置横向抗风支座;②边塔索塔处设置竖向支座及横向抗风支座,并设置纵向限位装置;③辅助墩处设置竖向支座、横向抗风支座及纵向E型动力耗能装置;④过渡墩处设置竖向支座及横向抗风支座。
为提高三塔双主跨斜拉桥的整体结构性能,在中塔及边塔均设置两排四组竖向约束支座,双排竖向支座共同作用,以约束主梁的竖向转动位移和偏载扭转位移。为改善支座自身以及支座区域主梁受力性能,索塔区域的竖向支座均采用弹性支座,弹性刚度16000t/m。
索塔设计
1. 索塔结构选型
三塔斜拉桥与常规斜拉桥结构在受力上有所不同,主要表现为中间塔两侧均无辅助墩和过渡墩,不能对主梁和索塔刚度提供有效帮助,并使结构各个响应的活载影响线幅度和范围增大,各个构件的活载效应变大。如何提高中塔稳定性、主梁竖向刚度、控制斜拉索疲劳应力幅度和满足索塔受力要求,是三塔斜拉桥结构设计的关键。

(a)边塔构造示意 (b)中塔构造示意
索塔构造示意(cm)
经研究与比选,通过将索塔纵向打开成钻石形来提高索塔自身刚度,是较为有效且经济的解决方案。当塔柱纵向打开成钻石形时,如横向仍采用双柱塔,单个索塔在桥面上将存在四个塔肢,其结合处受力较为复杂;斜拉索与四肢索塔塔柱共存一个空间,线条多且杂,视觉效果不佳。若将四塔肢适当合并,形成中间独柱式,再结合斜拉索的搭配性布置,则整体呈现简洁流畅的美感,产生独特的视觉效果。因此,结合力学与美学的统一,索塔选用纵向钻石形—横向独柱型索塔。

(a)上塔柱断面 (b)中塔柱断面
(c)下塔柱断面 (d)塔底断面
中塔截面构造示意(cm)
2.索塔结构材料选择
分别研究钢索塔、混凝土索塔、钢混组合索塔三种结构形式。钢索塔由于可提供的刚度有限并且造价较高,不宜选用。而钢混组合索塔相比于混凝土索塔具有以下优势:
①承载能力高,由于钢外壳的协同承载作用,其承载能力高于钢筋混凝土索塔。
②塑性和韧性好,钢材的约束作用可以改善核心混凝土的变形性能,使组合索塔具有良好的塑性和韧性,从而显著改善结构的抗震性能。
③外观质量好,索塔外表面均为钢结构,光洁度、平整度相较于混凝土索塔更易保证,另外表面涂装颜色可根据景观设计要求确定,更易获得较好的美学效果。
④耐久性好,钢壳的约束作用可减缓钢筋混凝土的裂缝发展,内部钢筋因有钢壳的保护不会引起锈蚀,运营期间只要做好钢壳的外表面涂装维护,即可保证结构的耐久性。
⑤采用工厂化、装配化施工,减少现场作业强度及难度,提高工程质量,并且施工方便,索塔施工过程中钢壳可兼作混凝土模板,省去了大型爬模设备。
虽然钢混组合塔工程造价较混凝土索塔略高,但结构性能明显占优,亦符合交通部推进钢结构桥梁建设战略,故最终选择采用钢混组合索塔。
3.索塔结构设计
索塔采用纵向钻石形索塔,横向为独柱塔,结构为钢—混凝土组合索塔,钢结构采用Q345C板材和Q235B型材,混凝土采用C50补偿收缩混凝土。

纵向钻石形塔柱演变
索塔采用钢混组合结构,中塔高175.407m,边塔高167.7m。下塔柱为纵向双肢,每肢为单箱三室的外侧带凹槽的六边形断面,横向13.8m、纵向7m(边塔6m)、壁厚1.2~1.4m,底部合并纵向14m(边塔12m),向上逐步分离,至下塔柱顶部纵向21m(边塔17.6m)。中塔柱为纵向双肢,每肢为单箱单室的外侧带凹槽的四边形断面,横向5.8m、纵向7~5.686m(边塔6~5.024m)、壁厚1.2~1.4m。上塔柱合并为单箱单室,横向5.8m、纵向11.328~5.0m(边塔10.066~5.26m)。下横梁为钢结构,高2.0m、宽4.6m,设置顺桥向预应力。中上塔柱结合部设置预应力。上塔柱设置钢牛腿和钢锚梁。
4.钢混组合塔施工工艺
基于钢-混组合索塔的特点,采用了工厂化、装配化的施工工艺,将大部分钢筋在工厂内预穿并随钢壳整体吊装装配,用钢壳兼作混凝土模板,省去了大型爬模设备,现场仅需连接节段间钢筋和浇筑混凝土,有效减少现场作业强度及难度,提高工程质量。
主梁设计
1.主梁结构形式
对应于本桥主跨600m的三塔斜拉桥而言,主梁结构选择钢箱梁或组合梁均是可行的。组合梁由于桥面板采用了混凝土结构,可以有效规避正交异性钢桥面板的疲劳病害和钢桥面铺装易损问题,并且经济性相对更优,故南京五桥主梁选择了钢混组合梁方案。
传统钢混组合梁的桥面板混凝土通常采用C55~C60混凝土,板厚一般不低于27cm,主要由车轮局部荷载作用下引起的局部弯矩和结构总体受力共同控制。较大的桥面板厚度使得钢混组合梁结构自重较钢箱梁大,自重引起的斜拉索索力、塔柱轴力比重加大。为克服自重,必须加大索塔尺寸和斜拉索规格,从而影响了其经济性以及朝更大跨度斜拉桥应用的可能性。
选用高性能的粗骨料活性粉末混凝土作为桥面板材料,不仅可有效提高混凝土桥面板的受力性能,而且可优化桥面板的厚度,使钢混组合梁自重明显降低,进而降低索塔尺寸、斜拉索规格,改善整体结构性能,使钢混组合梁能够适应更大跨径斜拉桥的需求。
粗骨料活性粉末混凝土是由粒径不大于10mm的粗骨料、细度模数为2.6-2.8的细骨料和活性粉末混凝土组份(其中不应掺加任何起膨胀作用的添加剂)组合而成,基于最紧密堆积原理优化颗粒级配,以超微细颗粒、细颗粒和粗颗粒间的逐级均质充分填充,提高混合材料内部的致密性,有效减小其内部孔隙,大幅提高混合材料的抗压强度和弹性模量。
采用粗骨料活性粉末混凝土作为桥面板材料,桥面板厚度由传统的27cm降低至17cm,单位重量由37.3t/m降低至27.7t/m。将显著改善结构整体受力性能,并降低主梁架设难度和工程造价,极大地拓宽组合梁斜拉桥的适用领域。
综合考虑大跨度组合梁斜拉桥对桥面板的受力要求、粗骨料活性粉末混凝土材料自身的性能特点以及经济性,对其物理力学性能要求如表3。

2.主梁结构设计
主梁采用扁平流线型整体箱形钢混组合梁,其两侧路肩区为底部开放的悬臂结构,主梁标准宽度35.6m,梁高3.6m(组合梁中心线处)。

主梁标准横断面(mm)
钢混组合梁为单箱三室结构,其3个箱室的宽度分别为12.05m、5.6m、12.05m,两侧挑臂宽度2.95m,在索塔与梁交汇处,中间箱室加宽至6.2m。
中间箱内设置斜拉索锚箱,是箱梁内受力最大的区域。中间箱两侧中腹部厚度36mm,纵向设置3道板式加劲;对应底板标准段厚度16mm,索塔及辅助墩区域加厚至20mm,纵向设置6道U肋加劲;中腹板上翼缘尺寸600×20mm。
两侧边箱底板、斜底板标准厚度均为12mm,索塔及辅助墩区域平底板加厚至20mm,斜底板加厚至16mm,纵向共设置15道U肋加劲;边腹板厚度20mm,纵向设置一道板式加劲,边腹板上翼缘尺寸500×20mm。箱内设横隔板,横隔板标准间距3.65m,非拉索处横隔板厚10mm;拉索处横隔板边箱厚14mm,中间箱厚16mm;桥面吊机加劲处横隔板厚16mm,支座处横隔板厚20~24mm。

钢—粗骨料活性粉末混凝土组合梁结构示意图
钢梁上铺设粗骨料活性粉末混凝土桥面板,钢和混凝土通过剪力钉连接,以形成组合截面。桥面板标准厚度17cm,在中腹板及边腹板顶加厚至20cm,中间箱桥面板厚20cm。辅助跨梁段桥面板厚度均为20cm。
粗骨料活性粉末混凝土桥面板分为预制板、工厂湿接缝、工地横向湿接缝三部分制作。单个梁段共设4块预制板。标准梁段长14.6m,桥面板全宽35.6m,分为4块预制板,3道纵向湿接缝,1道工厂横向湿接缝和1道工地横向湿接缝。预制板尺寸6.92m×11.3m,两侧纵向湿接缝宽3.275m,中箱顶纵向湿接缝宽6.45m,工厂横向湿接缝宽38cm,工地横向湿接缝宽38cm。
全桥组合梁划分成129个梁段,节段标准长度14.6m、边跨尾索区节段为10.95m,标准梁段重量为408t。
3.主梁施工工艺
针对粗骨料活性粉末混凝土材料的性能特点,组合梁桥面板制定了标准化、装配化、自动化、智能化的施工工艺。
预制板采用标准模具预制,使得混凝土桥面板达到钢结构的精度标准;桥面板无论是预制还是现浇,均采用自动化、智能化的数控布料、插入振捣、平板振捣系统完成浇筑,以减少施工随机因素对桥面板质量的影响。预制板采用全机械化、数控化制造,并在工厂内完成钢—混叠合,除桥位对接外的主梁所有制作均在工厂内完成,大大降低现场作业难度,以保证主梁结构整体质量。
钢混叠合工艺具体施工流程如下:
①预制桥面板,钢梁的部分横隔板及其上翼缘,作为预埋件在预制板制作中预埋,养护3~6个月。
②在钢结构加工场胎架上拼装钢箱梁。
③吊装预制板,将其搁置于钢梁上,精确调整后,焊接预埋部分横隔板和钢梁横隔板之间的对接焊缝,使预埋部分钢板和钢梁连成整体。
④浇筑纵向湿接缝和工厂横向湿接缝,张拉横向预应力,养护2~3月后运至桥位。
斜拉索及其锚固构造设计
1.斜拉索设计
考虑安装及后期更换方便,斜拉索采用抗拉标准强度为1860MPa钢绞线斜拉索,根据索力的不同,选取不同的钢绞线束数,全桥采用15.7-31、15.7-37、15.7-43、15.7-55、15.7-61、15.7-73共6种规格的锚具。全桥共240根斜拉索。斜拉索在主梁上采用钢锚箱构造锚固,在索塔上采用钢锚梁构造锚固,张拉端设置在梁端。

斜拉索锚固构造示意
2.斜拉索锚固构造
斜拉索梁端采用锚箱式锚固,锚箱安装在主梁中腹板内侧,并与其焊成一体。斜拉索拉力主要通过锚箱传递给主梁腹板。
斜拉索塔端采用钢锚梁的锚固方式,钢锚梁支承于钢牛腿上,钢牛腿焊接于索塔内壁板,钢锚梁与钢牛腿之间设置不锈钢摩擦副。斜拉索的水平分力主要由钢锚梁承担,竖向分力则通过钢牛腿传递至塔壁上。每个索塔共20对钢锚梁,每对钢锚梁锚固4根斜拉索。索塔内自下而上布置两类钢锚梁: A类11对钢锚梁不设拉杆、B类9对钢锚梁设拉杆。

索塔承台钢套箱
索塔基础
1.中塔基础
中塔基础采用30根D2.8m钻孔灌注桩基础,钢护筒直径3.2m,梅花形布置,桩长113m。承台为圆形,直径43m、厚8m。所有钻孔灌注桩均按摩擦桩设计。承台施工钢套箱兼做永久防撞套箱,在套箱外壁板设置防撞橡胶护舷。

中塔钻孔桩群桩基础一般构造(cm)
2.边塔基础
采用24根D2.8m直径钻孔灌注桩基础,梅花式布置,按摩擦桩设计,桩底高程-94.0m,桩端持力层为中风化泥岩。承台为六边形构造,平面尺寸29.6(顺桥向)×40.2(横桥向)m,厚8.0m,承台上设圆台式塔座,塔座顶面直径18m,底面直径22m,厚2.0m。承台施工钢套箱兼做永久防撞套箱,在套箱外壁板设置防撞橡胶护舷。

主桥边塔索塔基础构造(cm)
辅助墩、过渡墩及其基础
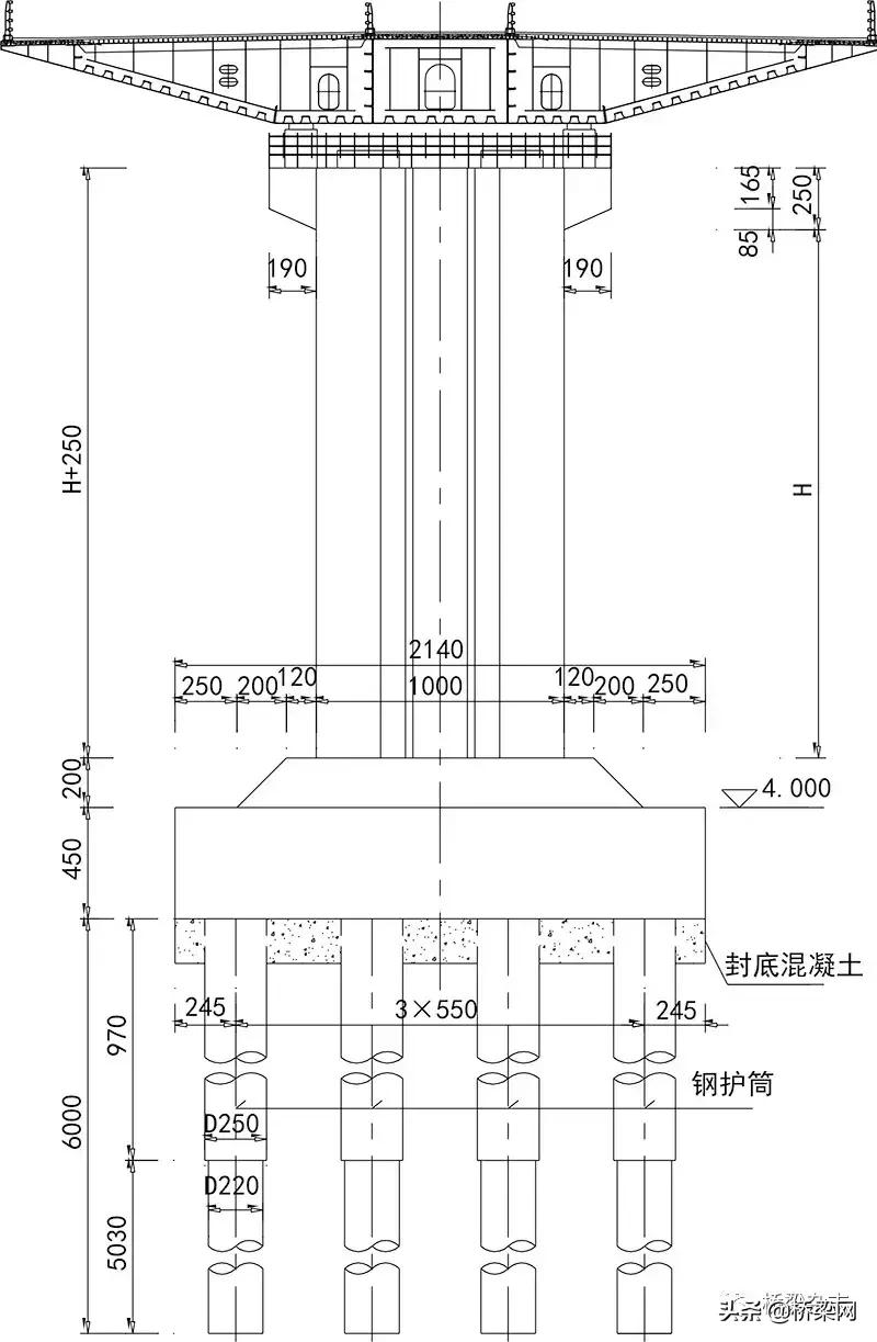
辅助墩基础采用钻孔灌注桩群桩基础,共布置12根D2.2m直径的钻孔桩,按摩擦桩设计;承台为矩形加圆倒角截面,平面尺寸15.2(顺桥向)×21.4(横桥向)m,厚4.5m;墩身为矩形带凹槽截面,平面尺寸为4.5(顺桥向)×10(横桥向)m,横桥向中心处开0.3m深、2.8m宽凹槽。

主桥辅助墩一般构造(cm)
过渡墩基础采用钻孔灌注桩群桩基础,共布置12根D2.2m直径钻孔桩,按摩擦桩设计;承台为矩形加圆倒角截面,平面尺寸15.2(顺桥向)×21.4(横桥向)m,厚4.5m;墩身为分离式实心墩,单墩截面尺寸为4.5(顺桥向)×4.2(横桥向)m,两肢墩身净距4.2m;盖梁采用矩形截面,平面尺寸4.5(顺桥向)×23.4(横桥向)m,盖梁高2.8m,两侧悬臂段梁高从1.2m渐变至2.8m。

主桥过渡墩一般构造(cm)
南京长江第五大桥跨江主桥是世界上首座采用粗骨料活性粉末混凝土桥面板结构的组合梁斜拉桥,也是跨径最大的钢混组合索塔斜拉桥。设计围绕“品质工程”创建工作,将工厂化、装配化、标准化的预制安装方案作为桥梁方案的考虑主线,将约75%的工作量放在工厂内完成,尽量减少水上作业和现场作业强度及难度,切实保证工程质量,有效提升了桥梁建造的工业化水平。
本文刊载 / 《桥梁》杂志 2018年 第6期 总第86期
作者 / 崔冰 闫永伦 魏乐永 马增
作者单位 / 中交公路规划设计院有限公司