
当看着重复排列的拱形横梁时,看起来就像画眉毛一样。于是借用了“月牙”的别名,将本项目称为“眉月”。
此次我们负责设计的项目是已经创立了55年的横滨和服店一楼卖场、楼梯间以及建筑外立面的设计方案。这是继去年已经完工营业的二楼和服店的又一个项目。相对于二楼主要用于结婚仪式的正式和服卖场,1楼陈列了成年人用的振袖、毕业典礼的裙裤、七五三这三类服装。

▲街道视角 © 矢野纪行

▲门店外观 © 矢野纪行
改建前的外立面是曲面瓷砖铺贴与主要商品和服形象不协调。因此我们通过新建墙面将原有的曲面瓷砖墙隐藏起来,墙面材质使用深灰色粗糙水洗石所具有的特殊质感来打造一个厚重且高级的空间。正对楼梯间的地方设计了格栅窗,隐隐地遮挡了视线。楼梯间的室内墙壁安装了特色耐燃木饰面板,强调了空间特色材料的垂直性,天花板上的金箔则营造出非日常的高级感。

▲楼梯间外部以格栅窗遮挡 © 矢野纪行


▲楼梯间的室内墙壁安装了特色耐燃木饰面板 © 矢野纪行
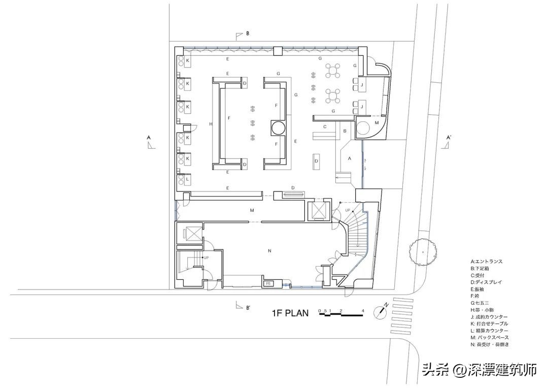
为了避免不同的客群混在一起,我们考虑了一个方案,将中央的卖场围成方形。中央包围的区域是裙裤卖场,外围的俩边是振袖,一边是七五三节用的和服,外围靠里面的区域是会议区域,明确地进行分区。家具的高度控制在1.8米,没有压迫感。会议区域面向卖场陈列配饰的架子,方便挑选与所选和服进行搭配。陈列配饰的架子考虑了展示性和设计性将传统的组子与木制洞洞板相结合。

▲轴测图 © TSUTSUMI & ASSOCIATES


▲入口区域 © 矢野纪行


▲振袖售卖区 © 矢野纪行



▲七五三售卖区 © 矢野纪行
在天花的设计上我们将天花板的横梁以拱形的形式呈现出来并加以重复。将横梁的一端磨细以制造出像月牙一样拱形结构。拱形的部分是木饰面,拱形以外的天花部分刷白色涂料漆,端部设计了间接照明使结构更加突出。拱形的结构从入口一直延伸到里面,以便一下子吸引了人们的视线。

▲天花板的横梁以拱形的形式呈现 © 矢野纪行

▲会议区域面向卖场陈列配饰的架子 © 矢野纪行


▲室内细节 © 矢野纪行
2楼的设计考虑的是正式,而1楼则想营造出宽敞柔和的空间。当看着重复排列的拱形横梁时,看起来就像画眉毛一样。于是借用了“月牙”的别名,将本项目称为“眉月”。

▲展架 © 矢野纪行

▲天花细节 © 矢野纪行


▲楼梯间细节 © 矢野纪行

▲外观夜景 © 矢野纪行
项目图纸

▲平面图 © TSUTSUMI & ASSOCIATES

▲剖面图 © TSUTSUMI & ASSOCIATES