在平面空间有限的情况下,若想扩张居家的使用面积就须从立面空间做打算,此时,复层设计就成为了居家规划的常见选择,但执行起来却非如此简单。需要考虑整体空间高度的舒适性,动线的流畅、覆盖面积大小和复层空间机能定义等,都是复层设计的重要思考元素,稍微拿捏不当反易使空间变得更加压迫难用,不得不慎重考虑。

空间规划要点01-空间高度以4.2米最佳
现代常见的复层设计中,建议楼高以4.2米(或以上)最佳,扣除常见楼板厚度10厘米、灯具管线10厘米,上下楼层仍可各获约2米高度,确保足够高度让一位成人自然站立,较不影响空间的舒适性。其次为楼高3.6米,若楼高仅有3.2米则较难使用,非不得已不建议做复层规划。

楼高不足,优先考量下层空间
若空间条件不得已,建议以下层空间的高度为优先考量,上层被迫无法站立,充当临时客房或储藏使用为佳。若楼高3.6米而言,下层楼高建议留出2米,上层高度为1.4米,因为人体坐高88-92厘米,再加上床垫的厚度约12-20厘米,坐于床上最高约1.12米,尚有多余空间。

空间规划要点02-覆盖面积最少6.25㎡
大部分复层设计的上层空间会规划成卧房、书房或储藏空间,下层则常见为餐厨区或卫浴空间。以卧房为例,标准双人床尺寸约1.8×2米,通行走道间距60-80厘米,建议覆盖面积最少2.5×2.5米,约6.25㎡。

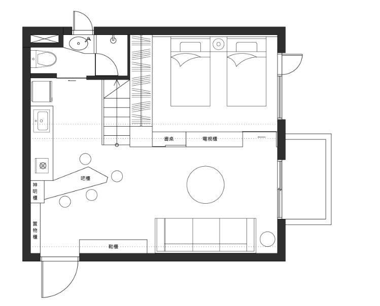
空间规划要点03-依空间条件,楼梯宽度可略缩
一般楼梯的倾斜角度通常在20-45度之间,以30度最佳。尺寸部分,依照法规,踏阶深度需为24厘米以上,含前后交错区各2厘米,踏阶高度则是在20厘米以下。以实际踩踏的感受来说,踏阶高度落在16-18.5厘米最佳。另外,整体的楼梯宽度约1.1-1.4米,可容纳2人错身行走,但因小坪数空间面宽有限,经常会再缩减宽度,并适度省下把手设计或以简单吊筋等五金做替代。

楼梯设计01-楼梯靠墙做,空间分割单纯化
随著楼高条件的不同,复层设计可做变化也会有所差异;此外,连贯上下楼层的楼梯更是这类型设计不可或缺的要素,除了考虑行走的舒适性和视觉美感,它也左右著居家整体动线的流畅性,甚至成为空间的主导,创造丰富而多元的生活样貌。尽量将楼梯规划在空间的最边侧,留给主要生活空间最完整而宽敞的使用场域,上层空间的呈现同样趋向简单,整体多采取开放设计不做多余切割,常见配置如卧房、书房、储藏空间等,若区域面积较大亦可整合复合机能使用。


楼梯设计02-楼梯置中,划分使用区域和动线
藉由楼梯的设置为空间做区域划分,主要可分为两种形式,一种是於楼梯置于空间中央,进行分道将上层空间切割出2个以上的完整区块,分别作为不同机能使用;第二种则藉由楼梯结合墙面或柜体充当隔间,制订上层区域范围,同步下层空间做区隔。


放大设计01-通透多元的围栏设计
基于安全考量,复层空间的边缘多会规划一座墙或围栏做保护。这时可选用清透的玻璃材质保持视线开阔感,或规划简易平台替代一般栏杆,结合书桌设计赋予多元机能,都是常见又好用的方案。书桌标准深度约60厘米,可视需求缩减。


放大设计02-结合楼梯与收纳的复合机能
虽然空间有限,居家的收纳需求仍是不可忽略,将连贯上下楼层的楼梯结合柜体做设计,同时满足动线和收纳需求,常见形式包含抽屉、开放柜、电视墙、书柜、餐柜等,具体要看楼梯位置与空间需求而定。

更多精彩内容可关注我们的微信公众号:龙之行装饰(whlzxzs)