
四川广元冯家新中式别墅
建设地点 四川广元
图纸编号 1511
尺 寸 面宽 19.7米 进深 14.3米
建筑面积 434.0㎡
设计机构 易盖房杨洋工作室
土建造价 78.1万
项目概况

△总平面示意图(右下角为北)
基地情况:
东:村内道路
西:邻家住宅
南:村内道路
北:空旷场地
项目简介:
业主在前期提出需要1个完全独立的堂屋,并希望增设多功能储物空间;在立面造型上,业主喜欢简约的新中式风格。设计师根据场地情况,及业主的需求和喜好,将项目确定为西南-东北朝向的双层新中式别墅。
平面布局
户型概况:
2层 / 6室 2厅 4卫 1厨 1堂屋 3储藏 1洗衣 1书房 1烤火房 1娱乐室 1阳台 1露台

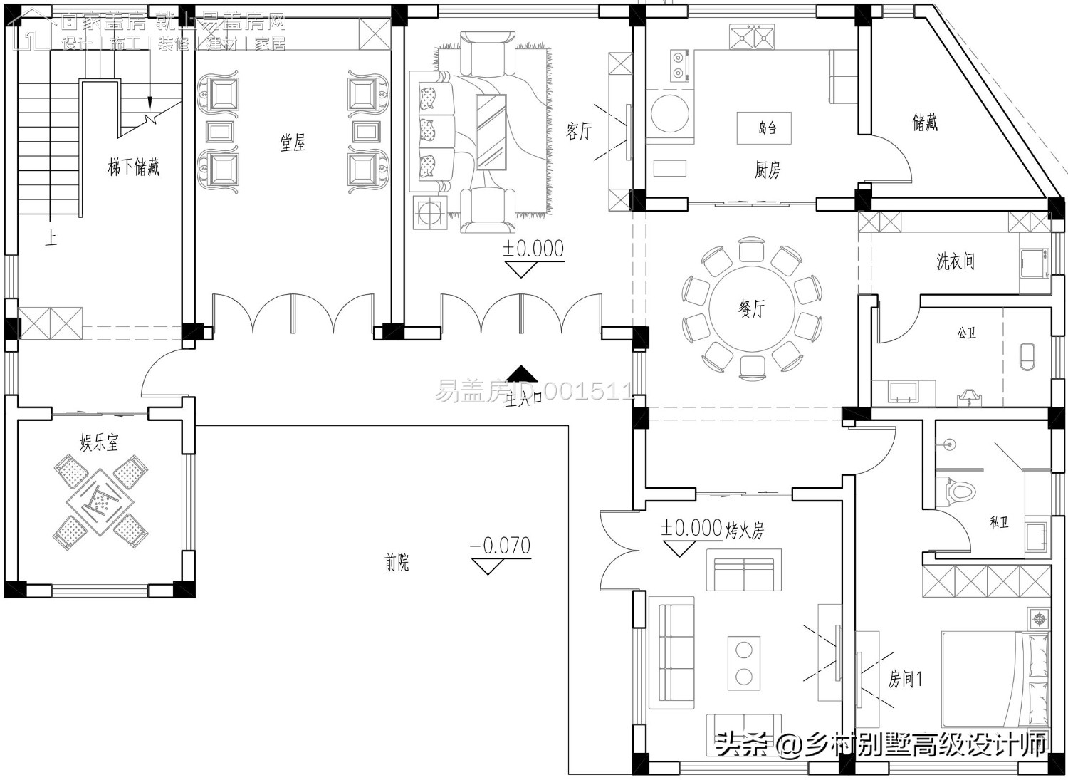
△一层平面图(右下角为北)
建筑东北侧入户即是独立的堂屋和客厅空间;餐厨空间、卧室套房搭配烤火房功能位于西北侧,功能齐全方便待客自住使用。

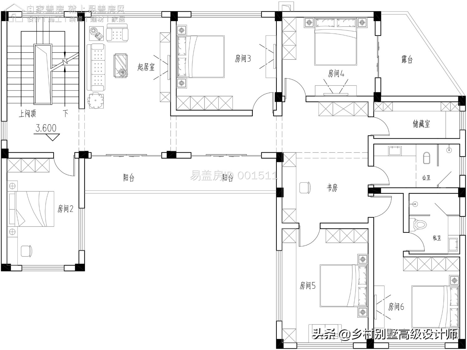
△二层平面图(右下角为北)
二层为娱乐办公空间,中部设置公共阳台区域;整层设置5间卧室,西、北两侧均设置为主卧套房,其中西侧的卧室向外延伸出露台空间。
造型设计

△东北侧效果图

△东侧效果图
建筑为新中式别墅,主体使用大量真石漆,通过深浅的层次变化与深褐色的分界线,搭配少量的中式元素,让整体色调更加舒适。

△北侧效果图

△鸟瞰图
庭院设置双休息区空间,搭配遮阳伞和桌椅,与周围的绿植空间和阳台的休息区,营造自然舒适的人居环境。

△北侧效果图

△西侧效果图
各种空间设置满足业主生活起居习惯,设计师在主立面采用大开窗设计,搭配玻璃栏杆的室外空间,让视觉上丰富不少。

△西北立面图

△东南立面图

△东北立面图

△西南立面图