
构造大样图,许多设计院新人的痛。
一提起大样图就头脑发晕,上学的时候建筑构造这门课仿佛白学了,连看图都看不懂,更别说还要画出来了。


但是,节点构造大样图是整套图纸中不可忽略的一部分,它是内部构造做法、工艺的直接体现,也是决定你的方案想法最终是否能落地的重要因素。

文末附超全建筑细部设计详图构造节点CAD合集
那么,如何快速提升画节点大样图的效率呢?
层层深入,认知理解
节点大样是什么?
要想画好这些细部节点大样图,需要先了解这个图是干什么的。
首先要明确的一点是节点图、构造大样图都是属于施工图的范围,它们是用来指导施工的设计图纸。

按照详细程度排序,规划总图>平立剖面>节点大样图。

这些节点图、大样图可以说是平立剖面图的补充,对于平立剖上面无法表达清楚的构造细节,通过这些详图更加具体和明确的说明。

明确了这个问题以后,我们就要明白画这些详图是为了表达清楚,便于施工人员及他人理解。所以要尽可能的将图纸清晰化、简单化,切不可为了炫技而去画大样图。
节点大样图该表达哪个部位?
节点大样图主要是为了表明建筑中所牵涉到的细节构造做法。
所以通常情况下建筑的交接、转折处,材料复杂处等等牵涉到结构做法的地方需要画节点大样图。

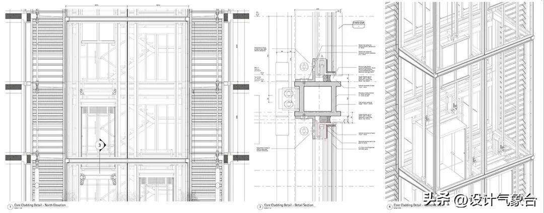
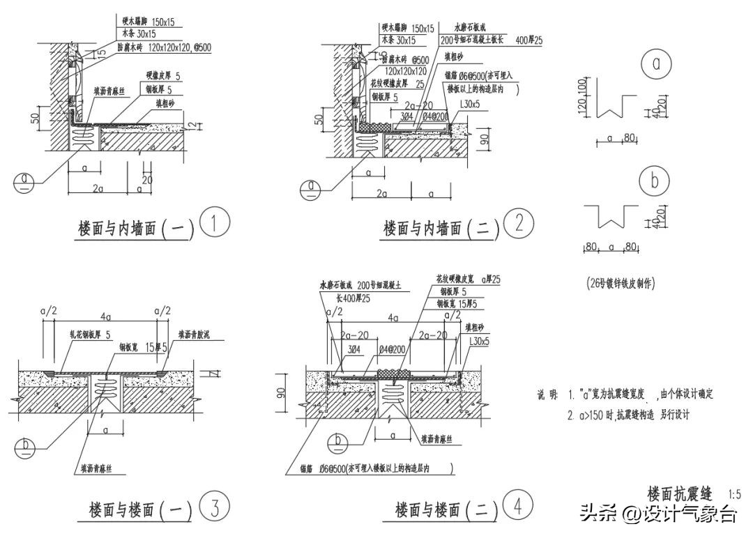
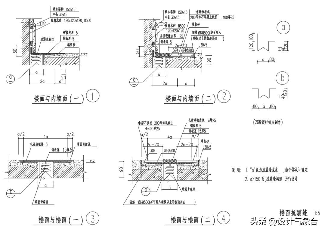
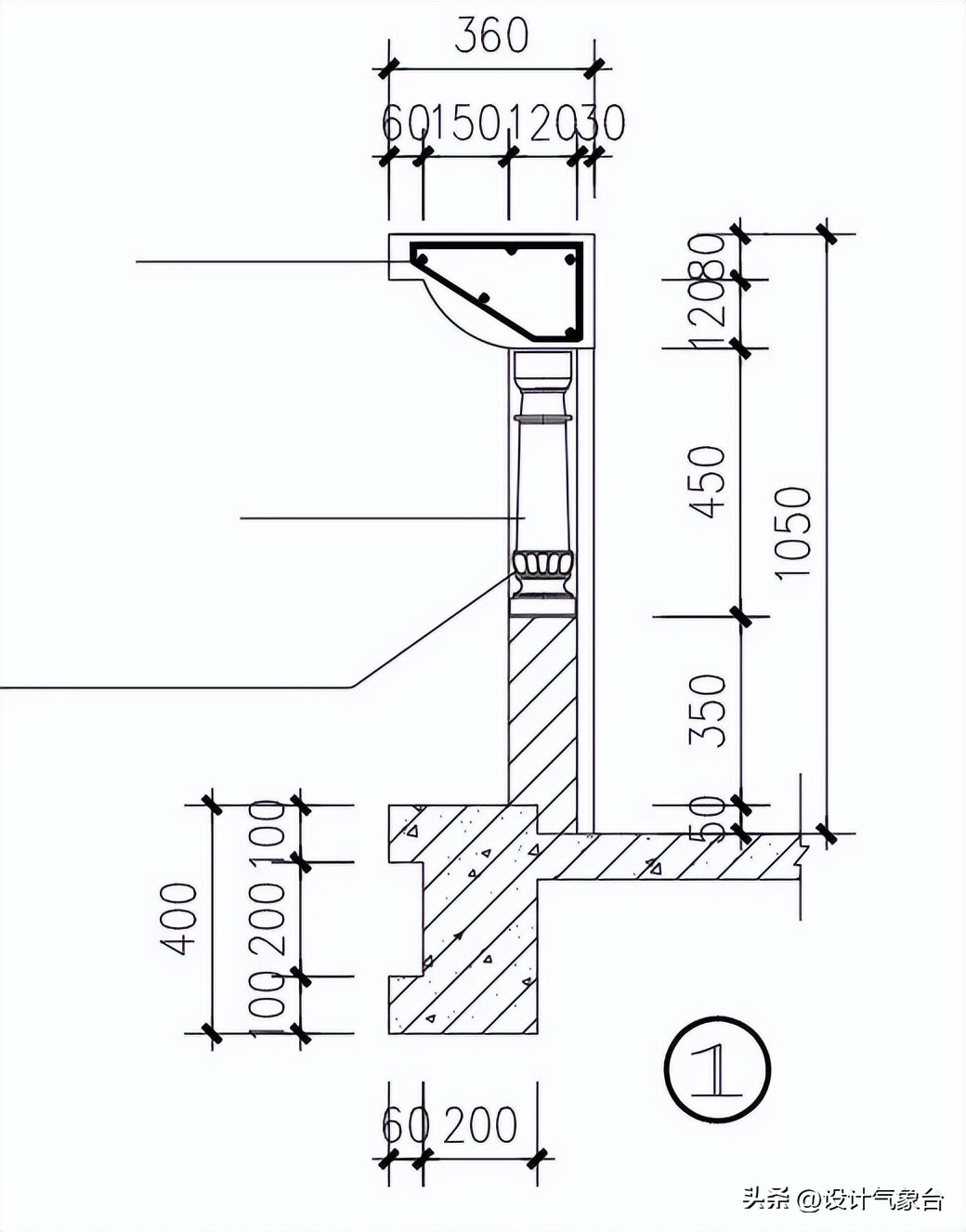
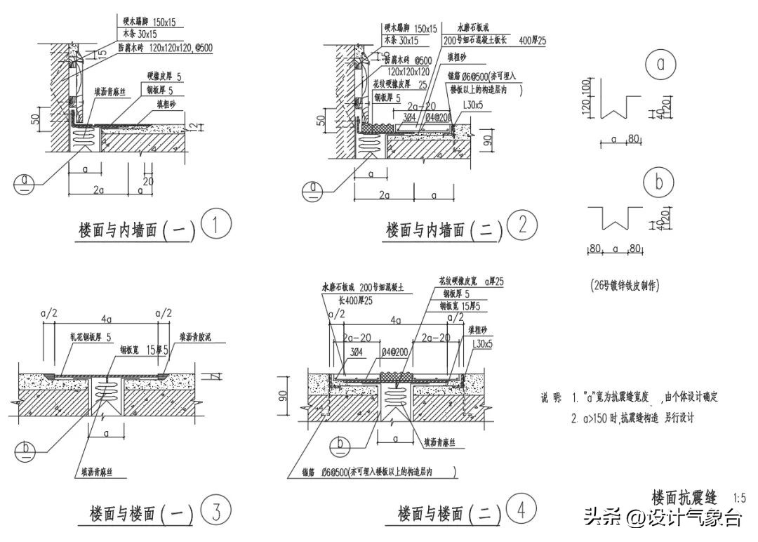
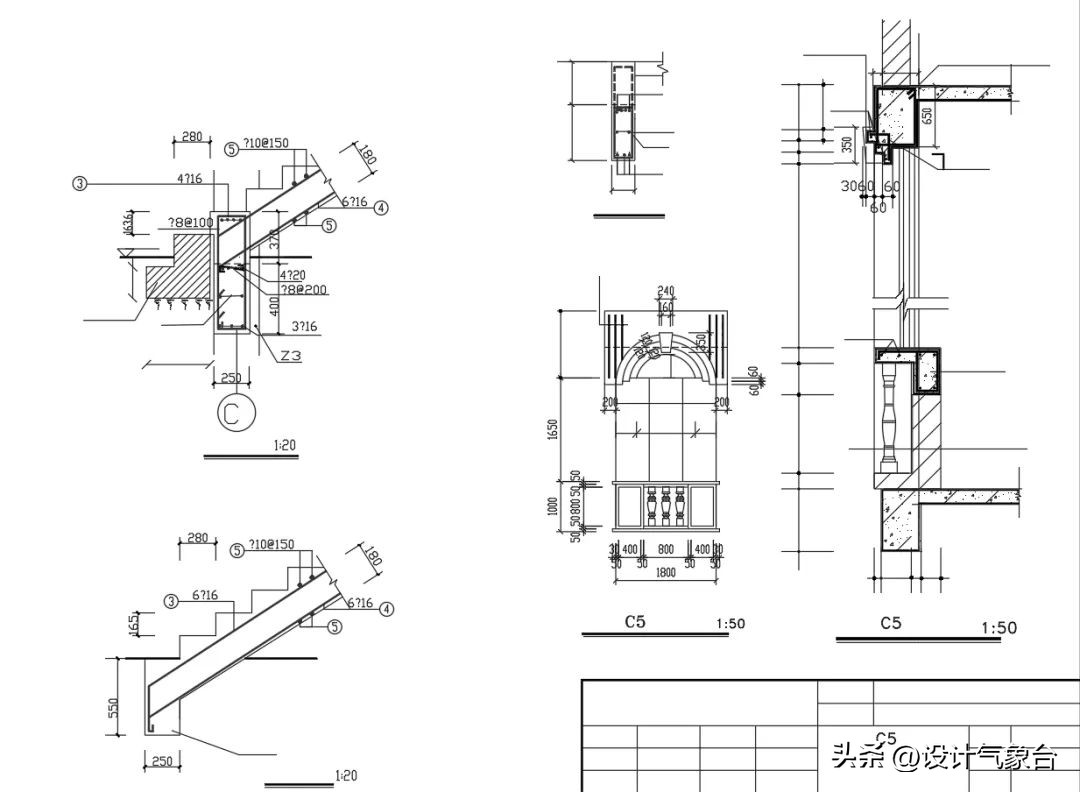
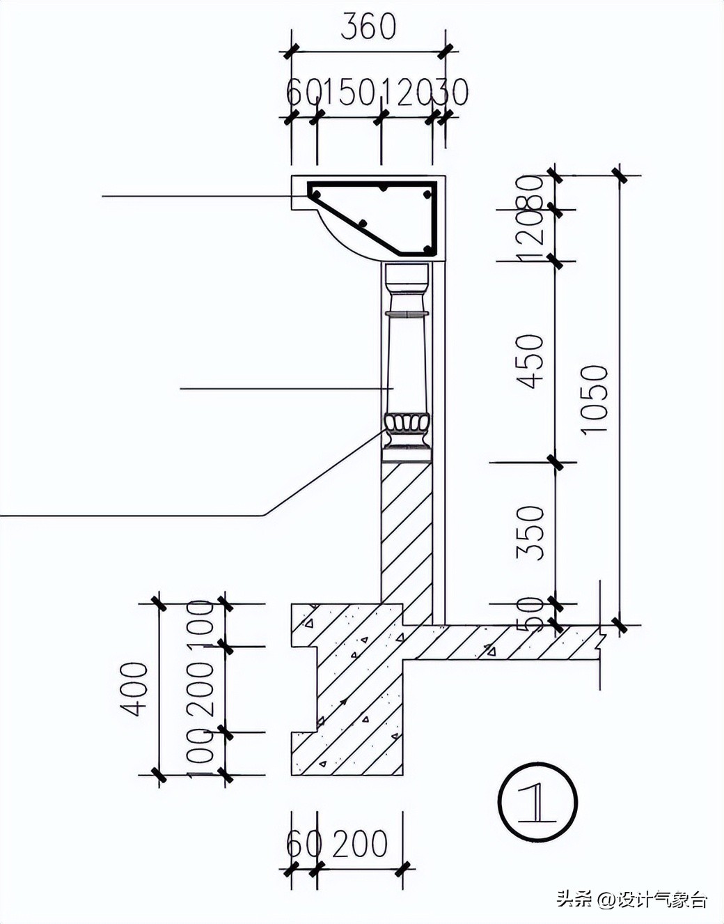
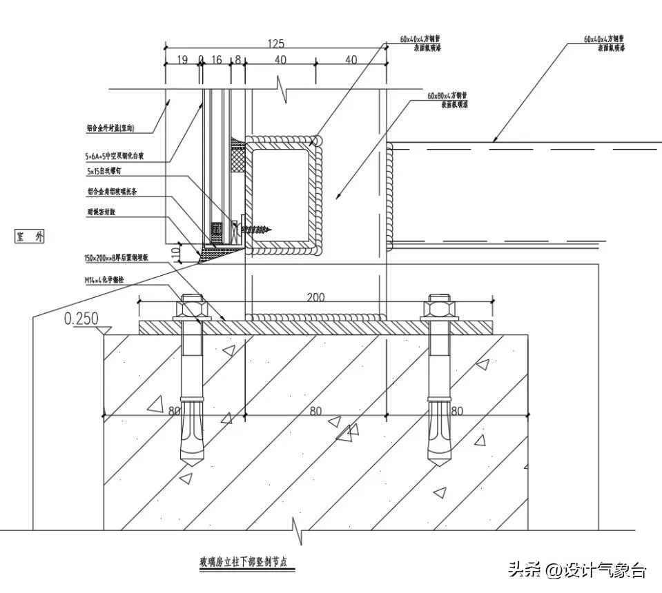
具体包括墙身大样、女儿墙大样、变形缝、防水等结构详图、梁柱节点、楼梯电梯栏杆等。


以楼梯大样图为例,不同的楼梯有不同的构造做法。


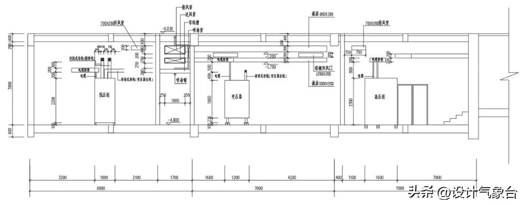
建筑设备也需要画详图,但这个部分也可能是其它专业的人去完成。

最后还有你的方案项目中不同于常规,需要特别说明的部分,也需要通过详图来向施工人员说明,以此保证方案的完成度。

节点大样图的表达内容和方式是什么?
一张节点大样图中,首先它的比例要相对大一些,常用的比例有1:10、1:20、1:50。其次局部的尺寸、材料的不同技术和做法要求,楼地面的标高信息这些都标注清楚。
并且在大样图中,通常会配有比较详细的文字说明,以此来确保图纸表达更加清楚。



在表达方式上,没有特别的要求。
可以通过平面表达、也可以通过平立剖结合去说明,必要的时候还可以通过轴测图及其它方式去更加明确的进行表达。



如果你用地是标准图的建筑构件,可以直接注明图集和页次,不要用再画这些详图。


当然,每个设计院、每个项目的要求不同,其表达方式和内容也会有差别,可以灵活的参考运用。
但是,不管是哪种类型的详图,都不要忘记构造详图、节点大样图的服务对象和目的,画这些图是为了让施工人员能够按照你的图纸建造出符合设计意图的建筑,这是画图的首要准则。


描图学习,付之实践
最后小编为你提供了超全建筑细部设计详图构造节点CAD合集,这份合集里面基本涵盖了所有的建筑常用构造图,从地面到屋顶,每个部分都有多种做法可以参考,并且有标准的图集供你使用。
有了这份构造图集,相信你画构造大样图一定是信手拈来!
超全建筑细部设计详图构造节点CAD合集

资料总目录

01-变形缝、防水等结构详图
-变形缝大样-







-地面防水及其它大样-








-防水节点大样-






-基础承台大样-


-栏杆楼梯大样-





02-屋顶、室外构造节点详图








03-梁柱节点等施工图集






04-楼梯、地面、屋顶等施工图集







05-门窗栏杆等施工图集


06-玻璃幕墙、外墙等施工图集









资料获取方式
私信回复: 003
即可领取资料
设计气象台,广受90后年轻设计师喜爱的设计黑科技平台。全网最新的建筑/景观/规划/室内设计资源、知识干货,让你满载而归。如果你喜欢设计,请关注我们。