项目区位
ing 未来印位于稀有供地的天河区,天河区连续 7 年 GDP 排名广州第一,地处广州第三中轴核心区智谷区域, 天河智谷重点发展新一代信息技术,文化创意,生物科技,人工智能等高新科技产业。目前网易总部、中国移动、小鹏汽车等大型上市公司纷纷进驻,未来智谷区域将超 2000 家名企进驻,人口超 68 万,创造 1100 亿元产值!项目 5 栋已成功引入华兴银行作为总部研发中心,未来将有超过 1500 名高端金 融人才进驻 ing 未来印办公。

交通配套
四地铁环绕,21 号线+4 号线黄村站已开通,步行约 15 分钟,4 站达珠江新城。19 号线+30 号线广氮东 站规划中,距离项目 280 米。毗邻车陂路,广园快速,环城高速,车陂路 5 分钟达金融城,10 分钟达琶洲,广园快速 15 分钟达珠江新城

生活配套
天河智谷片区,侨鑫与天泓集团联手开发的4.3万㎡的体验式购物中心;打造集下沉式中央广场、大型生鲜超市、巨幕影院、美食天地、生活馆、24小时健身房、恒温泳池、潮流服饰、新零售等于一体的地标型城市商业综合体,设计与体量等同于一个天环广场。
负1层——大型生鲜超市,下沉空间
1层——中央广场,景观走廊、开放式街区
2层——巨幕影院,美食天地、生活馆、潮流服饰、新零售区等
3层——24小时健身房、恒温标准泳池、创意餐饮、烘焙轻食、外摆餐区

教育配套
清华附中与项目一路之隔,是广州市第一所教育局与清华大学合作的市属12年制公立学校,共3480个学位,项目周边学府林立,板块内规划,24所学校,新增质学位不少于2.8万个,居住于此,享优教资源红利
广州医科大学附属中医医院今年即将投凯投入使用。共有1000个床位,附近有暨南大学附属第一医院,中山大学附属第六医院,中山大学附属肿瘤医院三甲医院,医疗配套齐全,医商机遇重重

周边租金


开发商简介
项目在设计上有两大皇牌,我们重金礼聘了知名设计大师团队——广州市设计院和AECOM 联袂打造。广州市设计院是广州知名设计院,代表作有广州塔、广州太古汇、天河城、广州周大福中心(K11)等地标建筑,立足于“做优做精”的发展定位,坚持走高端路线;AECOM 是世界 500 强美国公司,全球设计公司总体排名前列,代表作有美国纽约哈德逊广场,富力海珠半岛(江景豪宅)、南天名苑(岛居别墅)、中国港珠澳大桥等。项目传承侨鑫集团的豪宅基因,从规划定位上对每一个细节的考量都是精雕细琢的,甚至超越市场上一些“豪宅”产品。

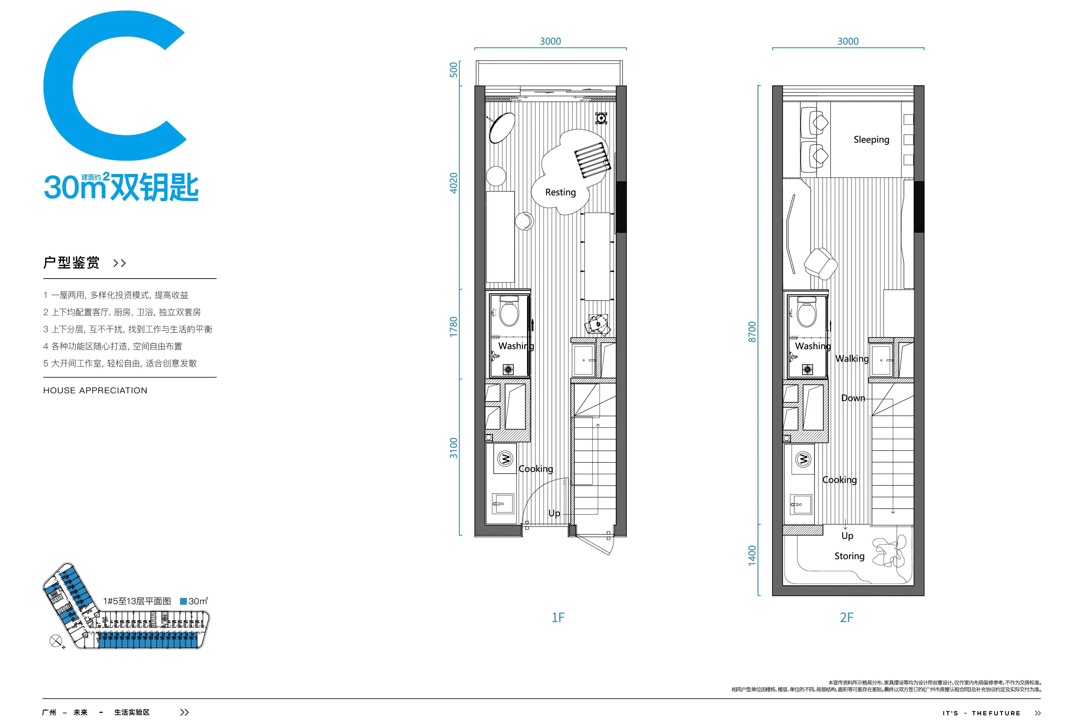
户型鉴赏









