项目名称:胡桃里音乐文化有限公司餐厅室内装修设计工程
项目类型:音乐餐厅
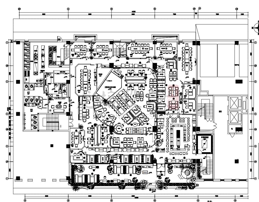
项目面积:1600平方米
项目地址:武汉
设计理念:在保持胡桃里“让一切可见更自然”的原设计基础上,设计师也在不断探索出新的表达方式,利用玻璃房,灯饰等进行创新设计,并将绿植和空间的组合运用到极致,使得大自然的绿色油然而生,一眼望去尽是满园春色。
客户介绍:胡桃里音乐餐厅将音乐、美食、美酒、表演融于一体,成为比酒吧更具文化氛围且提供高性价比酒水美食的丰富夜生活形式。立体灵活的空间体验、高品质美酒餐饮、陪伴式音乐表演、国际艺术流派精彩演绎。赢得大量音乐、艺术、美食、美酒爱好者慕名而来。

空间格局完美组合
餐厅、酒吧、咖啡馆交相混合,
美味、音乐、美酒享受尽在其中。
武汉胡桃里音乐酒馆餐厅装修设计将音乐、美食、美酒、表演融于一体,成为比酒吧更具文化氛围且提供高性价比酒水美食的丰富夜生活形式。——一站式夜生活娱乐模式
立体灵活的空间体验、高品质美酒餐饮、陪伴式音乐表演、国际艺术流派精彩演绎。赢得大量音乐、艺术、美食、美酒爱好者慕名而来。

胡桃里音乐酒馆创建于2014年到2022年一共600多家店它将音乐、文艺、川菜馆、红酒吧融于一体,以酒吧|餐厅|咖啡馆混血儿的全新融合模式,
打造一站式娱乐新体验,是比酒吧更具文化氛围的夜生活新地标。

胡桃里主题音乐餐厅已经成为了一种装修风格,就当年的漫咖啡,很多武汉餐厅都模仿他们的装修,不仅是模仿装修,运营模式也模仿。这种风格属于工业风装修,近些年大家都不断的创新,融入了更多元素。

武汉胡桃里音乐酒馆餐厅装修设计,独特的设计空间,质朴怀旧的装饰绿色清新的植物,一流的音响设备成为众多明星大咖聚会的场所白天的温暖,碰撞,夜晚的醇和丰厚的美味,邂逅,缤纷的酒吧。

在胡桃里,你所能看到空间设计风格都是满满文艺风。餐厅布置都围绕着“让一切可见自然”设计理念:桌椅、绿植装扮成“绿野仙踪”的空间、泛黄的就乐谱缝制灯罩、缝纫机餐桌、雨靴变的花盆、充满回忆黑白电视机和收音机…鸟笼的造型设计,和整个空间森系风格相吻合,将艺术空间设计概念体现淋漓尽致;还打造了一个复古海报墙,给很多艺术者有了驻足的理由,比起当下兴起网红店来说,这样的设计显得更耐看和有深度。

武汉酒馆餐厅装修设计(连锁餐饮设计)蕴源对音乐、酒文化及诗词文化深刻感悟,文化高度融合的商业空间。大面积的陈列架,细钢条做成的红酒架,不经意散落在各个角落,让你无论置身胡桃里的任何一个空间,都会被这种质感和温暖所包围。植物、老木头、水泥、钢板等元素,点缀了桌脚、旧书,烘托出酒馆的质朴、一切都在带你回到八十年代旧电影,带给人对于音乐、美酒、美食的精神享受。
本文由 龙培整理发布,版权归原作者所有 本文链接地址. 本文来自www.shejizhuangxiu.com转载请注明来源: http://www.shejizhuangxiu.com/index.php?m=home&c=View&a=index&aid=63
了解更多