
项目名称丨广东河源龚家新中式别墅
项目位置丨广东河源
建筑尺寸丨28.10*22.20m
占地面积丨142.00㎡
建筑面积丨392.00㎡
建筑风格丨新中式
结构形式丨框架结构
——
人的一辈子不能总是忙忙碌碌,在忙碌后,清净的过过简单小日子,回村建一栋琴韵雅赋的新中式风别墅,有房有庭院,很有一番滋味。
建筑效果图

西北侧人视图

北侧人视图
该项目位于广东河源,主体为三层新中式风自建别墅。 场地坐南朝北,西侧为村里河流,东侧胡同,南侧为邻居,北侧是村里主路。

东北侧人视图

西南侧人视图
整体建筑风格比较素雅,白墙瓦黛,砖雕石刻,山墙及木质门窗,置身于素净清澈的自然山水间,里面有四季轮回的雅致风景,每室可见草木扶疏、繁花依旧。

西北侧夜景人视图

东北侧夜景人视图
即使在夜晚,也同样质朴清新的感觉,平静悠远,让人忘记城市的喧嚣!
设计师通过现代材料和手法修改了传统建筑中的各个元素,并在此基础上进行必要的演化和抽象化,留其神韵精髓。

北侧人视图
鸟瞰图

西北侧鸟瞰图

北侧鸟瞰图
建筑屋顶采用人字坡屋顶组合,丰富屋顶层次,二、三层均做了半室外阳台、露台设计,增加活动空间。 创造出独具东方气韵的居住空间,以独具匠心的新中式文化宅院典范,诠释着东方文化蕴含的内涵与魅力。
西侧将小溪河流这样的景观,化为生活日常,这样的居住氛围,简直不要太“美好”。这一切,不曾刻意地修饰,像是泼墨而就绘成这一幅浑然天成的画卷,素净却不失雅韵。

东北侧鸟瞰图

西北侧夜景鸟瞰图
景观与建筑完美融合,气质与美学高度统一,既向前探索现代人居,推陈出新,同时也不失传统古典建筑之韵味。
平面详图

一层平面图
一层大厅以开放布局,空间属性更加灵活,活动区设置了茶室,方便日常活动需求。入户玄关堂屋,遵从传统式布局。

二层平面图

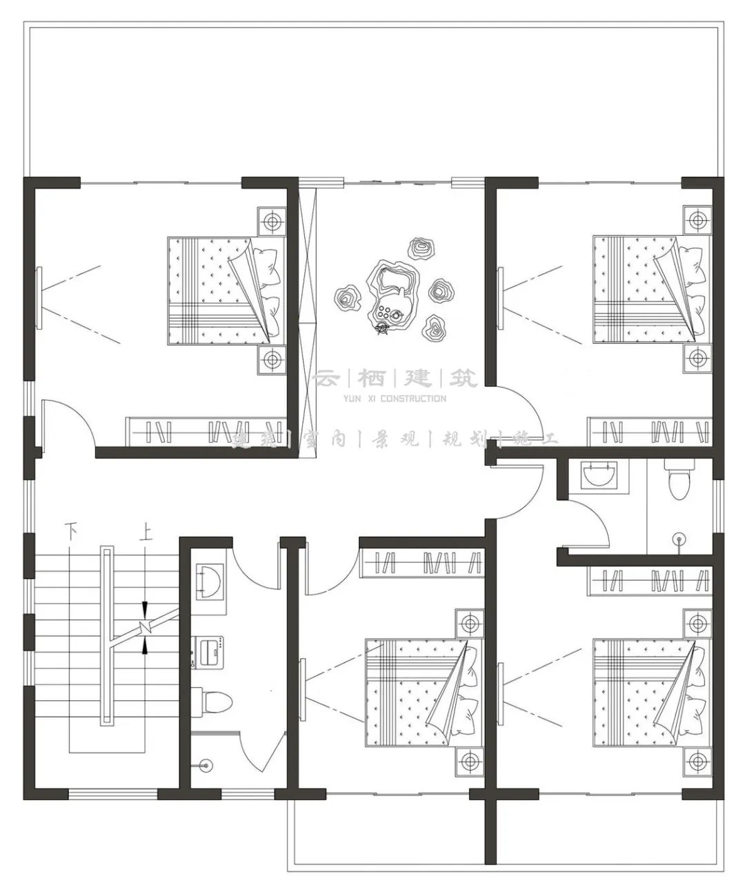
三层平面图
共设计了8间卧室,茶室、多功能厅、阳台小露台,为业主营造独具诗情画意的居所。
春有百花秋有月,夏有凉风冬有雪,在老家有一栋属于自己的别墅小院,最幸福不过了。
愿我们每个人心有所属,奋斗有标
盖房子是大事,一生只一次
我们建的不仅是房子,更是生活
云栖建筑
设计改变生活、让一切从美好出发
建筑丨室内丨景观丨规划