
湖北宜昌王家欧式别墅
建设地点 湖北宜昌
图纸编号 1474
尺 寸 面宽 16.2米 进深 11.3米
建筑面积 485.0㎡
设计机构 易盖房殊舍建筑
土建造价 86.0万
项目概况

△总平面示意图(右侧为北)
基地情况:
东:村内道路
西:村内山丘
南:邻家住宅
北:村内山丘
项目简介:
业主在项目前期表示喜欢易盖房572编号的欧式别墅,在平面布局上增设地下室空间;在立面造型上根据功能需求做一些优化。设计师根据场地高差限制的特殊情况,及业主的需求和喜好将项目确定为东西朝向的欧式别墅。
平面布局
户型概况:
2层+地下1层 / 5室 1厅 5卫 1厨 4衣帽 1设备 1换衣 1书房 1健身 1瑜伽 1桑拿 1烤火房 1KTV 1露台 2酒窖 1车库

△地下一层平面图(右侧为北)
整层主要为活动休闲空间,南北动静分离划分开来,中部的纳米汗蒸室,根据业主表示后期采用的是电子汗蒸,因此不用预留通风管道和水管;西侧的健身房和北侧的瑜伽室相呼应,使得彼此多功能空间的面积灵活化。

△一层平面图(右侧为北)
一层以居住待客为主,共布置2间卧室,其中南侧老人套房搭配衣帽和私卫区域;北侧的厨房内部设置次入口,提升室内的居住环境。

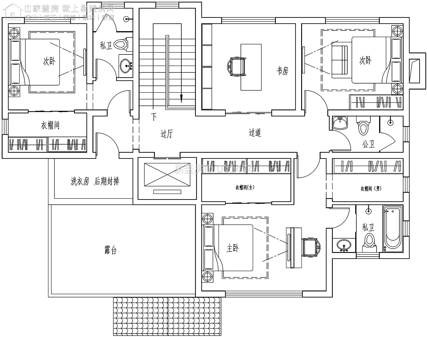
△二层平面图(右侧为北)
二层为自家居住,主卧套房置于东北侧,南侧预留大面积的露台空间,改善局部微环境,优化生活起居体验。
造型设计

△东侧效果图

△东南侧效果图

△东北侧效果图
建筑主体为欧式风格,外墙采用暖色真石漆,搭配深色的屋顶和纹理既增强了建筑整体的稳重感,也使得层次感更加突出,展现出一丝灵动的现代生活气息。

△东南侧效果图

△主立面效果图

△西南侧效果图
二层的休闲空间和超大露台,保证了业主及其家人平时的生活需求。建筑各立面都根据室内需求开窗,搭配少量装饰点缀,来呼应建筑整体简约大气的风格。

△院门效果图

△局部效果图

△庭院效果图
庭院外立面采用了多种材质的搭配,给建筑内部带来良好的视野,用绿化带划分区域,分区合理,使得活动空间充裕。

△东立面图

△西立面图

△南立面图

△北立面图