皇宫总是中国古代首都城市最恢弘的建筑,毕竟作为皇室的宅邸,皇宫不仅是一处住所,更是国家威仪的象征。所以不仅是历史上的大一统王朝大多重视宫廷建筑,连割据一方的小政权,一旦有了喘息之机,也往往营造宫室,增加自己的合法性。
古代中国人对权力的至高想象

然而历史总是有例外。宋代虽然是可与汉唐明清比肩的王朝,其皇宫规模和形制却不如这些朝代,北宋初年甚至出现了宫室被毁却无人修缮的局面。
但丢了面子的宋帝们却收获了里子。从北宋首都汴京到南宋“行在”临安,围绕宫城展开的首都百业繁盛、人口稠密,为帝国贡献了大量税收,也让几代宋帝有“仁政”美誉。
《清明上河图》(局部)(向右滑动)▼






这个朝代为什么这么奇怪呢?
可能是史上最小的皇城
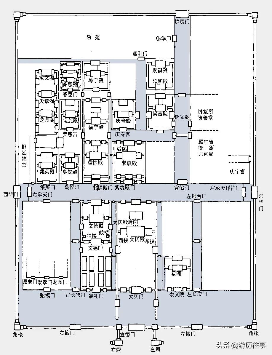
上世纪80年代,河南开封市的考古人员在龙亭湖景区附近发现了一处古城遗址。经过测量,他们发现这是一处周长2520米的古城,而推测其年代,很有可能来自北宋年间。经过专家反复考察论证后,人们终于对这座古城的来历有了统一的认识——这应该是北宋宫城的遗址。
宫城是中国古代王朝都城的最内层
向外可能还有皇城、内城、外城等
(图为傅斯年还原的北宋皇城)▼

2520米折算宋制,约是五里,结合文献,便有了宋史学界的“宋皇宫一城五里说”。
其实北宋早期宫室并非完全新建,而是大范围沿用了宋取而代之的后周,和更之前由朱温建立的后梁营造的宫室。
这种做法其实也颇为普遍
比如唐长安就沿用隋大兴城,清也是沿用明的首都▼

在朱温僭位称帝之前,汴梁(大梁)只是唐宣武军节度使的官署驻地,后梁所谓的皇宫,也不过就是官署改建而成,自然够不上皇宫的规格。五代时期天下大乱,战祸频仍,虽然称帝者不少,有实力为自己造一座气派宫殿的“皇帝”却着实不多,因此后来定都大梁的短命王朝,也基本没能翻修皇宫。
朱温所称雄中原的时代也就是唐灭亡后的“五代”
不知几人称帝几人称王,社会经济严重*退倒**
武人篡权甚至成为政治习惯,朱温自己也是受害者▼

当然到了重新基本完成统一的宋朝,再用前朝官署级别的宫殿就显得太寒碜了。所以宋太祖定都汴京之后,还是选择了扩建皇宫,动用数千民工扩建了皇城东北角,并在几个月后命人按照西京洛阳的宫室标准兴建汴京的皇宫。
开封相比长安洛阳,最大的优势就在于水路枢纽
由于经济中心转移至江淮,补给长安洛阳的成本极高
而经过五代之乱,故都更加残破,故不得不定都汴京▼

最终的建设成果由于开封城屡遭黄河水患,已经无人知晓,但根据文献和考古证据来看,宋太祖最终还是没能住上和唐宫一样气派的宫殿。目前比较主流的看法是,即使算上皇帝居所宫城外围的皇城,宋代皇宫的周长最大也不超过七里,也就是3500米。
核心区在宫城和皇城
外围的城市范围相比前代其实有所扩大
城市的商业和经济功能在宋代有所加强▼

和宋代前后的统一王朝相比,这实在算不上一座大皇宫。当年洛阳的最内圈的宫城周长就达九里三百步,算上外圈的皇城更是长达十八里多,是宋代皇城的两倍有余。而往后数,今天我们能看到的北京故宫,就是明清两代的宫城,周长达3400多米,和宋代的皇宫两城一样大。
若要问皇帝们自己,当然是很想扩建的。坐上了天下九五至尊的宝座,谁又不想把自己家装修得更气派一些呢?至少也要和前朝同等待遇吧。
可惜君主的这些需求往往会在第一时间被扼杀。
比如宋史记载,即兄长之位登基的太宗赵光义,就曾起心动念搞扩建,结果不仅朝臣们反对,连皇宫周边的居民——没错,宋代首都群众可以住在最靠近皇城的地方——都不答应。太宗几番遣人劝说,但终究没能把周边居民劝走。
在沿街开店和流动摊贩方面,宋朝确实开了个好头
开封清明上河园▼

到了南宋,朝廷迁到了临安,初时念及故都尚未收复,也只是造了一个小小的“行在”。随着南宋承平日久,南宋中后期的皇帝也开始不满于“行在”的寒酸,多次提出要扩建。最终不是被大臣拦住,就是被居民阻挠,连太后修个陵都要给居民高额补贴。
如果把汴京和汉长安比较的话
汉长安的宫城和皇城比例明显更大
皇城之外其实就是城外了,主要功能是政治军事上的
对于汉朝皇帝来说,与民争利完全不是个问题...▼

做个宋朝的皇帝,真还挺憋屈的。
当然不顾祖训大兴土木的也有,在宋朝就得首推宋徽宗。在无良道士的怂恿下,徽宗决心采天下奇石在皇城东北方造一处假山,号为“艮岳”,以改良宋朝的国运。算上运花石纲和造假山的经费,徽宗可能是宋朝最会糟蹋钱的皇帝,也几乎是宋帝中唯一有强拆劣迹的一位。
结果就很清楚了,艺术家皇帝打不过北方的战士皇帝
大宋从此再无统一全国的可能▼

国退民才能进
两宋皇宫束手束脚,皇城脚下的老百姓却得了不少实惠。《清明上河图》漫长画卷中展现的繁华汴京城并非空穴来风,而一致被学者们认可是当时宋都风俗的真实写照。
来自横店的真实写照▼

事实上,南北宋的都城都是中国历史上罕见的经济型首都,而不是只有政治作用。而放弃皇宫的气派,为的也正是给皇城外的民生多腾出空间。所以虽然宋宫的规划称不上古代宫室的典范,但却让汴京城和临安城拥有了领先那个时代的繁华。
这并非没有缘由。
唐朝以前的都城规划,在哲学上源出“井田”制,也就是将一座城市视为一大块田,用“井”字形的棋盘格道路将其切开成若干个方块。每一个方块,都被官府规定了一定的功能,或是居住用的“里”,或是贸易用的“坊”,互相之间不得随意联系。即使要联系,也要绕过整个方块行动,非常不便。这就是唐代都城著名的“里坊制”。
隋唐长安就是其中的代表
功能更分配的明明白白,每个居住区都相对封闭
商业在时间空间上受到很大限制,不过便于朝廷管控▼

但汴京城不一样,在九宫格的基础上,增加了城市环路和贯通对角线的斜街。两点之间直线最短,当封闭式的功能块被切开,让百姓就能以更快的速度移动,城市商业运转的效率也就被间接提高了。比如东京梦华录中就提到了“旧曹门外的南北斜巷”,说明当时还是有很多百姓在利用这些新的道路。再加上汴京城中流淌着包括汴河在内的复杂水系,也可以作为大宗货物和人员的通道,首都交通已经相当便捷。
毕竟定都汴京的一大原因就是物资运输的经济性
而这整套物流并不是官府独自能解决的
开封清明上河园▼

而与这种交通规划匹配的,自然是“里坊制”的解体。
这很可能不是宋廷的本意,因为真宗朝曾下令开封府在街道上树立表木,居民不可摆摊侵占街道超过这些表木,违者打七十杖,基本沿袭了唐代长安城的规矩。
北宋汴京内城示意图,和方方正正的老长安还是比较像▼

但老百姓还是忍不住偷偷出来摆摊,和官府“城管”打起了游击战。这一系列斗争在仁宗朝到达了巅峰,有官吏在清理清道时比表木往里了一些,竟被占道的商贩拖到了开封府打官司。这时候皇帝和官员们也终于明白,想要恢复过去死板的里坊制是不可能了,不如放开街巷,或许能促进百业繁荣。这个果子最后被宋神宗摘了去,神宗元丰十二年,朝廷开始收“侵街钱”,里坊制彻底被扫进了历史。
人民群众一旦拥有更多的权利和收入
对法治社会的要求就会大量涌现
官府与民争利也就越发困难,逐渐形成新的社会秩序
开封清明上河园▼

但里坊制既然能在前朝实行数百年,绝非一无是处。它最大的功能,就是随时保持道路畅通,也能减少城市的火灾隐患——这是一座砖木茅草城市中最重要的安全事项。而在百姓侵街、侵河之后,火灾风险难免提高,宋宫和官署又没有少遭火灾的罪,朝廷每日提心吊胆。
好在商业繁盛,百姓有了钱,心里也害怕财富付之一炬,总会想些补偿的办法。他们想出的办法分为两部分:其一是把木结构的房屋改成砖房,其二是置办消防器材并组织联防队防火防灾。这也带来了两个可喜的改观:全面砖瓦化的汴京民房区美观度远胜同时代的大城市,联防队则意味着市民自治风气的初步形成……
也难怪每当提及宋朝,如果仅以首都城市风貌来看,总是让人心驰神往。可惜由于黄河水患,宋以后的城市规划往往是覆盖式的,开封人常说,这是一座一层盖一层的城市,挖开地下全是宝,可你猜不透它来自哪个年代。
有没有人能在一个平行世界里重构东京风华,允许现在的人梦回一次大宋呢?
梦回会呼吸的大宋
最近有一部正在热播的口碑剧《清平乐》,展现的正是宋代,主要是经常被认为是文治巅峰的仁宗朝的历史画卷。仁宗朝人才辈出,晏殊、范仲淹、欧阳修、韩琦、蔡襄、包拯等名臣都涌现于仁宗朝。他们不仅在朝政上辅佐君王,还都是擅长诗文书法的文人,出自他们之手的名篇传唱至今。
所以这部剧精美考究的服道化我们就不说了,单说这些名臣在片中,于公私场合说话都是引经据典,每次这些角色一开口,弹幕就哭求“别说了,您说的我们以后都要背啊!”这就把宋代文化治国的传统给演活了,也带动了全社会对宋朝风雅的讨论。
但其实比《清平乐》更早,网易旗下《逆水寒》就已经致力于复原一个“会呼吸的”大宋。它的时代背景恰在《清平乐》仁宗朝之后,制作组当年开发的时候也是通过精心研究史料,复刻了很多北宋的背景细节。

如果你既看了剧,又玩了游戏,会发现历史背景在两个作品中都呼应上了。
比如电视剧中曹皇后是曹氏后人,祖父曹彬开国功臣,出将入相,而游戏里擅使刀的碎梦流派的顶级*器武**之一,就叫曹彬刀,历史和游戏相映成趣。
碎梦流派原画▼

还有,电视剧中由喻恩泰扮演的晏殊是仁宗朝的贤相,也是位文豪,留下了不少精致的诗词。他的作品,在游戏中就变成了科举活动的一道题。看来默写天团的余威跨越三朝仍然还在。
游戏里还围绕着晏殊儿子晏几道写过的“当时明月在,曾照彩云归。”的词,制作了一则凄婉动人的游戏雅集给玩家体验探索。

还有游戏中的两个流派,使枪的血河和使拳的铁衣,都发源于军阵武术,宗门叫做碧血营。其实这个碧血营化用的就是电视剧中,宋仁宗极为重视的镇戎军(今宁夏固原),这是宋夏战争中最重要的战争前线。
那如果《逆水寒》和《清平乐》这两个专注宋文化的团队合作,会是什么场面呢?
他们还真这么干了。
4月16日,《逆水寒》游戏更新后,就带来了一个很有意思的联动支线任务旧忆三仙。这个故事讲的是关于宋仁宗出生时最大的宫闱绯闻——狸猫换太子案。虽然《逆水寒》本体是徽宗朝的事,但其实距离仁宗朝也不过四五十年,很多知道仁宗朝掌故的老人还活着,他们还有能听到长辈八卦的徒儿子侄,这就给了旧忆三仙剧本发挥的空间。
写得是真不错,很符合《逆水寒》一贯的水平。听说创作团队是参考了大量正史、野史、戏文之后,挖掘脑洞创作的这个支线故事。不要太较真,把它作为一个野史传奇来看,还是很自洽,而且感人的,掩卷之后我也有种怅然若失之感。
通过NPC就能自由选择想要前往的皇城地点
打卡体验▼

喜欢《清平乐》的朋友,看完这部剧的开场肯定也对“狸猫换太子案”大感兴趣。那不妨也去游戏里重新探索不一样的仁宗身世,在完成联动支线旧忆三仙与孤城闭后,将免费获得仁盛至和(电视剧仁宗同款)、徽仪柔怀(电视剧徽仪公主同款)永久联动时装。
左右滑动查看游戏中清平乐同款外观▼


除了剧本,《逆水寒》团队在新版本中还重制了仁宗时代的皇宫,作为两个新剧情的主要发生场景。
这座皇宫可就厉害了,是逆水寒团队以北宋宫城考古资料为蓝本,与清平乐团队一起,严格按照史实和传世*物文**等资料还原了已经消失在历史长河中的北宋宫城,并且得到了故宫院长单霁翔老师的点评指导。
“殿庭广阔,可容数万人”展示出了大庆殿的气势▼

这一下,你不仅能够亲眼看到在现实中已经被掩埋的“宋故宫”,还能让自己的角色代替自己和这段逝去的历史合影。开发组还贴心地提供了时间选择功能,允许玩家换着光线拍,玩到满意为止。而游戏里恢弘的宫殿,也算是圆了宋朝皇帝们住一回大房子的梦。
一个小道消息是,似乎还可以坐一下龙椅,体验一回当赵官家是什么滋味?
在游戏里过把瘾▼

最后再来回顾一下宋代的皇宫。
君权受限的宋代,皇宫比起别的朝代不免有些小家子气,周长只有几里,比不得动辄十几里周长的前后朝。但皇帝做出的牺牲,却让宋代的都城成为了世界古代历史上最有市民气息、最具包容度的大都会之一。
这是何尝不是另一种值得追忆的雍容呢?也难怪网易和正午阳光两家大厂都愿意花几十亿复刻云端大宋了。