新房装修,买家具就怕尺寸出错,全屋家具尺寸就在这了,赶紧收藏
装修是件费心费力的事,不仅要定风格走向,要注意材料和施工,还在于你要不停地测量尺寸,核实尺寸,询问尺寸,这样才能完成一个颜值和实用并存的好装修!
今天呢,小编给大家总结了一些通用的尺寸,收藏起来,装修的你一定用得到!
玄关
玄关最需要注意尺寸的地方是鞋柜。


(1) 想要放下老公44码的鞋,柜子的进深至少30cm,柜子内隔板间距13cm,也可以做成活动板,高度可以随意调;整个柜子中间镂空部分高度一般在35cm-40cm,这个镂空部分用于摆放一些物品;底部留18cm-20cm的悬空,放常穿的拖鞋。。
(2) 鞋柜下方做换鞋台,高度40cm-50cm,脱鞋换鞋更省力。
客厅
客厅由沙发区、电视区组成。

(1) 沙发区,单人沙发长度:80cm-120cm,深度:85cm-90cm;座高: 35cm-42cm;背高:70cm-90cm。双人沙发长度:120cm-160cm;深度:80cm-90cm;座高: 40cm。四人沙发长度:232cm-252cm;深度:80cm-90cm。
(2) 沙发区,沙发与茶几最佳距离45cm,坐着伸手就能够到,过道如果太窄,分分钟磕到。

(3) 电视区,电视机根据客厅面积的选择:客厅的面积约为15~20㎡对应42英寸;面积为35~45㎡对应52英寸;面积为45~60㎡对应70英寸。

(4) 电视区,电视机大小与沙发之间的最佳尺寸关系:2m以下对应32英寸以下,2m-2.5m对应40英寸,2.5m-3m对应50英寸,3m-3.5m对应55英寸,3.5m以上对应65英寸。
(5) 电视中心的高度等于或者低于人坐着的时候的视平线,一般不超过 110cm。
餐厅

(1) 长方形餐桌,两人位为75cm*80cm,四人位为140cm*80cm,八人位为220cm*100cm。
(2) 圆形餐桌,两人位直径50cm,三人位80cm,四人位90cm,五人位110cm,六人位110cm-125cm,八人位130cm,十人位150cm,十二人位180cm。
(3) 餐桌高64cm-72cm,与餐椅差30cm,坐着舒心吃得香。
厨房

(1) 洗菜盆距两侧墙体至少15cm,燃气灶边缘和墙面的净距离不少于10cm,距离左右两侧墙面不少于45cm。

(2) 一字型厨房过道宽度为90cm-110cm,这个尺寸可以满足一人在做饭的同时,后侧还有足够空间让一人侧身通过。
(3) 双一字型厨房两排橱柜中间的过道净距应该不少于120cm,这个尺寸可以满足两人同时分别使用两边的橱柜。

(4) 地柜、台面、吊柜的高度尺寸对厨房来说非常重要,直接关系到后期的使用感受。我们分别定义为H1、H2、H3,这个H1由煮饭人的高度决定,可以按照身高÷2+(5cm~10cm)的方式计算。H2是地面到吊柜最下端的高度,一般在155cm-160cm。H3是地面到吊柜顶端的高度,一般在220cm-230cm。
卫生间
卫生间一般是由洗手区、马桶区、淋浴区、五金挂件组成。

(1) 洗手区,台盆单盆宽度至少60cm,双盆宽度为120cm-170cm,高度80cm-85cm,镜柜顶端离地185cm-200cm是最舒服的。

(2) 马桶区,两侧预留至少15公分,前方50公分方便放腿,纸巾架高65cm-70cm,拿厕纸才方便,离地40cm装插座方便安装智能马桶,这个插座千万别被柜子挡了。

(3) 淋浴区,扇形淋浴房左右至少90cm,长方形短边尺寸80cm,长边100cm。
(4) 洗衣机插座预留高度130cm,进水口低于插座。

(4) 五金挂件毛巾架离地110cm-130cm,浴衣挂钩离地160cm-180cm,浴室置物架离地140cm-150cm,电热毛巾架120cm-150cm。
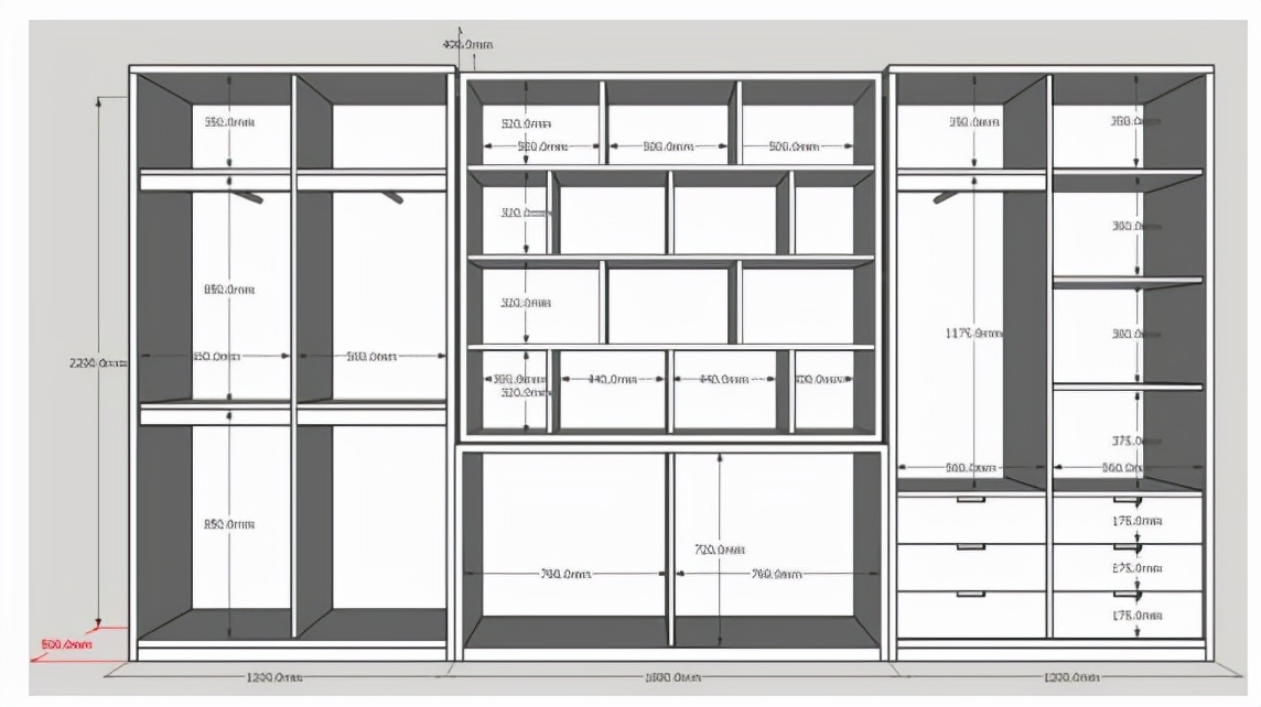
卧室
卧室一般由睡眠区和收纳区组成。

(1) 睡眠区,床的宽度:90cm是单人使用的基本尺寸,如果单人想更舒适一点可以选120cm的宽度;150cm是双人床的基本尺寸,如果想宽敞一些可以选180cm的宽度,还有一种是220cm的超宽双人床,这个尺寸属于定制款,要搭配定制的床垫和床上用品,后续使用会比较麻烦,不是很推荐。

(2) 睡眠区,根据卧室面积选择床:10㎡以下选宽度120cm以下的床,10-20㎡选宽度150cm的床,20㎡以上选宽度180cm以上的床。一般搭配是,床的面积不超过整体面积的二分之一,最理想的搭配是,床的面积不超过整体面积的三分之一。

(3) 睡眠区床头柜的选择,如果房间面积过小,建议只要一个床头柜。如果房间面积足够,可以选择两个床头柜,能增加不少的收纳空间。其中床头柜与床垫顶端的高度一般是差不多的,但高或低15cm也是可以的。

(4) 储物区,床和衣柜距离应该不少于60cm,如果只够这个距离,衣柜门考虑做推拉门。如果床和过道的距离不少于90cm,衣柜门就可以做平开门。

(5) 储物区,平开门衣柜深度55cm-60cm;推拉门衣柜深度最好大于或者等于63cm;挂衣杆下沿到底板距离,长衣区至少135cm、短衣区不少于90cm。

(6) 储物区衣柜高度,一般房间高度在2.7~2.8m之间,如果选择衣柜做到顶,超过2.4米的高度,最好分成上下两柜,下柜的高度一般是2.1m左右,其余的全归上柜。
(图片源于网络,如有侵权联系删除)