
项目名称:福建泉州黄家欧式别墅
项目经理:易子木
图纸编号:1375
建筑面积:524.3㎡
基地面积:300㎡
建筑尺寸:11.9m×12.2m
建筑结构:框架结构
参考造价:108.3万元(不含室内装修费用)
项目概况

△总平面示意图
基地情况: 东:邻家宅院 西:邻家宅院 南:自家余坪 北:村内护坡
项目简介:
业主在前期和我们易盖房设计师沟通时,提供初步意向图,外立面为欧式独栋别墅,表示在工作之余可以到乡下暂享乡村生活。设计师根据业主所需的功能和场地情况,设计为四层欧式独栋别墅,最终使业主满意。
平面布局
户型概况:
4层 / 10室 3厅 10卫 1厨 1书房 1接待区 1神龛 1健身活动区 1KTV 1平台 3阳台 1露台

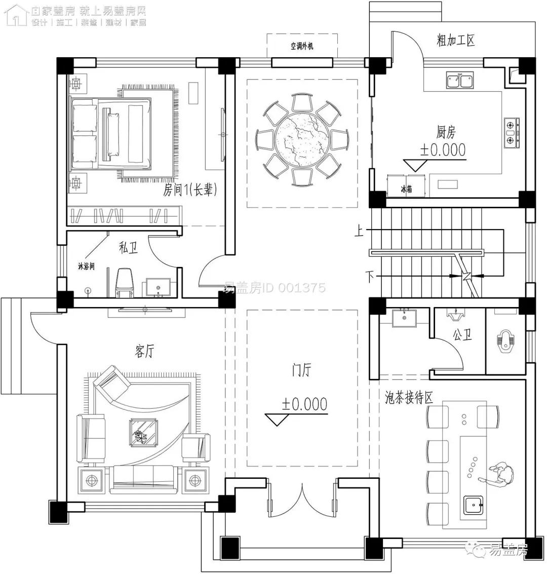
△一层平面图
一层中间部分以门厅与餐厅贯穿布局,宽敞的空间首先给人通透的感觉,体现了别墅的华贵气质,门厅左面是客厅,客厅与门厅之间并无隔断,一眼望去也是一个横向的大空间,舒适豪华。门厅右面是泡茶接待区,易盖房推出的精致养老功能让业主及其家人也很认可。

△二层平面图

△三层平面图
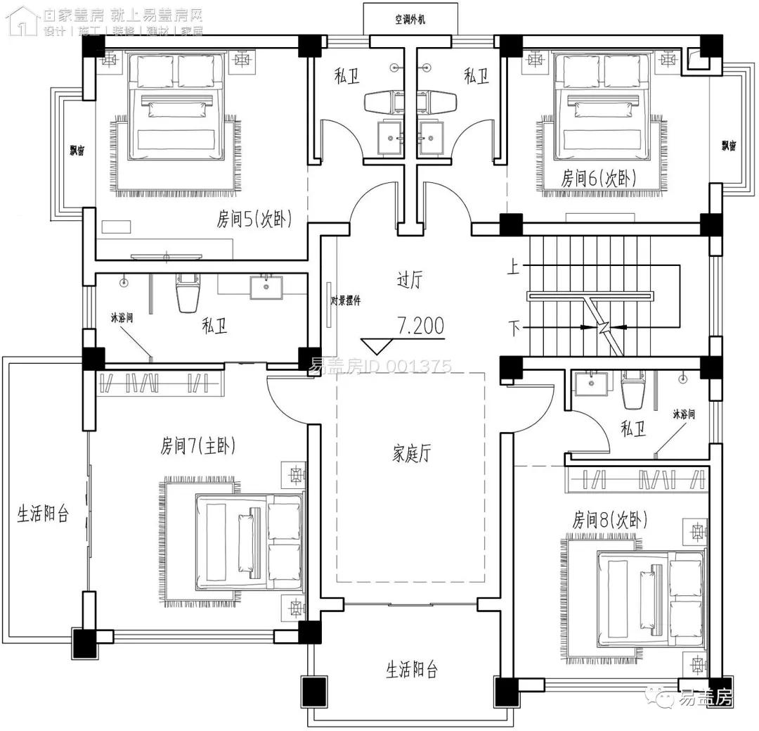
二、三层布局基本相同,二层南部是家庭厅和大区域的挑空客厅区域,其余三角布置成卧室。三层搭配双阳台使用。

△四层平面图
四层空间北侧也设置两间卧室,采光优良,中部搭配健身活动区,大大提高了别墅的实用性。南侧露台上放上一套古雅的小桌,冬日暖阳出来之时,晒晒太阳,喝喝小茶,农村别墅也可以别有一番风味。
造型设计

△南侧效果图

△西南侧效果图

△鸟瞰图
从南侧望去,可以看到家庭厅的窗户与四层的露台,呈现空间的层次感。你说易盖房设计出露台有人用吗?此空间宽敞有余 ,上面架有花架,如果种上几株藤蔓,爬上花架,夏日荫荫,是个避暑的最佳场所,冬日虅叶退去,又可沐浴暖阳。

△东南侧效果图

△鸟瞰图
建筑整体为欧式风格,并在此基础上作了改进,既有欧式风格的优雅浪漫,也融合了现代风格的简约大气。整体配色采用白色系,窗框和空间上的延伸和退让给建筑整体带来层次感。

△东南侧效果图

△北侧效果图

△西侧效果图
建筑背立面,可以看到高耸的烟囱,既解决日常实用的厨空间排烟问题,在造型外立面上看上此元素,无论是家人还村里人都会觉得此别墅更具生活化,在搭配屋后的晾晒平台,有时作为厨房的粗加工平台时,可与邻居增加互动感。

△鸟瞰图

△东北侧效果图

△西南侧效果图
立面造型做整体处理,屋顶选用蓝色的连锁瓦,搭配白色真石漆墙面让整个立面造型丰富而沉稳,一层外墙用同色系石砖,造型统一而丰富。

△东立面图

△西立面图

△南立面图

△北立面图
施工现场
该项目全程由易盖房提供施工管家服务,目前已正式开工。下面为大家贴上一组现场照片。











