
dop设计(ID:dopdesign)原创
作者丨dop设计
编辑丨行之
之前咱们讲的都是《设计师必用的16个节点,收好了》,这种工艺节点类的知识,有小伙伴就问小编能不能出一些系统的平面图啊?
那我当然是满足你们啦,今天咱们就来讲 平面布置图 ,主要解决以下问题:
1、 标准平面布置图都有什么?
2、 平面布置图到底要表达的多么细节?
3、 绘图的5大审核要点流程,需要注意啥?
ps:本期系统全面的讲述了画平面布置图应该注意的要点,适合0-3年的小伙伴差缺补漏,欢迎转发给小伙伴们哦~
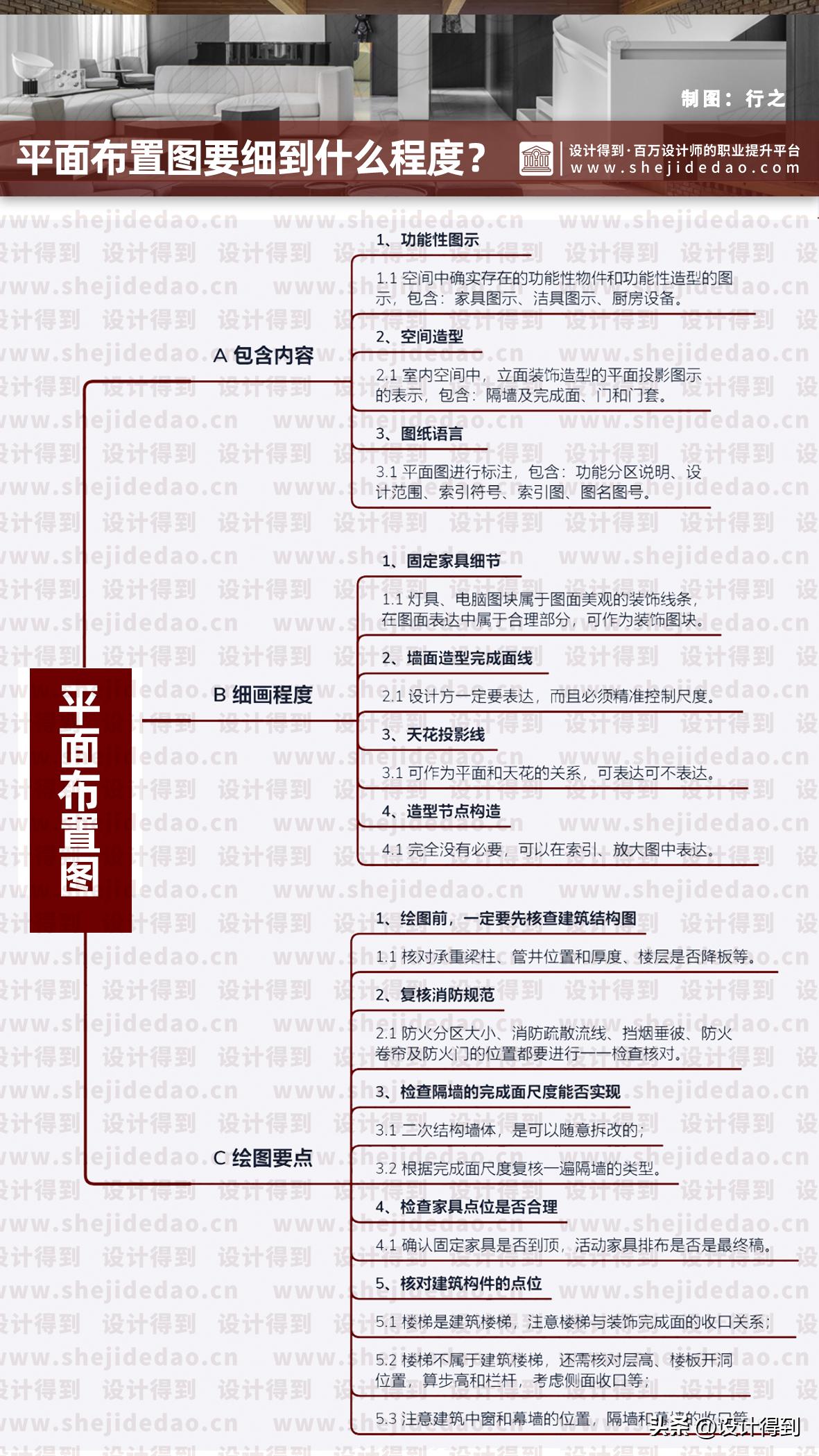
01 . 标准平面布置图
开始绘制平面布置图之前,要先弄明白平面布置图到底是表示什么内容的图纸?给大家一个换个角度:
“你想象一下,拿一块大镜子放在房间的半空中,你能从镜子里看到的地面的样子,就是你需要在平面布置图上绘制的内容。”

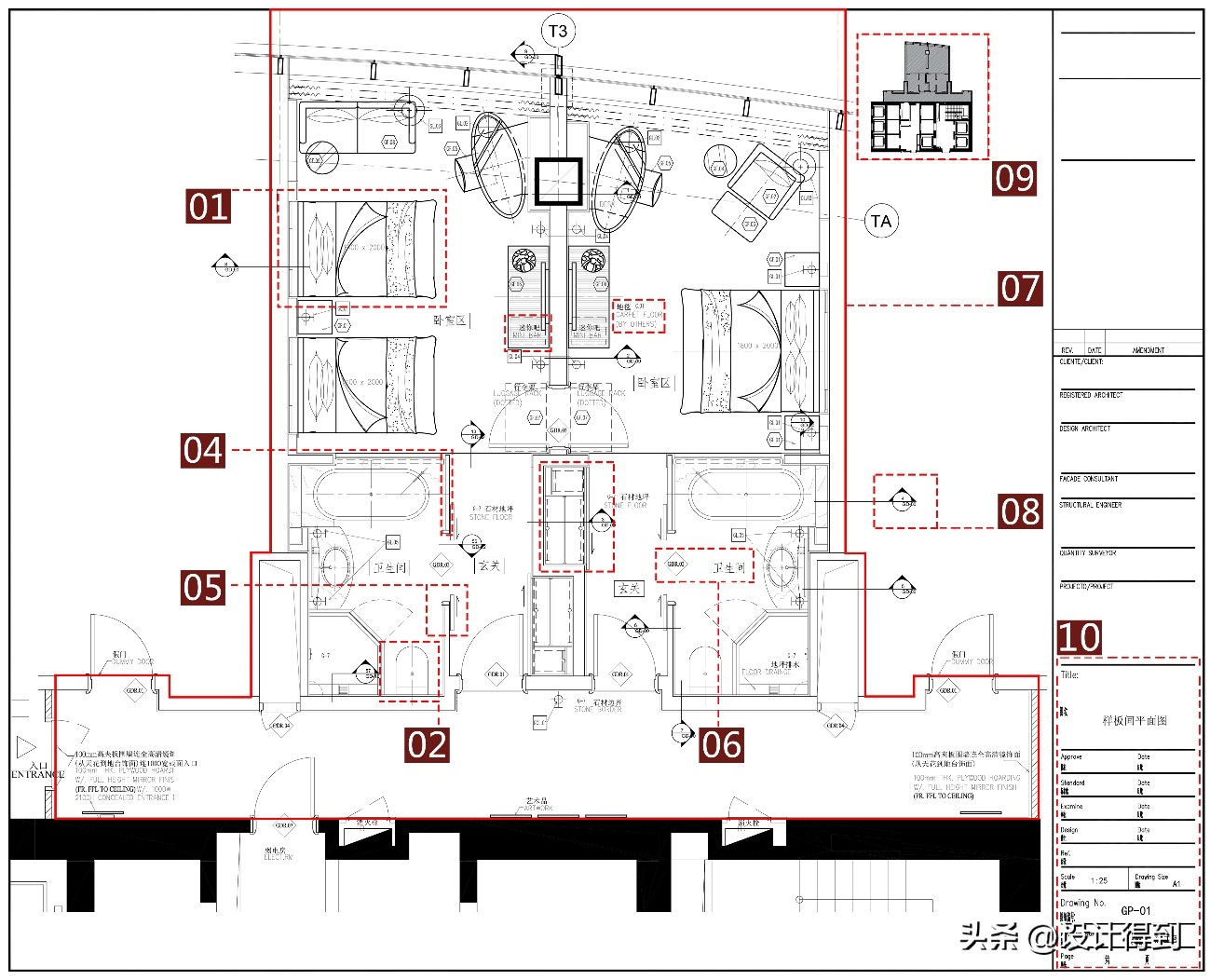
△平面布置图参考标准
上图是我们之前绘制的一张酒店客房的平面布置图,算是一张比较标准且值得参考的图纸,来看看这张图纸中,必须包含哪些基本要素?
1、 功能性图示
功能性图示是指在室内空间中, 确确实实存在的功能性物件和功能性造型的图示 ,主要有如下图示:
标号1:家具图示,必须包含固定家具、活动家具,以及有些落地灯饰等在平面上可见的物品。

标号2:洁具图示,与家具一样,所见即所得,同时,若图纸直接用于指导施工(如住宅项目),则应该注意检查洁具的选型尺度与平面空间的尺寸关系,避免出现洁具设备与平面布局冲突的现象发生。
标号3:厨房设备,原理和家具图示一样,如果你的空间内有相关设备,则需在平面图上体现出来。

△平面布置图参考
(减少大家的来回滑动查看)
2、 空间造型
空间造型是指这个室内空间中, 立面装饰造型的平面投影图示的表示 ,主要包含下列几项:
标号4:隔墙及完成面,需显示分割功能分区的隔墙以及固定隔断,且隔墙的尺度因是最终完成面的尺度。

△隔墙尺度图上的尺寸标注参考
当然,隔墙需要 标注具体尺寸 ,必须单独独立成一张独立的隔墙尺寸图。
该隔墙图 必须与平面布置图的隔墙尺寸图一一对应 ,包括 隔墙类型、隔墙完成面尺度、墙体图例 等说明性内容,都需要在平面布置图上表示出来。
标号5:门和门套,与墙面完成面同理。
3、 图纸语言
图纸语言是指在满足了上面2种功能后, 就需要对平面图进行标注了 ,所以,你必须使用这些图纸语言让别人能看懂你的图纸。
标号6:功能分区说明,这个大家应该都知道,唯一要注意的就是功能区说明因标注在显眼的位置,至于到底用什么字体,要不要加英文,这个就是看自己公司的设计规范了。

△此图重复利用
标号7:设计范围,这一点很重要,尤其是对于做工装设计的设计师来说,这直接影响到后期结算时的利益,所以一定要在平面图上体现出来。
标号8:索引符号;
标号9:索引图(钥匙图);
标号10:图名图号。
以上是我们认为装饰施工图的平面布置图中,必须包含的基本要素,当然 根据不同的项目类型做的细化程度会有所不同,但是原理都一样 ,你可以作为一个样图,保存下来最为参考。
02 . 平面图要“细”到什么程度
“不同的设计阶段,不同的设计分工,对于平面布置图的图纸深度要求,是完全不一样的”。
也就是说, 并不是图纸内容越详细越全面就越好 ,你应该深刻的认识到不同设计分工在制图时,应该把手上的图“细化”到什么程度。
打个比方:作为设计方,在平面布置图中只需要 表达清楚设计理念,基本造型完成面尺度、材料、功能关系等即可 ,至于更多繁杂的装饰细节,不是平面布置图上应该体现的。
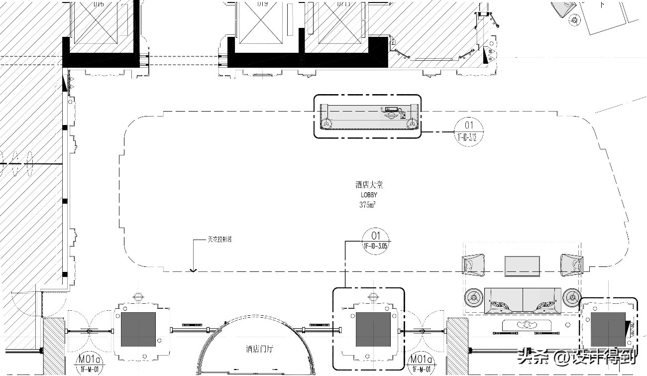
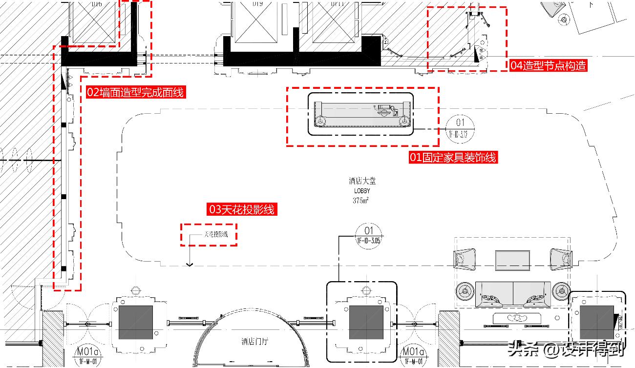
这样讲很抽象,下面我们来看个实际案例, 请你先点开大图看看细节,再想想作为设计师,平面图这样画,是最优的方式吗?

△酒店大堂平面布置图局部
像上边这张平面布置图,看似已经“细”画到一定程度了,那么我可能会告诉你, 你这是在为了把图纸画的好看而画图,既没有多大价值,还浪费了自己大量的制图时间。
为什么这样说?我们选4个点来分析下: 哪些地方可以细,哪些地方不应该细?

△平面布置图局部示意
1、 固定家具细节

△局部放大图
01 处的固定家具细节,如灯具、电脑图块属于图面美观的装饰线条,在图面表达中属于合理部分,可以作为装饰图块来用。
2、 墙面造型完成面线
02 处的墙面造型完成面线是设计方一定要表达的,而且必须要把尺度控制的精准。

△局部放大图
3、 天花投影线
03 处的天花投影线,可以作为对于平面和天花的关系,可表达可不表达,根据公司规范而定。
但是平面图纸出图是不会需要这根线的,多数情况下,这根线只是辅助排布平面家具而存在的。
4、 造型节点构造

△局部放大图
04 处可以看到在完成面里面还有细部的钢结构节点等,在我们的平面布置图中是完全没有必要的,完全可以在索引在放大图中进行表达。
就跟画立面图纸,是不需要把里面的龙骨和吊筋都画出来一样。
03 . 5个平面布置图绘制要点
1、 绘图前,一定要先核查建筑结构图

△建筑图纸
开始制图之前,一定要养成 检查建筑图和结构图的习惯 。
如: 前期核对承重的梁柱位置、管井位置和厚度、楼层是否降板 等。
2、 复核消防规范

△防火分区示意图
设计方案的 防火分区大小、消防疏散流线、挡烟垂彼、防火卷帘以及防火门的位置 都要进行一一检查核对,这是我们绝对不能忽视的部分,也是项目高层的设计师应该重点关注的要点。
在平面布置方案中,对于防火门、消火栓的核对,大部分的方案设计师都不会考虑到 防火门的限制高度2300mm,还有消火栓的位置关系 。
如果装饰图纸中没有这些点位的信息,在做深化施工图时,应该 马上去核查建筑图纸,避免后期的种种问题 。
3、 检查隔墙的完成面尺度能否实现

△核对隔墙厚度与饰面材质是否匹配
a、 除了原建筑的墙体外,剩下的空间隔墙,都是属于二次结构墙体,是可以随意拆改的。
b、 隔墙的类型直接影响到最终的完成面尺度,以及相关的防火、隔音、防潮等因素,而很多负责方案设计的设计师,是很少会考虑这些细节的。
c、 制图之前,要根据完成面尺度复核一遍隔墙的类型,就能很轻易的发现哪些地方使用这种墙体是不能保证完成面的。
这样再去跟方案设计方沟通协商如何更改方案,不然, 图纸画完了,完成面不符,后期所有的平面尺度都跟着重新调整。
4、 检查家具点位是否合理

a、 固定家具 到不到顶 ,直接影响了 顶面造型和地面材质铺设 的范围。
b、 活动家具更是直接影响地面的拼花,或者顶面造型是否以家具为中心,还是以空间为中心。
所以在制图前,应该 确认固定家具是否到顶,活动家具排布方式是否是最终稿。
5、 核对建筑构件的点位
a、 当室内楼梯是建筑楼梯,作为装饰方,只需要注意楼梯完成面与装饰完成面的收口关系即可。
b、 当室内楼梯不属于建筑楼梯,还需要核对层高、楼板开洞位置,然后算步高和栏杆,考虑侧面收口等。
这个地方还需要 注意建筑中窗和幕墙的位置,注意隔墙和幕墙的收口 等。
小结 .
好了,到这关于平面布置图的内容就差不多了,接下来就看小伙伴们在实际当中的应用了,图纸还是要掌握 底层逻辑,多画多看 才能更快的形成自己的绘图习惯。
老规矩,咱们还是来总结一下今天的重点内容:

△点击保存,欢迎转发分享
△文中部分图片源于网络,如有侵权,请联系小编~
- End -