
您与大家共同学习交流
第 19 天

下面请看本期开讲内容
↓↓

本堂课知识点讲解导路:
标准化的施工图操作流程规范

- 【设计基础】详解制图规范 :图纸幅面规格
2、符号的设置(本期内容)
- 详图索引符号
- 节点剖切索引符号
- 引出线
- 立面索引指向符号
- 修订云符号
- 修订云符号
- 标高标注符号
- 剖断省略线符号
- 放线定位点符号
- 中心线
- 绝对对称符号
- 轴线号符号
- 灯具索引
- 家具索引
- 艺术品陈设索引
- 图纸名称
- 指北针
3、材质图例的设置
4、尺寸标注与文字标注的设置
5、线型与笔宽的设置
6、电脑图层的设置
- 0- 000图签
- 0- 001轴线
- 0- 110墙
- 0- 120门
- 0- 130窗
- 0- 140标注
- 0- 150吊顶
- 0- 160地面
- 0- 170家具
- 0- 180立面
- 0- 190机电
- 0- DEFPOINTS 系统默认非打印层
7、比例的设置
8、图面构图的设置
9、施工图编制的顺序
- 封面
- 目录
- 文字说明
- 图表
- 平面图
- 立面图
- 节点大样详图
- 配套专业图纸
10、图表
- 图纸目录表
- 材料表
- 门窗表
- 洁具表
- 家具表
- 机电图例表
- 灯具表
- 艺术品陈设表
11、平、立、剖面图及节点大样图的绘制及相关标准
- 平面图的概念及作用
- 室内平面图的命名
- 平面图绘制过程中应注意的问题
- 立面图的概念及作用
- 立面图的命名
- 立面图在绘制过程中应注意的问题
- 剖立面图的概念及作用
- 剖立面图在绘制过程中应注意的问题
- 节点大样详图的绘制
- 节点大样详图在绘制过程中应注意的问题
12、施工图在各设计阶段应注意的事项
- 项目的前期资料收集与现场勘测
- 效果图方案设计
- 施工图扩初设计
- 施工图深化设计
- 设计现场监理与施工图现场深化调整
- 竣工图的绘制
- 设计项目资料内部管理
13、施工图与现场深化设计
14、施工图的归档与分类
15、关于布局空间与模型空间在实际绘图中的应用
说明:关于“标准化的施工图操作流程规范”的知识点分章节依次图文讲解,共15个章节,有的章节内容较多,独立开篇讲解,有的章节内容较少,将合并章节讲解,注意课堂讲解导路的字幕指引,黑色粗体为本期讲解内容,上期内容回顾并可点击字幕链接回顾,以便衔接知识点内容阅读使用,敬请期待。
【施工图操作流程规范】
施工图符号的设置
一、详图索引符号
2.1.1名称:详图索引符号。
2.1.2用途:可用于在总平面上将分区分面详图进行索引,也可用于节点大样的索引。
2.1.3尺度:A0、A1、A2图幅索引符号的圆直径为12mm,A3、A4图幅索引符号的圆直径为10mm。
2.1.4备注:


如索引的详图占满一张图幅而无其它内容索引时也可采用如下图的形式。↓↓

详图占满图幅,A0、A1、A2图幅,5mm,A3、A4图幅3mm

此索引方式主要用于节点大样的比例再次放大,构造表示更为详尽。
二、节点剖切索引符号
2.2.1名称:节点剖切索引符号
2.2.2用途:可用于平、立面造型的剖切,可贯穿剖切也可断续剖切节点
2.2.3尺度:A0、A1、A2图幅剖切索引符号的圆直径为12mm,A3、A4图幅剖切索引符号的圆直径为10mm

2.2.4备注:




注:无论剖切视点角度朝向何方索引圆内的字体应与图幅保持水平,详图号位置与图号位置不能颠倒。
三、引出线
2.3.1名称:引出线。
2.3.2用途:可用于详图符号或材料、标高等符号的索引。
2.3.3尺度: 箭头圆点直径为1mm,圆点尺寸和引线宽度可根据图幅及图样比例调节。

2.3.4备注:引出线在标注时应保证清晰规律,在满足标注准确齐全功能的前提下,尽量保证图面美观。
常见的几种引出线标注方式:参见图3-1、3-2、3-3、3-4

左:图3-1右:3-2

图3-3

图3-4
四、立面索引指向符号
2.4.1名称:立面索引指向符号
2.4.2用途:在平面图内指示立面索引或剖切立面索引的符号
2.4.3尺度:A0、A1、A2图幅剖切索引符号的圆直径为12mm,A3、A4图幅剖切索引符号的圆直径为10mm


圆内上下字体不能颠倒
如一幅图内含多个立面时可采用下图形式 ↓↓

如所引立面在不同的图幅内可采用下图形式 ↓↓

下图符号做为所指示立面的起止点之用 ↓↓

下图符号做为剖立面索引指向 ↓↓

参见图4-1 ↓↓

图4-1
五、修订云符号
2.5.1名称:修订云符号。
2.5.2用途:外弧修订云可表示图纸内的修改内容调整范围,内弧修订云可表示图纸内容为正确有效的范围。
2.5.3尺度: 绘制方式可参见AUTOCAD → revcloud命令

2.5.4备注:修订云内弧与外弧的尺度可根据绘制的具体内容确定其形式较随意,但修订日期却可对图纸的修改深化,起到明确的记录作用
六、材料索引符号
2.6.1名称:材料索引符号。
2.6.2用途:可对平、立面及节点图的饰面材料进行索引,在设计过程中如饰面材料发生变更可只修改材料总表中的材料中文名称,若干张图纸内的材料编号可不必调整。
2.6.3 尺度:


2.6.4备注:饰面材料代码编号在设计团队内部应有明确规定个别项目如时间允许也可以在材料编号后补充中文,材料编号不单纯是为了设计修改方便,亦可使施工单位在编号与总表的不断对照中加深对材料及设计的理解,设计团队内部除对饰面材料进行编号外也可以对常用的材料进行归类编号。其形式可参见本书节第十章图表内的装饰材料表。
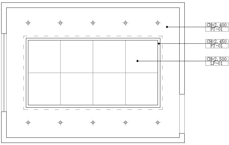
七、标高标注符号
2.7.1名称:标高标注
2.7.2用途:用于天花造型及地面的装修完成面高度的表示
2.7.3尺度:

符号笔号为4号色,适用于A0、A1、A2图幅字高为2.5mm,字体为宋体

符号笔号为4号色,适用于A3、A4图幅字高为2mm,字体为宋体

由引出线、矩形、标高、材料名称组成,适用于A0、A1、A2图幅字高为2.5mm,字体为宋体

由引出线、矩形、标高、材料名称组成,适用于A3、A4图幅字高为2mm,字体为宋体
2.7.4备注:

符号多用于大样图。参见图7-1、7-2

图7-1

图7-2

可用于地面铺装及天花平面。参见图7-3

图7-3
八、剖断省略线符号
2.8.1名称:剖断省略线
2.8.2用途:用于图纸内容的省略或截选。
2.8.3尺度:

2.8.4备注:cad中的使用命令为BREAKLINE

九、放线定位点符号
2.9.1名称:放线定位点
2.9.2用途:用于地面石材地砖等材料铺装的开线点
2.9.3尺度:

2.9.4备注:定位点可与建筑轴线相关联标注,以便其定位更为准确。
十、中心线
2.10.1名称:中心线(Center Line)
2.10.2用途:用于图形的中心定位
2.10.3尺度:

2.10.4备注:应用方式如下图,参见图10-1

图10-1
十一、绝对对称符号
2.11.1名称:绝对对称符号
2.11.2用途:用于说明图形的绝对对称,也可做图形的省略画法
2.11.3尺度:

使用方法参见图11-1

图11-1
十二、轴线号符号
2.12.1名称:轴线号符号
2.12.2用途:用来表示轴线定位的名称符号
2.12.3尺度:

适用于A0、A1、A2图幅字高为5mm,字体为宋体

适用于A3、A4图幅字高为4mm,字体为宋体
2.12.4备注:平面定位轴线号水平方向采用阿拉伯数字由左至右排序,垂直方向为大写英文字母,由下至上排序(其中I、O、Z三个字母不可使用)参见图12-1

图12-1
十三、灯具索引
2.13.1名称:灯具索引符号,由椭圆形、引出线、灯具符号组成
2.13.2用途:用于表示灯饰的形式、类别的编号,CL大写英文字母表示灯饰。
2.13.3尺度:

A0、A1、A2图幅,字高为2.5mm,字体为宋体

A3、A4图幅,字高为2mm,字体为宋体
2.13.4备注:灯具索引符号应与详细的列表相结合,以便更为细致的进行描述(可关注后期分享,敬请期待)
十四、家具索引
2.14.1名称:家具索引符号
2.14.2用途:用于表示各种家具的符号
2.14.3尺度:

A0、A1、A2图幅,字高为2.5mm,字体为宋体

A3、A4图幅,字高为2mm,字体为宋体
2.14.4备注:多指活动家具,列表中应对应图片(可关注后期分享,敬请期待)
十五、艺术品陈设索引
2.15.1名称:艺术品陈设索引符号
2.15.2用途:用于表示图中陈设物品(含绘画、陈设物品、绿化等)
2.15.3尺度:

A0、A1、A2图幅,字高为2.5mm,字体为宋体

A3、A4图幅,字高为2mm,字体为宋体
2.15.4备注:列表中应对应图片(可关注后期分享,敬请期待)
十六、图纸名称
2.16.1名称:图纸名称及详图索引符号
2.16.2用途:用于表示图纸名称及其所在的图号,由圆形、引出线、图纸名称、图纸号、比例、说明、控制布局线组成。
2.16.3尺度:

A0、A1、A2图幅,字母与数字字高为2.5mm,图纸名称字高为4mm,字体为宋体

A3、A4图幅,字母与数字字高为2mm,图纸名称字高为3mm,字体为宋体
十七、指北针
2.17.1名称:指北针,由圆及指北线段和汉字组成
2.17.2用途:用于表示平面图朝北方向
2.17.3尺度:

A0、A1、A2图幅字母字高为2.5mm,汉字字高为4mm宋体

A3、A4图幅字母字高为2mm,汉字字高为3mm宋体
说明:室内设计施工图所绘制的符号均在布局空间内按1:1比例绘制,形成标准模板。在标注时可直接调用,对保证图面的统一规范及美观起到很大的作用。
在室内设计工作的过程中,施工图的绘制是表达设计者设计意图的重要手段之一,是设计者与各相关专业之间交流的标准化语言,是控制施工现场能否充分正确理解消化并实施设计理念的一个重要环节,是衡量一个设计团队的设计管理水平是否专业的一个重要标准。专业化、标准化的施工图操作流程规范不但可以帮助设计者深化设计内容,完善构思想法,同时面对大型公共设计项目及大量的设计定单行之有效的施工图规范与管理亦可帮助设计团队在保持设计品质及提高工作效率方面起到积极有效的作用。
今天的装修小知识就到这里啦!各位有get到吗?感谢你们的分享与学习,我们下期再见!
—END—
↓↓
获取更多专业技术,请点击关注头条号、微信公众号:“华建环境设计研究所”
更多有关建筑、室内的知识点、学识理论、施工技术、优秀案例等与您交流分享
