
- 建筑师: Keiji Ashizawa Design
- 面积: 216平方米
- 年份: 2021
- 照片: 本·理查兹
- 首席建筑师: Keiji Ashizawa
- 建筑师:Keiji Ashizawa Design
- 城市:涩谷市
- 国家:日本

蓝瓶咖啡涩谷咖啡厅距离繁华的闹市区仅几步之遥。设计为位于两个公园之间的城市休闲场所,内部是我们工作室生产的第二款蓝瓶咖啡。





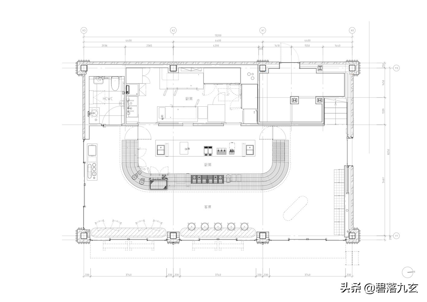
穿过 Kitaya 公园,经过在石卷实验室长椅上享用咖啡的顾客,您首先会遇到围绕厨房区域的大型弧形瓷砖柜台。这些带有特殊火山灰釉的瓷砖是连接内部和外部的关键材料,是伦敦材料制造商 Dzek 和阿姆斯特丹设计工作室 Formafantasma 合作开发的。整个咖啡馆,7000多块瓷砖由一位熟练的工匠精心铺设。

在一楼,我们放置了不同高度的桌子——一个带凳子的高柜台,这样人们可以看到咖啡师准备咖啡,还有一个较低的桌子,让人们从里面享受公园的乐趣。


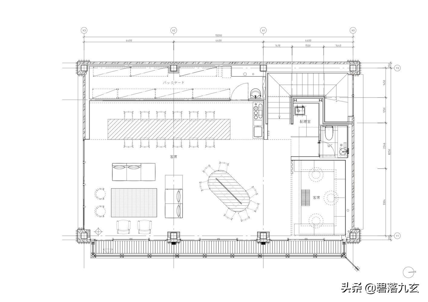
上到二楼,您会发现各种座位选择,旨在满足不同客户的需求。在空间的一端,可以通过灰色透明窗帘将带有长椅座位(以秋季橙色纺织品软垫)的较低楼层区域与主要区域隔开。中心的椭圆形餐桌为周围提供了休闲、公共的氛围,而带有图书馆般灯光的高柜台桌则允许安静的团体和单身人士坐在空间的后部。在远端,一张低矮的瓷砖咖啡桌周围环绕着舒适的躺椅和沙发。

除了清晨的咖啡/食物菜单,晚上还提供开胃菜和天然葡萄酒。我们希望来访者能享受到温暖的气氛,就像他们被邀请参观亲密朋友的欢迎之家一样。









