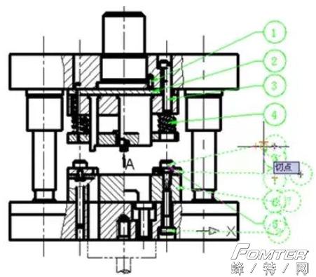
多重引线功能是引线QLEADER(LE)功能的延伸,它可以方便地为序号标注添加多个引线,可以合并或对齐多个引线标注,在装配图、组装图上有十分重要的作用,如下图。

多重引线的组成
多重引线对象由内容、基线、引线和箭头四个基本部分组成,如下图。各部分的设置都比较灵活,内容可以为多行文字,也可以为块对象,必要时,也可以使内容为空;基线是可选的,用户可在多重引线样式中设置基线的长度;引线也是可选的,当使用引线时,可以将引线设置为直线或样条典线;箭头的风格和大小也可以在多重引线样式中设置。由于多重引线作为一个统一的标注整体,所以修改和调整都很方便。

多重引线样式
可以为多重引线定义多种样式,在创建多重引线时方便地调用相应的样式,通过样式来控制多重引线的格式和视觉较果。

多重引线样式的设置跟标注样式比起来要简单得多,只有三个选项卡,而且每个选项卡的参数并不多,但要介绍起来还是要占用大量的篇幅,这里就不细讲了,其中比较特殊的参数就是在"内容“选项卡中默认多重引线类型是”多行文字“,可以改成”块“,比如我们设置一个编号的图块作为引线内容。

多重引线的绘制并不比普通引线复杂多少,关键是多重引线可以一个内容添加多条引线,还可以将多个内容合并到一个引线,此外还可以执行对齐操作,下面简单介绍一下多重引线相关的几个操作。

添加引线
利用添加引线功能可以方便地为多重引线添加多条引线,具体操作步骤如下:
1. 选择“添加引线”菜单命令。
2. 选择多重引线标注。

3. 指定引线的位置。必要时,可连续添加多条引线。

如果引线添加错了,可以用删除引线功能删除多重引线对象上的引线。
引线对齐
当创建了多个引线后,可以利用引线对齐功能将引线排列整齐,让图片更加整洁漂亮。
1.选择多重引线的“对齐”菜单命令。
2.选择需要对齐的多重引线。

3. 选择对齐的参照对象。

4.指定对齐方向。

5. 完成对齐。

引线合并
当部件之间关联密切,而且空间相对有限时,可使用“合并”功能将多个多重引线对象合并为一个。
1.选择多重引线的“合并”菜单命令。
2.选择需要合并的多个多重引线。

3. 指定合并方向。此处输入V,选择以垂直的方向进行合并。

4. 指定多重引线的位置。

5.完成多重引线的合并。

上面简单地介绍了一下多重引线相关的命令和这些命令的作用,但要想用好多重引线,关键还是要设置好多重引线样式,弄清楚其中各项参数的作用。