
河南南阳李家新中式别墅
建设地点
河南南阳
图纸编号
1160
尺 寸
面宽12.8米 进深11.3米
建筑面积
263.0㎡
设计机构
易盖房杨洋工作室
土建造价
45.0万
项目概况

△总平面示意图
基地情况:
东:村内道路
西:邻家住宅
南:村内道路
北:邻家住宅
项目简介:
业主在项目前期沟通时并未提出过多具体的设计需求,只希望设计师能够预留出堂屋和双卧室,并提供易盖房图库中642编号的项目以供设计师参考。
设计师根据业主建议和场地情况,将项目形式确定为南北朝向的二层新中式别墅。
平面布局
户型概况:
2层 /5室 1堂屋 2厅 2卫 1厨 1储藏 2衣帽 1书房 1平台 1阳台 1露台

△一层平面图
一层主要设置堂屋与客厅相邻,和东北侧客房相呼应,便于接待。东侧的卧室设置成长辈卧室,搭配衣帽间使用。

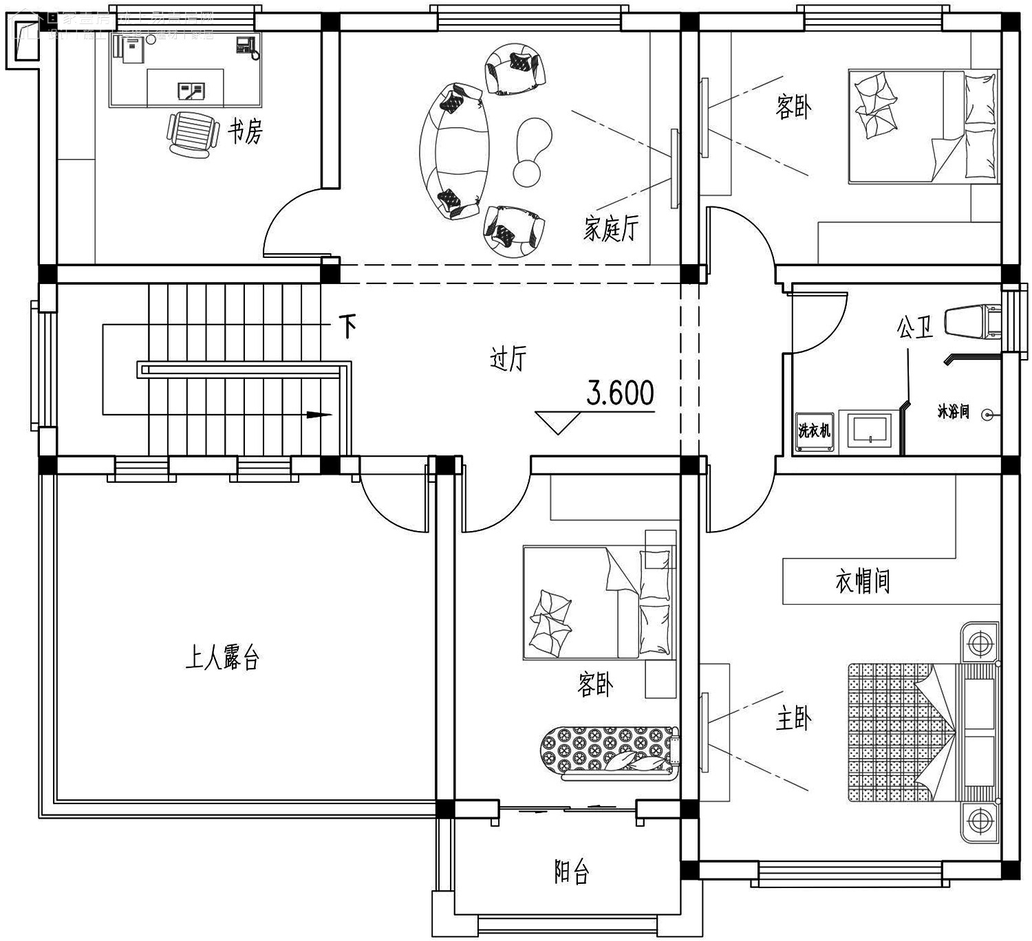
△二层平面图
二层空间定位于日常居住,设置三室一厅的基本配置书房,为成年人提供了闲暇时安静的阅读和工作空间;同时搭配阳台和观景露台,为日常起居提供更多休闲空间。
造型设计

△南侧效果图
建筑整体为新中式风格,立面采用暖色打造淡雅基调,配合褐色和连锁瓦屋顶让建筑视觉上干净有韵味。平面凹凸有致让建筑层次自然展现,配合庭院设计,视觉上十分丰富。

△鸟瞰图
建筑立面采用真石漆勾缝,局部使用文化石,深浅交替间让整体轻快起来。浅色立面点亮视觉,自然达到空间划分的效果。顶层阳台和露台相呼应,搭配简约大方的屋顶样式让建筑视觉上十分舒适。

△西南侧效果图
二层护栏在颜色上与屋顶相呼应,采用中式古朴设计工艺打造出精致感。正门位置的装饰使得室内外空间过渡明确,并增加了仪式感。

△鸟瞰图

△东南侧效果图
建筑坐落在基地上自然形成庭院部分。立面墙体稍显单调空间使用绿植配合低矮灌木或盆栽鲜花,让视觉上丰富不少。

△东立面图

△西立面图

△南立面图

△北立面图