
装修图纸是整个装修过程的灵魂,一套完整专业的图纸可以有效指导施工中的具体造型、尺寸、工艺细节。
施工图是设计细节落地的基础,如果图纸不全或者不清晰,无法正常按图施工,会对工程进度以及工艺规范造成很大的影响。
虽然图纸上密密麻麻的线条与标注让人看了头大,其实看懂图纸并不难。
作为屋主,如果能够简单能看懂图纸,可以大大提高对设计细节与施工的理解,在装修过程中的沟通交底会更顺畅,避免因为沟通误差而导致返工,影响整个工程进度。

首先,我们要知道,装修中需要哪些图纸:
完整的施工图纸应该包括的基本内容
原始勘测图、平面布置图、家具尺寸图、改造结构图(墙体拆除/新建墙体)、地面铺砌图、天花吊顶造型图、天花吊顶尺寸图、灯具尺寸图、开关布置图、强弱电插座布置图、给排水布置图、立面图、剖面图等。
01.目录
一套施工图纸有几十页,图纸索引目录和设计说明,是为了能够清晰的标注在施工中会涉及到的材质、制作方(现场做还是定制),以及所有图纸对应的页码,便于查找。

02.原始勘测图
设计师量房之后,最先出的就是这张原始建筑尺寸勘测图,后期所有设计都以这张图为基础。
如果原始尺寸测量不准确,会导致设计从平面图布局开始出错,从而整套图纸发生偏差、最终设计无法落地实施。
原始尺寸图需要包括:
① 所有空间的具体尺寸、墙体厚度、层高、地面标高;
② 承重墙位置,房间梁柱位置尺寸、门窗洞口的尺寸位置;
③ 各项管井(上下水、煤气管道、烟道、坑管、进户电源)的位置、功能、尺寸等项目。

03.平面布置图
平面功能布置图,是根据业主的生活方式、居家需求而设计的空间规划,会涉及到空间的改造和重新利用,目的是为了让空间布局更合理,功能需求更符合屋主的居住习惯。
平面布置图/尺寸图中包含的内容较多,是整套设计中最核心的指导图纸,一般要求标明:
① 墙体位置与尺寸,如有结构梁柱、门窗位置,应注明具体宽度尺寸;
② 每个区域名称要标注名称:如客厅、餐厅、主卧、次卧、书房、休闲阳台等;
③ 门的开启方向;
④ 如有楼梯,需标明楼梯在平面位置的安排,以及上下方向示意及梯级计算;
⑤ 活动家具布置以及装饰品等配置的标注。

04.家具尺寸图
平面尺寸图中,对平面布置中所有的空间造型、家具、电器进行详细的尺寸标注,方便业主在选购材料的时候进行尺寸参考,避免尺寸不符,影响家具的摆放。

05.改造结构图(墙体拆除图/新建墙体图)
墙体改建图是为了有效指导空间墙体改造施工,图纸上标注好需要拆除或新建的墙体,承重墙的位置以及其它属性的墙体。
为了便于识别,墙体改建图上会使用不同的图形标注需要拆除的墙体,以及不同属性需要新建的墙体(如红砖墙、钢结构基层、轻钢龙骨大芯板隔墙等)。
特别提醒:承重墙一般是深色标注,它是装修中命令禁止不能随意改动的,所以要提醒大家,设计不要一味追求墙体改造,要在允许范围内进行空间改造。

▲墙体拆除图

▲新建墙体图
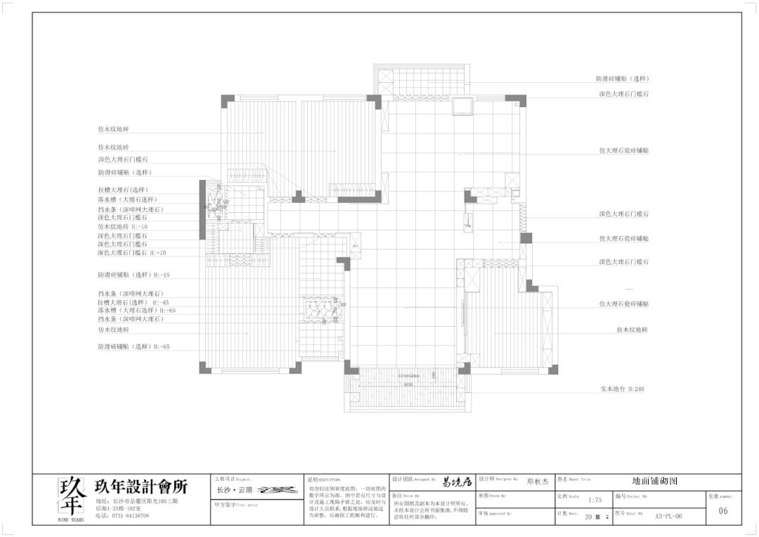
06.地面铺砌图
地面铺砌图是用于指导地面施工铺设,为业主购买地面材料提供材质、尺寸、面积的参考指导。
图纸上需要详细标注每个空间的地面使用的材质、地面标高,比如木地板、瓷砖,门槛石、防滑砖、落水槽、挡水条、木纹砖等等。

07.天花吊顶造型图
标注每个空间需要吊顶的位置,在图纸上体现出吊顶造型的尺寸、材质,比如石膏板吊顶、暗藏窗帘盒、暗藏投影幕布盒、暗藏灯带、暗藏吊轨门等等。
另外,在顶面图中,也会具体标注出不同灯具的形态和位置,每种类型的灯具都会用不同的标注图形(比如筒灯、射灯、吸顶灯、艺术吊灯、灯带等等)。

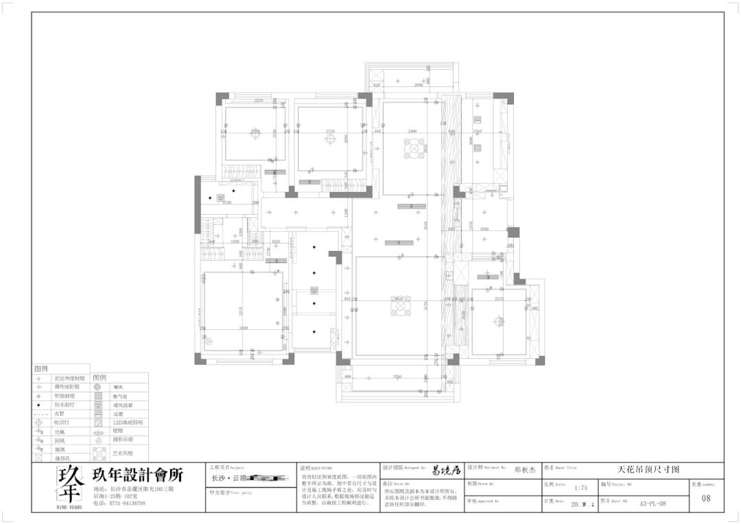
08.天花吊顶尺寸图
顶面尺寸图纸中包括的天花具体造型尺寸和灯具定位,可以精准指导吊顶的施工尺寸,避免因尺寸误差导致整个吊顶返工,影响施工工期。
另外,在顶面图中,也会具体标注出不同灯具的形态和位置,每种类型的灯具都会用不同的标注图形(比如筒灯、射灯、吸顶灯、艺术吊灯、灯带等等)。

09.灯具尺寸图
标注顶面灯具的具体位置与尺寸,可以协助施工进行精准定位,避免到了装修后期才发现位置不准,需要重新开孔洞,空时也方便业主在选购灯具时有详细的数量和尺寸参考,避免尺寸不符。

10.开关布置图
开关布置图主要为了标注体现各种开关之间的相互控制方式,包括单联单控、双联单控、三联单控、四联单控、单联双控、双联双控、三联双控、浴霸开关、调速开关等。
需要注意的是:图示上需要同时注明房间中所有开关的位置及每个开关对应控制的电器、灯源等,注明开关的种类,避免安装时混淆。

11.强弱电插座布置图
插座布置图包括强电与弱电布置:
① 弱电包括分户弱电箱、电话、网线、有线电视、音箱、无线路由、widi热点等位置标注示意。
② 强电包括分户强电箱、五孔插座(地插)、大功率的插座(空调、烤箱),插座带开、防水插座等位置标注示意。
插座布置图是设计图纸中十分重要的一部分,在核对图纸时需要注意插座的位置、数量,并且考虑门窗、家具的摆放位置,要根据家中电器的数量和种类以及自己的生活习惯安排,适当留出空余量来。

12.给排水布置图
包括冷热水管布线标注、冷热水出水口、水阀门的布置,以及下水布置标注(主下水管、马桶下水、地漏等)。
同时要标注出用水设施位置,比如锅炉、热水器、冷水管、热水管、净水器标注,如果有暗藏花洒、墙排水、壁挂洗衣机给排水暗藏,也需要在图纸上详细标注出来。

13.立面图(依据空间设计造型出)
立面图主要是为了体现特殊造型中的细节和纹路以及施工中需要注意的部分。一般需要标注出造型、材质、尺寸、工艺、收口细节等,越细致越清楚,越能够提高施工准确性。
立面图是根据空间设计的造型不同而出,造型复杂的风格立面图相对会比较多,造型简单的设计中立面图就会比较少。
为了便于施工过程中看图,一般立面图会配置索引图,方便快速找到对应空间的立面图

▲立面索引图

▲立面图(如有多个空间设计,则会出多张立面图)
14.剖面图(依据空间设计造型出)
剖面图是为了辅助立面图,详细指导施工具体细节,根据造型设计说明需要而出。

一个作品的完成,图纸完成只是第一步,更重要的是后期施工的落地性。
高效地配合,仔细注意每一处细节,用心完成一个「家」。

▲现场勘测,平面布局沟通

▲施工过程中现场交底

▲现场软装摆场,毕业照拍摄
以上内容均为长沙玖年设计原创。
END.
『 往期案例欣赏 』
玖年设计实景案例 丨 Morandi&Grey 灰色空间的生活美学

玖年设计实景案例 丨 陌上芳菲

玖年设计实景案例 丨 浮生若梦

只要对生活多一些期待和心思, 就算是小小的几平米,也能充满美好。

编辑/玖玖乘法表哥
更多细节,欢迎关注公众号/抖音/好好住/一兜糖/小红书同名帐号:长沙玖年设计
更多案例点击下方「了解更多」即可查看