本案位于深圳市福田区NEO大厦,由于证券行业的特殊性,在风格上做了新中式风格与现代风格的相融合,以此来体现证券公司的严肃性和与时俱进的精神,整体给人一种沉稳但不过时的感觉。在空间规划上,也根据不同功能室的使用频率,实现了灵活的变通性,让空间多样化,达到空间的最大化利用的同时,也能不错过超高层建筑的超广视野风景。 ▼入口效果


▼中心走道


▼折叠门隔出会议室

▼折叠门效果

▼商谈室/茶室



▼洽谈区

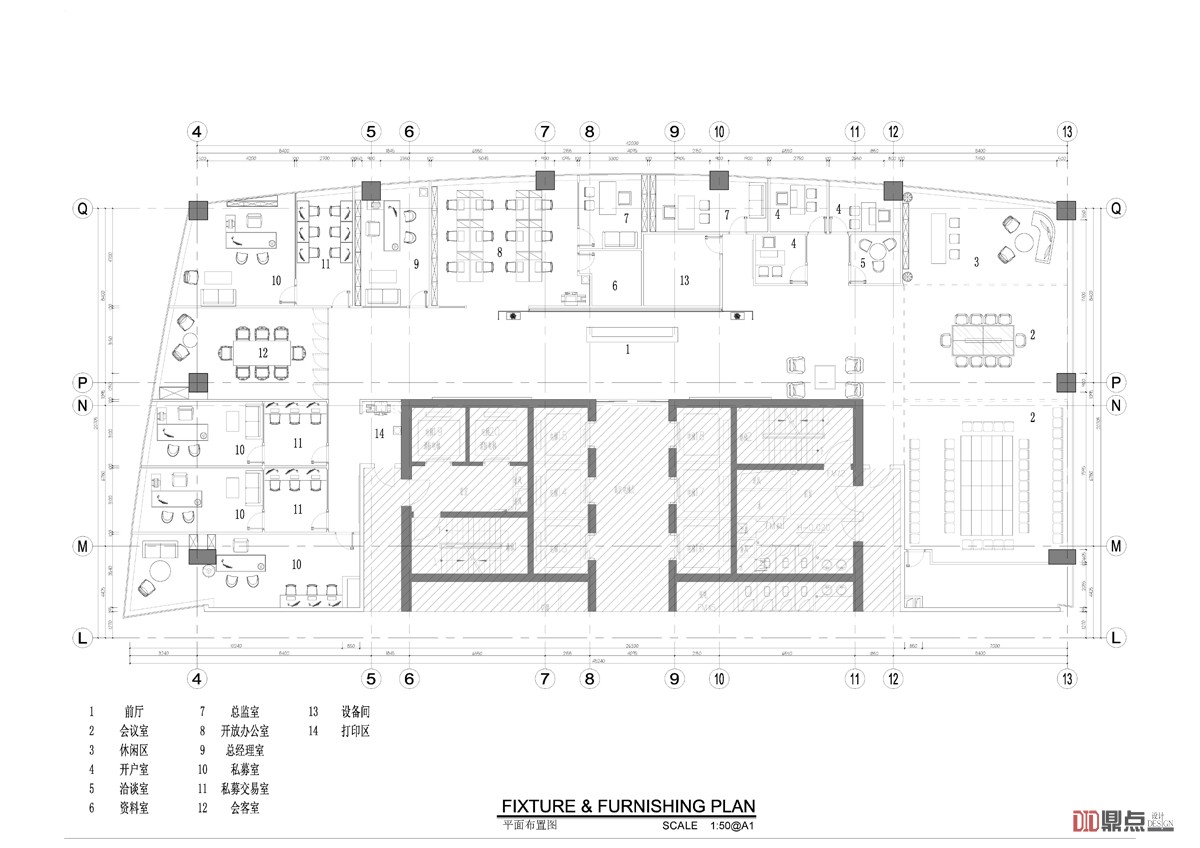
▼平面图

设计团队:DID鼎点室内设计(深圳)有限公司; 主案设计:罗淞元,程施洋; 协助设计:黄诗淇,徐傎涛,曹振一,邓威; 建案地点:广东深圳福田区车公庙NEO大厦A座53F 项目面积:1000㎡; 作品类型:办公空间; 主要材料:雪花白大理石,木纹玉大理石,古铜拉丝不锈钢,夹丝玻璃,木饰面,方块地毯,艺术地毯
标签 : 现代证券公司办公室新中式 企业办公现代主义新中式