
建筑面积
447.3㎡
占地面积
175.5㎡
建筑尺寸
15m×11.7m
建筑结构
砖混结构
参考造价
80.5万元(室内装修费用另计)
项目概况

△总平面示意图
基地情况:
东:村内道路
西:邻家住宅
南:邻家住宅
北:村内道路
平面布局
户型概况:
3层 / 7室 3厅 6卫 1厨 1洗衣 1堂屋 2衣帽 1书房 1多功能房 1影音室 1露台 1阳台

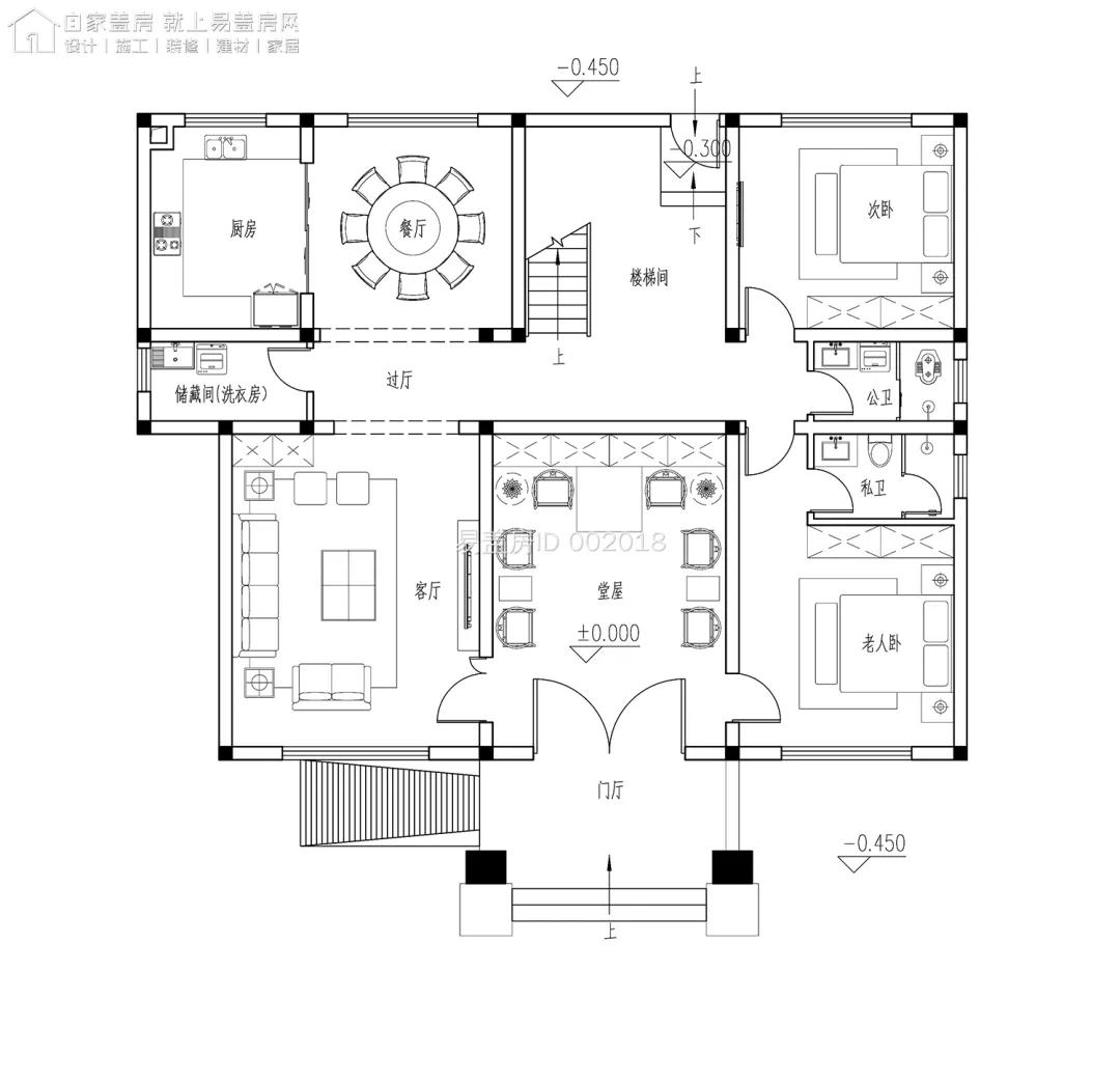
△一层平面图
一层以待客居住功能为主,设计师在西侧预留了较大面积的接待空间,西侧通过中间的过厅隔开待客区域和餐饮区域;东侧的老人卧和客卧,使得各个功能相互统一且互不影响。

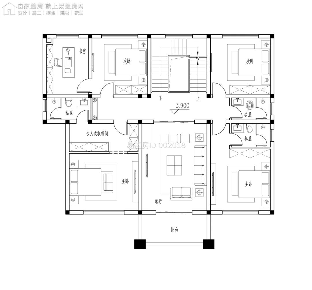
△二层平面图
二层以居住休闲为主,共设置4间卧室,南侧预留了起居室空间,方便提供休闲娱乐的场所,西北角的卧室搭配书房使用,让书房的降噪效果进一步得到提升。

△三层平面图
三层以休闲娱乐为数,搭配一间卧室使用。多功能房及KTV提供了室内娱乐活动空间,超大露台提供了室外娱乐活动空间。
造型设计

△东南侧效果图

△南侧效果图

△东北侧效果图
项目为新中式风格,整体色调自然而淡雅。立面采用浅色真石漆,搭配精简的深蓝色坡屋顶,造型上显得建筑更加大气、稳重。

△鸟瞰图

△西南侧效果图

△东南侧效果图
大面积的开窗及精致的廊柱形成对比,丰富了立面整体的层次。侧面的老虎窗强化了建筑整体的细节,开放式的阳台增加了建筑的体量感。

△西北侧效果图

△庭院效果图

△局部效果图
前庭院预留较大面积的公共空间,在大门的外侧预留了休闲区域。其南侧的二楼阳台在一定程上增加室内外交流,明亮的室内环境和室外良好的观景视野让日常生活也是种享受。

△东立面图

△西立面图

△南立面图

△北立面图