丨来源:北京市西城区人民政府
金隅金林嘉苑是北京金隅地产开发集团有限公司投资,北京隆源房地产开发有限公司开发建设的共有产权住房项目。现该项目面向符合北京市共有产权住房申购条件的西城区户籍无房家庭开放申购登记,登记时间为2019年5月27日10:00至2019年6月10日17:00。
一、项目基本情况
金隅金林嘉苑项目位于房山区阎村镇,苏庄地铁站南1公里,房山超级蜂巢项目东侧,项目四至为:东至凯旋大街,南至良园二路,西至翠柳南街,北至元武屯路。该项目销售均价含全装修费用26000元/平方米。
二、销售对象及房源安排
本次金隅金林嘉苑项目销售对象为:符合北京市共有产权住房申购条件的西城区户籍无房家庭。
房源安排:本次房源共400套,套型主要为约82-88平方米的两居室109套,约82-117平方米三居室的291套(详见附件一)。
三、申购条件
(一)符合以下条件的无房家庭可提出购房申请
1.以家庭为单位进行申请,申请人应具有完全民事行为能力,申请家庭成员包括夫妻双方及未成年子女。单身家庭申请购买的,申请人应当年满30周岁(截止到2019年6月10日)。
2.申请家庭应符合本市住房限购条件且家庭成员在本市均无住房。一个家庭只能购买一套共有产权住房。
(二)有以下情形之一的,不得申请购买共有产权住房
1.申请家庭已签订住房购买合同或征收(*迁拆**)安置房补偿协议的。
2.申请家庭在本市有住房转出记录的。
3.有住房家庭夫妻离异后单独提出申请,申请时点距离婚年限不满三年的。
4.申请家庭有违法建设行为,申请时未将违法建筑物、构筑物或设施等拆除的。
申请家庭承租公共租赁住房、公有住房(含直管和自管公房等)后又购买共有产权住房的,应在购房合同网签前书面承诺腾退所租住房屋。
四、共有份额比例的确定
根据《北京市共有产权住房管理暂行办法》(京建法[2017]16号,以下简称《办法》)的规定,该项目产权份额的确定情况如下:
(一)共有份额比例确定原则
该项目的房屋产权由购房人与政府按份共有,确定原则按照《办法》第十八条、十九条执行,其中政府产权份额由北京市燕房保障性住房建设投资有限公司持有。
(二)共有份额比例评估及确定结果
该项目申购前,北京市房山区住房保障事务中心已经委托房地产评估机构完成对购房人与政府共有份额比例的评估,根据《办法》及评估报告,该项目单套住房的购房人产权份额比例为75%,北京市燕房保障性住房建设投资有限公司(政府产权份额代持机构)持有剩余25%份额。
举例:若购房家庭选择了一套建筑面积为80㎡,销售价格为26000元/㎡的房屋,则该家庭需支付的购房款为80㎡×26000元/㎡=2080000元,该家庭所占该套房屋产权份额比例为75%。
五、资格审核
(一)网上申购结束后,对申请家庭购房资格进行联网审核。审核工作结束后,审核结果将在北京市西城区政府门户网站上发布。对审核结果有异议的家庭,可向西城区住房保障管理部门申请复核,由于个人原因填报信息错误,复核时不予受理。申购家庭应正确填报信息。
经审核,申请家庭信息不符合本项目申购条件或与承诺不符的,不纳入摇号范围。
(二)在选房结束后,正式签约前,将再次组织对选房家庭购房资格进行联网审核。凡不符合要求的家庭,不得签约,取消本次配售项目购买资格。
六、销售监管
(一)为确保共有产权住房销售工作公平、公正、公开,共有产权住房摇号、选房过程由公证机关全程公证。西城区房屋管理局将对销售工作进行全程监管。
(二)申购家庭应在申购阶段如实填写家庭信息,并据实承诺符合本次申购相关条件。选房前提交的纸质材料应与网申家庭信息保持一致。对通过隐瞒家庭住房状况、伪造相关材料等方式,弄虚作假,骗购共有产权住房的家庭,一经查实,严格按照《办法》取消其资格,禁止其十年内再次申请本市各类保障性和政策性住房;由开发企业与其解除合同、并由购房家庭承担相应的违约责任和法律责任。
(三)对有关单位和开发企业工作人员在共有产权住房资格申请、审核、公示、摇号、销售、退出等过程中,玩忽职守、滥用职权、徇私舞弊的,依法追究行政责任;构成犯罪的,移交司法机关依法追究刑事责任。
七、需要说明的问题
(一)金隅金林嘉苑共有产权住房项目、房源、户型及合同等信息由北京隆源房地产开发有限公司提供,仅供参考。
(二)申请人及家庭全体共同申请人名下有集体土地上合法住房又购买共有产权住房的,须承诺如涉及集体土地上房屋*迁拆**,在补偿安置时,不得选取房屋安置补偿方式,或将已购共有产权住房予以腾退后再选取房屋安置补偿方式。
(三)申请家庭应推举一名符合申请条件的家庭成员作为主申请人,并如实填报家庭信息。申请家庭未如实填报家庭信息或错报家庭信息的,导致网上填报信息与实际家庭信息不一致而未审核通过的,不予接受复核,不得参与摇号选房。
(四)本项目于2017年12月取得国有建设用地使用权挂牌出让成交确认书,挂牌出让文件约定本项目为共有产权住房。
(五)本项目适用《关于印发<北京市共有产权住房规划设计宜居建设导则(试行)>的通知》(京建法[2017]20号)相关规定,采用全装修成品交房。
(六)本项目签订三方合同,其中甲方(出卖方)为北京隆源房地产开发有限公司,乙方为购房人,丙方(政府份额代持机构)为北京市燕房保障性住房建设投资有限公司,其中甲负责履行开发建设、销售实施、前期物业、房屋交付、大产权办理、工程保修等工作。丙方代表政府持有共有产权住房政府份额,并按照有关规定和合同约定负责具体管理服务工作。
(七)本项目支持公积金*款贷**、商业*款贷**、组合*款贷**。
(八)购房人取得的房屋产权性质为:“共有产权住房”,房屋再上市等后续管理按照共有产权住房相关规定执行。
项目《北京市共有产权住房预售合同》已在网上公示。(合同链接:https://pan.baidu.com/s/19IqKdHAXNe61TpHZR_QstA,提取码bqml)。
申购地址:http://zjw.beijing.gov.cn/enroll/home.jsp
、17310815360 、17310815120、17310815230 (上午9:00—下午17:00)
监督电话: 66175784(工作日上午9:00-11:30,下午13:30-17:00)
北京市西城区房屋管理局
2019年5月23日
金林嘉苑共有产权住房项目信息公示
项目名称:金林嘉苑
企业名称:北京隆源房地产开发有限公司
项目位置:项目位于房山区阎村镇,苏庄地铁站南1公里,房山超级蜂巢项目东侧,项目四至为:东至凯旋大街,南至良园二路,西至翠柳南街,北至元武屯路。
套 数:400套
户型面积:套型主要为约82-88平方米两居109套,约82-117平方米三居291套
销售均价:含全装修费用26000元/平方米(根据具体楼层、朝向在±5%的范围内调整销售价格)
申购地址:http://zzfws.bjjs.gov.cn
服务热线:(早9:00-晚17:00)
17310815260、17310815360 、17310815120、1731081523
金林嘉苑共有产权住房项目概况
金隅金林嘉苑项目位于房山区阎村镇,苏庄地铁站南1公里,房山超级蜂巢项目东侧,项目四至为:东至凯旋大街,南至良园二路,西至翠柳南街,北至元武屯路。
项目规划地上建筑面积为约15.6万平方米,其*共中**有产权住房地上建筑面积约15.1万平方米,全装修交房,面向西城区配售400套房源,套型主要为约82-88平方米两居109套,约82-117平方米三居291套,销售均价含全装修费用26000元/平方米(根据具体楼层、朝向在±5%的范围内调整销售价格)。
一、交通路网
(一)公交路线:翠柳大街站 993路;良乡机动车检测场站房48路、房27路、房39路、房43路、房49路。
(二)交通路线:京港澳高速(阎村出口)。
二、周边配套
(一)商业:华冠购物中心、国泰良辰百货等。
(二)银行:北京银行、北京农村商业银行、华夏银行、中国农业银行。
(三)医院:北京市房山区良乡医院、北京市房山区妇幼保健院、北京市房山区第一医院分院房山区老年病医院、房山区良乡地区夏庄社区卫生服务站、房山区阎村镇肖庄村社区卫生服务站、北京今康中医医院、北京华亚医院、北京仁德医院、房山区良乡社区卫生服务中心。
(四)娱乐:赛纳园公园、宝源生活广场等。
三、基础数据
金林嘉苑共有产权住房地上建筑面积约15.1万平方米,位于北京房山区阎村镇,共13个楼栋,楼号分别为1号楼、2号楼、3号楼、4号楼、5号楼、6号楼、7号楼、8号楼、9号楼、10号楼、11号楼、12号楼、13号楼。
1号楼共3个单元,建筑层数为地下三层,地上15层,建筑高度为45米,层高均为2.9米,全部为共有产权住房。
2号楼共3个单元,建筑层数为地下三层,地上15层,建筑高度为45米,层高均为2.9米,全部为共有产权住房。
3号楼共2个单元,建筑层数为地下三层,地上15层,建筑高度为45米,层高均为2.9米,全部为共有产权住房。
4号楼共4个单元,建筑层数为地下三层,地上11层,建筑高度为33.4米,层高均为2.9米,全部为共有产权住房。
5号楼共2个单元,建筑层数为地下三层,地上15层,建筑高度为45米,层高均为2.9米,全部为共有产权住房。
6号楼共2个单元,建筑层数为地下三层,地上15层,建筑高度为45米,层高均为2.9米,全部为共有产权住房。
7号楼共2个单元,建筑层数为地下三层,地上15层,建筑高度为45米,层高均为2.9米,全部为共有产权住房。
8号楼共2个单元,建筑层数为地下三层,地上15层,建筑高度为45米,层高均为2.9米,全部为共有产权住房。
9号楼共3个单元,建筑层数为地下三层,地上15层,建筑高度为45米,层高均为2.9米,全部为共有产权住房。
10号楼共2个单元,建筑层数为地下三层,地上15层,建筑高度为45米,层高均为2.9米,全部为共有产权住房。
11号楼共4个单元,建筑层数为地下三层,地上10层,建筑高度为30.5米,层高均为2.9米,全部为共有产权住房。
12号楼共2个单元,建筑层数为地下三层,地上15层,建筑高度为45米,层高均为2.9米,全部为共有产权住房。
13号楼共6个单元,建筑层数为地下三层,地上15层(局部8层),建筑高度为45米,层高均为2.9米,全部为共有产权住房。
梯户比:1号楼、2号楼、3号楼、5号楼、8号楼、9号楼、10号楼、12号楼为2梯4户, 4号楼、11号楼为1梯2户,6号楼、7号楼为2梯3户,13号楼三个单元1梯3户,2个单元2梯4户,1个单元2梯3户。
户型大小:
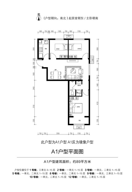
A1户型(三居室):约89平方米,约208户。位于1号楼三单元3-15层,2号楼一单元1-15层,3号楼一单元、二单元1-15层,5号楼一单元、二单元1-15层,8号楼一单元、二单元1-15层,9号楼一单元、三单元1-15层,10号楼一单元、二单元1-15层,12号楼一单元、二单元1-15层。
窗户为塑钢窗,起居室窗洞口宽约1.8米,高约1.7米;卧室1带阳台窗洞口宽约1.7米,高约1.7米;卧室2洞口宽约1.7米,高约1.4米;卧室3洞口宽约1.3米,高约1.4米;厨房窗洞口宽约0.7米,高约1.4米;卫生间无窗。本户型卧室有封闭阳台。
A2户型(三居室):约84平方米,约559户。位于1号楼一单元、二单元、三单元1-15层,2号楼一单元、二单元、三单元1-15层,3号楼一单元、二单元1-15层,5号楼一单元、二单元1-15层,8号楼一单元、二单元1-15层,9号楼一单元、二单元、三单元1-15层,10号楼一单元、二单元1-15层,12号楼一单元、二单元1-15层。
窗户为塑钢窗,起居室窗洞口宽约1.5米,高约1.7米;卧室1洞口宽约1.5米,高约1.7米;卧室2洞口宽约1.1米,高约1.4米;书房带阳台洞口宽约1.4米,高约2.0米;厨房窗洞口宽约0.7米,高约1.4米;卫生间无窗。本户型书房有开敞阳台。
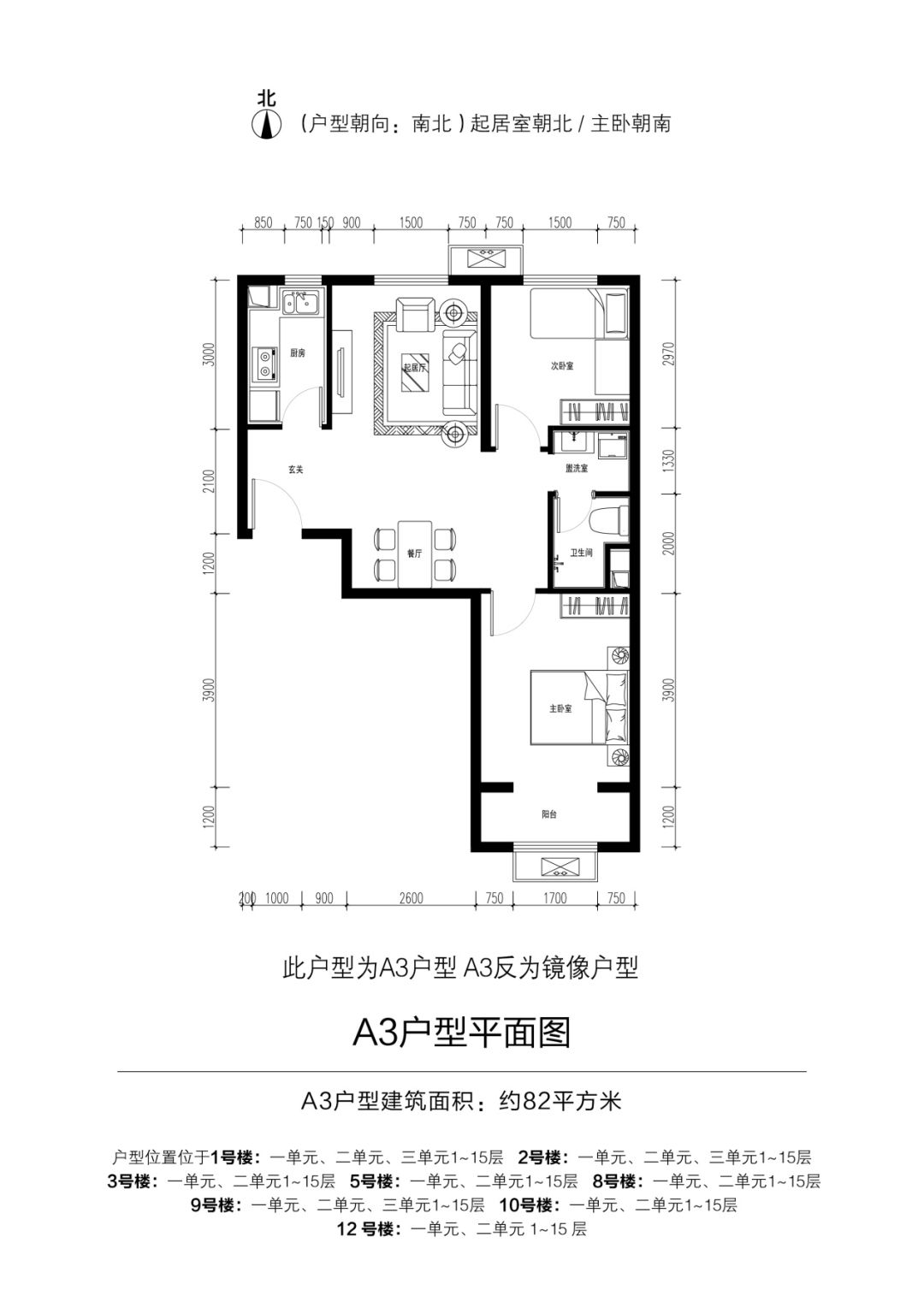
A3户型(两居室):约82平方米,约360户。位于1号楼一单元、二单元、三单元1-15层,2号楼一单元、二单元、三单元1-15层,3号楼一单元、二单元1-15层,5号楼一单元、二单元1-15层,8号楼一单元、二单元1-15层,9号楼一单元、二单元、三单元1-15层,10号楼一单元、二单元1-15层,12号楼一单元、二单元1-15层。
窗户为塑钢窗,起居室窗洞口宽约1.5米,高约1.4米;卧室1带阳台窗洞口宽约1.7米,高约1.7米;卧室2洞口宽约1.5米,高约1.4米;厨房窗洞口宽约0.7米,高约1.4米;卫生间无窗。本户型卧室有封闭阳台。
B1户型(两居室):约89平方米,约45户。位于13号楼五单元、六单元1-15层。
窗户为塑钢窗,起居室洞口宽约1.7米,高约1.4米;卧室带阳台洞口宽约1.5米,高约1.7米;卧室窗洞口宽约1.5米,高约1.4米;厨房窗洞口宽约0.7米,高约1.4米;卫生间无窗。本户型卧室有封闭阳台。
C户型(三居室):约115平方米,168户。位于4号楼一单元、二单元、三单元、四单元1-11层, 11号楼一单元、二单元、三单元、四单元1-10层。
窗户为塑钢窗,起居室带阳台洞口宽约2.4米,高约2.3米;卧室1窗洞口宽约2.1米,高约1.7米;卧室2窗洞口宽约0.75米,高约1.4米;卧室3窗洞口宽约1.4米,高约1.4米;厨房窗洞口宽约0.75米,高约1.4米;卫生间无窗。本户型起居室有封闭阳台。
D户型(三居室):约110平方米,约15户。位于13号楼五单元1-15层。
窗户为塑钢窗,起居室洞口宽约1.8米,高约1.7米;卧室带阳台窗洞口宽约1.5米,高约1.7米;卧室窗洞口宽约1.8米,高约1.7米;书房窗洞口宽约1.2米,高约1.7米;厨房窗洞口宽约0.7米,高约1.4米;卫生间窗洞口宽约0.7米,高约1.4米。本户型卧室有封闭阳台。
E1户型(三居室):约111平方米,约30户,位于13号楼四单元1-15层。
窗户为塑钢窗,起居室洞口宽约1.7米,高约1.4米;卧室窗洞口宽约1.5米,高约1.4米;卧室带阳台洞口宽约1.5米,高约1.7米;卧室窗洞口宽约1.4米,高约1.7米;厨房窗洞口宽约0.7米,高约1.4米;卫生间无窗。本户型卧室有封闭阳台。
E1-改户型(三居室):约116平方米,约120户,位于6号楼一单元、二单元1-15层;7号楼一单元、二单元1-15层。
窗户为塑钢窗,起居室洞口宽约1.7米,高约1.4米;卧室窗洞口宽约1.5米,高约1.4米;卧室带阳台洞口宽约1.5米,高约1.7米;卧室窗洞口宽约1.4米,高约1.7米;厨房窗洞口宽约0.7米,高约1.4米;卫生间无窗。本户型卧室有封闭阳台。
F1户型(三居室):约111平方米,约48户。位于13号楼一单元、二单元 、三单元1-8层。
窗户为塑钢窗,起居室洞口宽约1.7米,高约1.4米;卧室窗洞口宽约1.5米,高约1.4米;卧室带阳台洞口宽约1.5米,高约1.7米;卧室窗洞口宽约1.4米,高约1.7米;厨房窗洞口宽约0.7米,高约1.4米;卫生间无窗。本户型卧室有封闭阳台。
F2户型(两居室):约84平方米,约24户。位于13号楼一单元、二单元、三单元1-8层。
窗户为塑钢窗,起居室带阳台洞口宽约1.5米,高约1.7米;卧室窗洞口宽约1.2米,高约1.7米;卧室洞口宽约1.5米,高约1.7米;厨房窗洞口宽约0.7米,高约1.4米;卫生间无窗。本户型起居室有封闭阳台。
注:以上数据最终以规划部门审批结果为准,如有变更我司将及时公告。
(附:户型图)

公示文件中所述数据最终以规划部门审批结果为准,如有变更我司将及时公告。

☞重磅 !东西城共有产权住房来了~
☞贯彻落实“新版城市总体规划”,加大共有产权住房统筹力度,加快实现住有所居,推动有序疏解
☞落实“房住不炒”定位, 坚定不移发展完善共有产权住房
·我们是北京市住建委新媒体矩阵,您身边的安居顾问·
微信
微博
*今条头日**
