
每个人记忆中都有一段斑驳的时光和熟悉的街道。社区商业街,如同记忆中的那条街一样,每一秒发生的事,都是生活的一段胶片。

正在奋斗的你想在闹市街区拥有一间商铺吗?
你跟我讲哈哪里有这么好的商铺?
你还不晓得么?施南宣府撒!
真的么?那里的商铺好在哪儿吗?
那你就要听我跟你好生摆哈哒!
1 优秀地段区位
优秀的地段,是商铺最大的优势
施南宣府建成以后
将成为宣恩新的城市地标
带来大潜力的区位优势!
同时 其也是了解施南土司优秀历史文化的
最佳去处。

光有优秀地段 是不是还不够?那是当然!
2 知名品牌入驻
UGG国际洗护、途虎养车、潮歌KTV、施南土司茶文化演艺厅、施南土司婚庆主题馆、明珠购物精品(特产)超市、体育馆赛事活动(剧场演出)票务中心、施南土司古城沉浸式游乐票务中心、施南宣府创客中心、汇隆影像馆、第三墙3D错觉体验馆、玖的VR游乐馆、第九街区密室逃脱游乐馆、动漫电玩城、施南宣府主题儿童游乐场(二期项目)、常乐足道、欧若拉酒吧、施南土司主题酒店、施南宣府大中型会议厅、施南土司王府宴会厅等数十家商家全程消费使用。

商家品牌图

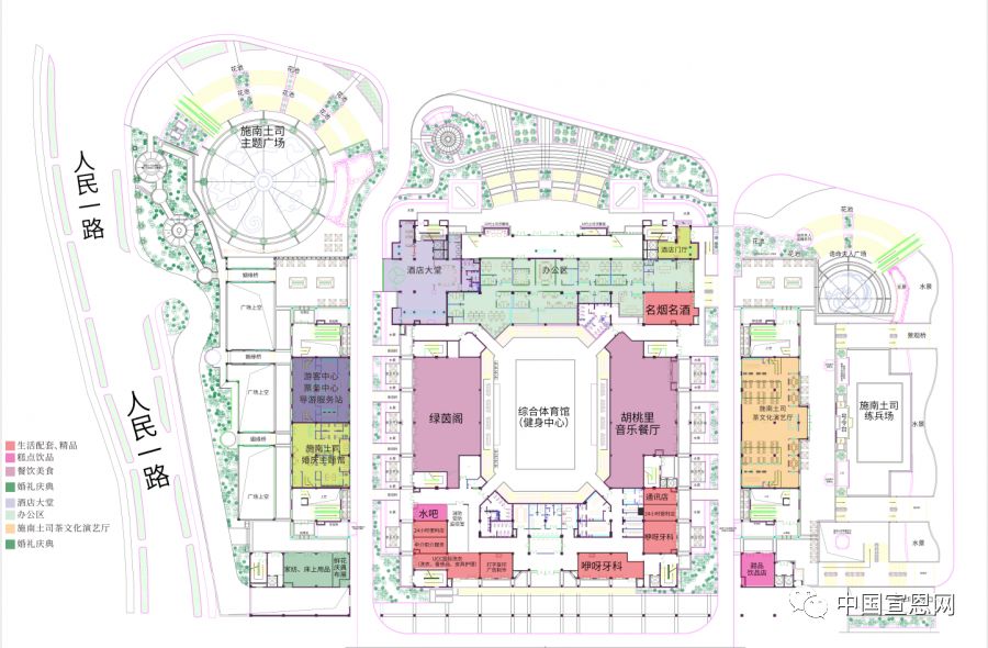
品牌落位初图
如果我有一间商铺
我就可以
一边轻松工作
一边陪孩子一起成长

如果我有一间商铺
我就可以
晋升房东
每月坐等收租

不需要再“如果”,
马上行动就能拥有属于自己的商铺。
施南宣府商铺火热销售中!

宣恩县融媒体中心出品
未经授权不得转载!
编辑:姚玲
审核:孟英豪、唐玲
签发:孟希承

重点推荐:
▼仙山贡水,浪漫宣恩!一条微信让您了解宣恩,请您为宣恩代言!
宣恩县融媒体矩阵

云上宣恩APP
微信公众号
新浪微博

抖音