

在开始设置参数前,我们先介绍一下调速器各个位置代表的意思,以及一些接线端所在位置,如下图:



图上各区数字代表的意思:
- 外壳
- 面板外壳
- 上挡板
- 下挡板
- 励磁及接触器端子(从左往右依次:D1-D2外部励磁供电,D3-D4励磁输出,D5-D6主回路接触器供电端子)
- 控制端子(所有低压控制线接线端子)
- 主板
- 速度反馈插件板
- 通讯接口P1
- 电枢电流,励磁电流,电枢电压设置位置
- 电枢输出A+ A-,主回路供电L1 L2 L3
- P3通讯口
- 辅助电源供电接线端子D7-D8
- 菜单按键,E键退出,M键进入
- 调速器状态指示灯
- 调速器显示LED屏
- 绝缘盖板
- 风扇

通过以上调速器结构介绍,相信大家不会再感到无从下手。
好了,下面我们设置参数,先把调速器的辅助电源接到D7-D8端子,记住电源供电是单相AC110-230V,如果有风扇,请注意:国内的机器都是220V风扇,如果用110V电源请联系我们。

通电后,需要在调速器软件菜单中设置的参数,请按以下步骤操作:
1.励磁控制方式的设定:
....SETUP PARAMETERS(设定参数)
......FIELD CONTROL (励磁控制菜单)
........FIELD ENABLE [170 ] = ENABLED (励磁使能)
........FLD CTRL MODE IS [209 ] = CURRENT CONTROL *(电流控制方式)
........FLD VOLTAGE VARS
..........RATIO OUT/IN [210 ] = 90.0 % (电压输入输出比,此参数设定方法:用电机的额定励磁电压除以励磁供电的进线电压,比如励磁额定电压为180V,励磁供电电压为380V,那么请设定此参数为180/380=47%)

2.速度环参数的设定
....SETUP PARAMETERS(设定参数)
......SPEED LOOP (速度环)
........PROP. GAIN [14 ] = 3.5 (比例增益,默认是10.00,此处改为经验值3.5)
........SPEED FBK SELECT [47 ] = ENCODER (编码器反馈.此选项中还有电压电压反馈,测速发电机反馈方式,具体请根据实际使用的反馈硬件选择,在没有任何反馈硬件时,请选择电枢电压反馈)

3.静止逻辑使能需要打开
....SETUP PARAMETERS(设定参数)
......STANDSTILL (静止逻辑)
........STANDSTILL LOGIC [11 ] = ENABLED (静止逻辑使能,此菜单可以避免调速器在零速状态下抖动)

4.参数保存(修改完参数后,请操作此项)
....PARAMETER SAVE(参数保存),找到此参数后, 按M进入,然后按向上键头,参数自动保存.

好了,以上是软件中必须要设置的一些参数,总结一下,其实就几个参数:励磁的控制方式,速度反馈方式选择,静止逻辑功能打开。

现在有朋友要问了,电机的电枢电压,电枢电流,励磁电流在哪里设置啊?别急请往下看:


IA CAL 电枢电流设置 从左往右,依次是百位,十位,个位
IF CAL 励磁电流设置 从左往右,依次是十位,个位,小数点位
VA CAL 电枢电压设置 从上往下1-4,拨码向左代表0,向右代表1,具体的电枢电压,对照图如下:


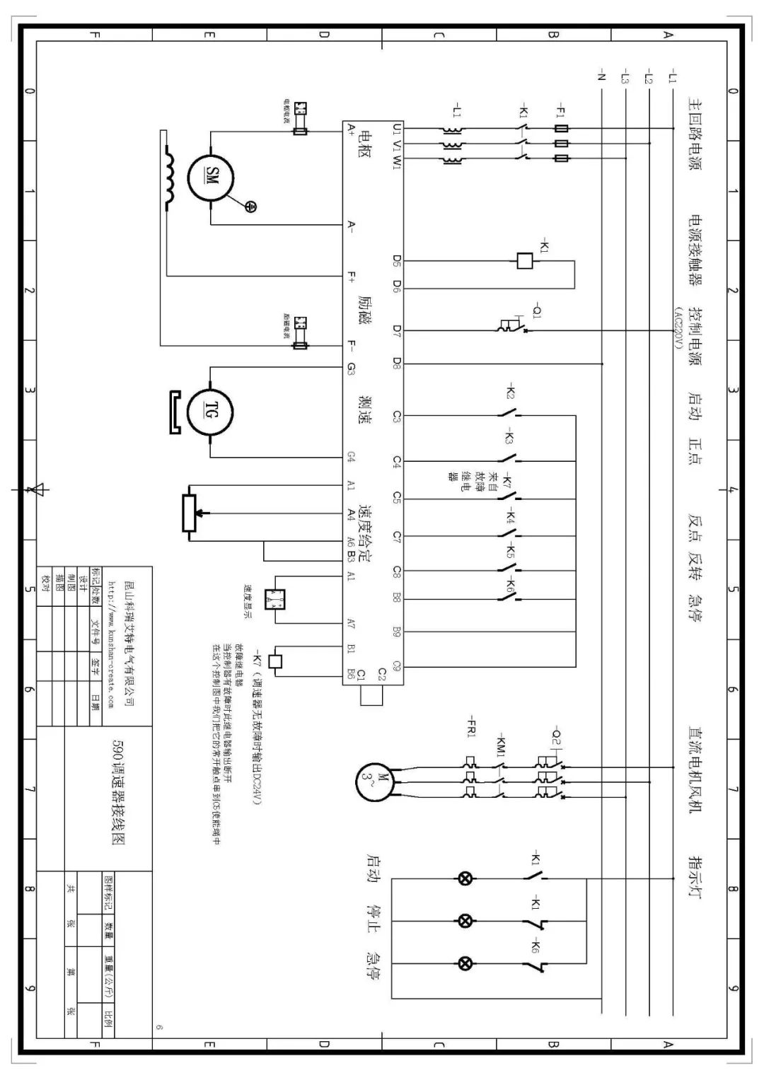
好了,写到这里,基本上就设置好了。下面附上一张接线图。



文章最后,版主有个小建议,在接完线,设置好参数后,请连接电机做一个电流环的自动优化操作,步骤如下:

自动调节(此过程一定不能少)
手动去掉电机的励磁,电机做一次自动调节,夹紧电机的轴(注:如果是旧电机,会有剩磁,在做自动调节的时候电机是不允许旋转的,如果有剩磁,电机会在自动调节的时候转动,这样就会导致自动调节失败!所以请务必夹紧电机的轴。),
然后在电流环中,找到AUTOTUNE菜单,将OFF改为ON,
....SETUP PARAMETERS(设定参数)
......CURRENT LOOP
........AUTOTUNE [18 ] = ON (默认是OFF ,改成ON就会将自动调节功能使能)
然后在10秒内启动调速器,调速器右上角的RUN(运行灯)灯将闪烁,在这个过程中请不要停止调速器,当调速器完成自动调节后,会自动释放接触器线圈.(这个过程一般持续为十几秒,太短的时间说明调速器自动优化不成功.).
