
近年来,互联网消费与“生活方式”概念的火热发展,正助力“她经济”更上一层楼。其中,作为一股强劲势力,以美体护理、医疗美容、高级护肤等业务板块为代表的泛美业所创下的消费者指数逐渐稳步增长。纵观这一趋势背后,除“女性力量”所带来的市场增量外,个性体验、情感需求、社交分享等“体验迭代”现象,已成为席卷市场的新风向。
AEVUM奥斯芬
肌肤·身体·心灵
Skin, Body And Mind
/

抓住风口,乘势而行,在冲击泛美业这片火热赛道的大军中,融合全球顶奢爆品的高端欧系美容院品牌 —— AEVUM奥斯芬,正是行业中的一个佼佼者。AEVUM源于拉丁文“美好生活”,秉持“成就身心美”的品牌精神,其致力于以高奢一线院线产品与体验馆的融合,赋予顾客极致服务。创立至今,其先后成立欧系贵族美容SPA、医美抗衰中心、ORiNERGiE法系芳疗精油、法系芳疗学院等,备受一众高净值客群青睐。
场景互动,浸润情感
「新美力」设计,服务优雅人生
Scene Interaction And Emotion Infiltration
/

立足纯欧系贵族的品牌定位,AEVUM奥斯芬深圳KK ONE店如何通过设计打动消费者?数度默契合作,MOSOM墨森设计与AEVUM奥斯芬对此持有深度的共识 —— 空间即品牌,场景及营销。“这一逻辑之下,我们希望以「新美力」设计,实现优雅氛围的创设、情感温度的穿透、沉浸式场景的互动体验,从而在消费者与品牌的密切联结间,促进实际商业价值的转化。”



门店外立面设计,构建着消费者对品牌的第一印象。以自然永恒的优雅张力为内核,设计选择以雅黑铝板与亮白大理石为主材质,构筑简约高雅的空间调性。当消费者踏入于此,便可感知到AEVUM奥斯芬品牌的国际化与专业性,进而达到不销而销的潜在效果。

不拘泥于风格,设计师对内部氛围的营造,在于让空间成为品牌调性的最佳载体,令顾客沉浸式地体验蕴含于其中的身份品味、品牌辨识度与产品品质。其中,柔和的暖调灯光、简白、雅灰、咖棕的设色组合,以及花纹大理石、金属的材质质感,将雅奢的精致感注入于每一隅角落,时刻熏陶着人的认知与体验。


循SPA电梯间走过,从墙面的纹路肌理感,至印刻在金属底板的品牌理念;从展陈于墙面橱窗内的产品,到翩翩起舞女性舞蹈者装置,精于细节的氛围营造,将人包裹在尊贵的仪式感中,触及优雅内核,更唤起身份共鸣。

相较于单一明亮的空间观感,点状投射光源、墙底线性灯带的营造,以多层次、立体化的营造,塑造出有趣光影效果,在营造温馨的场域环境之外,丰富着消费者的感官体验。

舒惬、私密、放松是设计师赋予VIP室的关键词。在这里,墙面的艺术画作、柔软的床品布设、隐形光源的烘托,不仅描摹着优雅陶然的情境体验,更令每一位消费者在别具一格的场域调性中,尽然舒展情绪、漫享身心放松。

新消费时代下,新理念、新需求刺激下的“体验迭代”,来自于品牌价值提升、差异化场景、个性化体验等方方面面。不止于审美的表层,在AEVUM奥斯芬深圳KK ONE店中,MOSOM墨森设计以品牌、情感、场域氛围等多维“美力”,锚定于商业势能的建立。最终,在经典永恒、抵达优雅的空间中,一段静谧沉浸的身心之旅由此展开,进而实现着品牌影响力的可持续。




效果图(左右滑动查看)

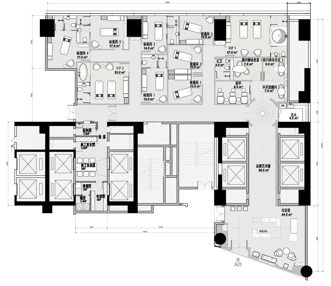
平面图
• PROJECT INFORMATION
项目名称:AEVUM·深圳KKONE店
项目地址:中国·深圳
项目面积:400㎡
设计单位:MOSOM墨森设计
设计总监:金柊辰
设计团队:郭仕豪,王军,秀婷


MOSOM墨森设计由知名设计师⾦柊⾠创立于深圳,立足国际视野,专注研究“新美力”,致力于美业会所、豪宅与办公的专业化设计,为客户提供美业商业顾问、空间设计、灯光设计、软装设计等一体化解决方案。
Founded in Shenzhen by the famous designer Mr. Zhongchen Jin with a global outlook, MOSOM DESIGN specializes in researching “new aesthetic power”. Engaged in the professional design of beauty clubs,luxury housing and offices, it strives to provide clients with integrated solutions like business consultant in beauty industry, space design, lighting design and soft decoration design.
多年来,基于对泛美业的全方位深入洞察、研究与实践,MOSOM墨森设计提出“多元趋变,优雅永恒”的核心理念,发挥“空间即品牌,场景即营销”的前端策略思维,聚焦商业的高频认知与高效变现,为设计之外的附加值而不断创造。在设计中,我们横向考量客户的投入成本与回报周期,纵深剖析建筑结构、材质美学、业态逻辑、商业坪效、品牌运营等因素,将空间从严密的整体拆解为有机的个体,整合上下游资源并有效缩短从概念设计到商业落地之间的节点,促进回报效率与商业产值的最大化,最终呈现出功能、美学与情感价值统一的复合态空间精品 —— 风格多元、气质优雅。
Over the years, based on the all-round in-depth insight, research and practice of pan-beauty industry, MOSOM DESIGN has put forward the core concept of “diversified change, elegance until eternity”, and given play to the front-end strategy thinking of “space is brand, scene is marketing” with a focus on the high-frequency cognition and efficient realization of business. With these efforts, the value-added beyond design is constantly being created. In the design, we consider the input cost and return cycle of clients horizontally, while analyzing architectural structure, material aesthetics, business logic, commercial economic benefits and brand operation vertically. Efforts have been made to turn a strict whole into organic units, integrate upstream and downstream resources and effectively shorten the nod from conceptual design to commercial landing. This is how we maximize return efficiency and business output value, finally presenting a quality complex space that combine function, aesthetics and emotional value -- with diversified styles and elegant demeanor.


琉璃皝宫


AEVUM SPA 深圳万象食家店

AEVUM SPA 深圳小径湾店


JOYCE BY AEVUM 深圳卓悦中心店

LES IDEES