罗文琦 赵宪良
中交天航南方交通建设有限公司
摘 要: 文章以某公路工程南北高速公路工程项目为例,基于对盖板涵结构连续施工技术的研究,通过分离式基础与支撑梁一体浇注、先形成涵洞内地坪,设计移动支架实现台身、台帽连续浇注等措施,有效解决了相关技术、安全问题,提高了施工质量,形成连续施工、加快了施工进度。
关键词: 盖板涵;分离式;连续施工;
某公路工程南北高速公路盖板涵施工数量多、场地分散,受不同结构部位砼标号不同、标高不一、钢筋不连续影响,施工层面若依次划分,不同结构部位间施工将间断、增加施工间歇,受交叉作业的影响会增加安全隐患,另外由于战线长会导致材料周转不便、增加材料占用、停滞时间,增加工期。为此,需采取必要的技术措施解决相关的施工问题,达到快速施工、提高质量、安全、高效的目的。
1 工程概况
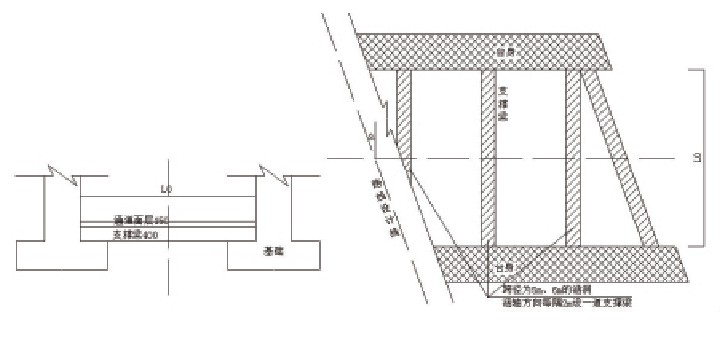
某公路工程南北高速公路工程项目全长约65km,用于实现位于某公路工程南部的首都金斯敦与北部旅游重镇奥乔里奥斯之间的高速连通,通车两地间用时从2h缩短至50min。项目主线翻山越岭,施工路线地形起伏较大,局部陡峭,施工难度大。为满足道路修筑后地方交通、泄洪要求,需沿线设置数道盖板涵、箱涵、圆管涵等。Ⅲ标段为20.44km路基施工,设计路基构筑物:圆管涵31道、箱涵4道、盖板涵9道、跨线桥梁1座、天桥4座,设计速度80km/h、设计寿命75年。其中盖板涵设计跨径5m、6m、6.7m,分整体式、分离式基础,具体如图1~图3所示。

图1 一般构造图/cm *载下**原图

图2 台身钢筋布置图/cm *载下**原图

图3 支撑梁布置图/cm *载下**原图
2 结构特点
(1)各项指标不统一:分离式盖板涵:基础砼标号为C20,台身与支撑梁砼标号为C25;支撑梁与涵台基础标高相互错开;所有盖板涵台帽钢筋与台身钢筋上下分开,无法完成一次性绑扎、一次性浇注。
(2)涵洞结构段数多:为方便现场组织流水施工,涵洞结构分数道结构段。
(3)构件构造相对独立,便于组织预制、预制作,可以提前施工,制作精度高、质量好。
3 施工方案
3.1 方案的整体思路
针对该项目工程分离式盖板涵的结构特点,研究台身砼与台帽砼连续浇注的工艺,制定出可行的缩短或减少工序、提高现场施工效率及改善混凝土浇筑质量的施工方案。利用盖板涵结构段相似的特性,研究流水施工的工艺,参照滑模工艺,分析设计滑移支架法施工。
3.2 思路的细化
(1)分离式盖板涵基础与支撑梁、台身一层砼(超过支撑梁顶面20cm)一次性浇注,拆模后进行支撑梁间回填、压实,铺设涵洞内砼面层,形成施工地坪。
(2)在分离式基础的现浇涵洞地坪的基面、整体式基础的基面上搭设支架、架立模板。
(3)将支架加固成整体连固支架,形成移动支架法流水施工。
(4)台帽钢筋事先绑扎成一体,浇注台身二层砼时,安放整体台帽钢筋,形成连续施工。
支架顶部放置台帽内侧“L”形模板与支架一起滑移,当每段台身混凝土浇注至台帽“”形钢筋底部时,放置横向支撑钢筋,吊放“”形台帽钢筋,随后安装内侧“L”形模板,浇注台帽混凝土,中间不用停顿,不用进行凿毛处理。
前一段台身、台帽混凝土浇注完成后,待混凝土初凝后即可解除滑动支架与台身、台帽模板间的连固,滑移支架到下一结构段,进行相关的钢筋调整与模板支立准备工作,节省工期。具体如图4所示。

图4 分层浇注图/cm *载下**原图
4 支架设计
(1)架体组成:用Ф48-3钢管搭设,设置立杆、纵横向连接杆、扫地和斜撑杆,管与管之间通过水平、转向和十字扣件连接。
(2)安装步骤:由底部扫地杆开始、立杆、纵横向连接杆、斜向剪刀撑杆、最后放置活动的水平撑杆。
(3)施工安排:由涵身较高一端作为首段进行搭设、连固成一体,底部设置架体顶升板。滑移前用千斤顶顶升后,立杆放入滑动轮上的承接管,通过倒链拖拉支架移动到下一结构段,之后再顶升支架、去除滑动轮,支架放置在通道混凝土面上。
(4)模板加固:通过架体上放置的活动撑管,台身模板支立后,用活动撑管连固支架与台身模板,加固台身模板。台身模板的拆除采用吊机整片移除、移运至下一段安装,模板与支架按各自单独的系统进行移动、安装,具体如图5~图8所示。

图5 支架搭设图 *载下**原图

图6 支架移动示意图 *载下**原图

图7 简易支架示意图 *载下**原图

图8 移动支架示意图 *载下**原图
(5)台帽施工:滑动支架的顶部铺设脚手板形成工作平台,预放置组装好的台帽内侧模板,待台身混凝土浇注至台帽钢筋底部时,吊放台帽钢筋、支立内侧模板、进行台帽混凝土浇注,形成连续施工。
5 工程应用
滑移支架法在该公路工程南北高速公路项目Ⅲ标段9道盖板涵施工中实际应用。投入滑动支架2套用于2道盖板涵同时施工,投入倒链4套,台身支架、模板班组共10人,各盖板涵间流水施工,施工流畅,较好地解决了该地区施工人员、材料、工具不足的问题。
采用滑移支架法后,每道盖板涵至少节省1段涵洞长度的钢管支架投入(传统工艺需搭设2~3段涵洞支架);同时节省支架拆除、搭设工程量,较每段均搭设支架的传统工艺节省工程量为:每道盖板涵总段数扣除首段外的其余段数(若段数为n,即n-1)的搭设与拆除工程量。
台身混凝土浇注分2次进行,减少了工序、工艺间歇、节省工期:第1次混凝土浇注(见图4)较传统工艺(基础、支撑梁、通道面层分开浇注)节省工期约15d;第3次混凝土浇注(见图4)较传统工艺(台帽、台身混凝土分开浇注)节省工期为3d/段,每道盖板涵平均节省15d;综合结果:每道盖板涵节省工期约30d;且台帽、台身连续浇注,减少凿毛工序,节约了成本。
6 注意事项
第1次混凝土浇注(见图4)需完成基础、支撑梁、部分台身混凝土,基础基槽开挖时需注意与支撑梁及通道面层下部衔接部位的超挖问题;同时需注意各衔接部位模板的加工、支立与加固,通过钢管架立可以解决问题,但需注意细部的连接与悬空模板的加固;浇注时各部位的混凝土标号不同时,遵循先低标高后高标高的原则,适时加设临时挡板,采取后续及时抽除的方式进行,确保施工质量。
支架需经过设计验算,确保有足够的强度、刚度、稳定性,搭设前需进行详细的搭设、滑移、使用注意事项的技术、安全交底;搭设过程中注意检查支架连接质量、立杆垂直度、扫地杆及剪刀撑杆的设置、扣件的使用规范是否正确;支架顶升、滑移过程中,其他人员撤至安全区域,设专人指挥,明确指挥信息、信号,发现异常情况时及时停止,检查问题排查隐患并采取可靠的解决措施后再进行后续施工,支架滑移到位后及时撤除滑动轮,使支架放置于通道混凝土面上,去除支架滑移隐患。
支架两侧台身混凝土同时浇注时要同时对称分层均匀浇注,控制两侧混凝土面高差≤50cm;先进行一侧浇注一层再浇注另一侧的一层混凝土时,控制分层厚度应≤50cm。
第3次混凝土浇注时(见图4),注意控制台身混凝土浇注标高:采用穿入横向支撑后放置台帽钢筋时,混凝土面要稍低于台帽底部钢筋的设计标高,便于穿入横向支撑、吊放安装事先绑扎完成的台帽钢筋笼;采用吊放台帽钢筋笼后,通过模板顶部的拉结件或钢管悬挂台帽钢筋笼时,混凝土面要稍高于台帽底部钢筋的设计标高,以免台帽混凝土振捣时,台帽钢筋笼下沉;台帽内侧模板支立时,架设测量仪器,控制台帽的设计控制点、标高、尺寸等符合要求。
7 结语
(1)通过改变盖板涵的传统施工工序,优化盖板涵施工工艺,提高施工效率,取得缩短工期、节省投入、节约成本、改进质量的效果。
(2)通过滑动支架法,减少重复、繁琐的支架搭设、拆除施工,对于相似结构的涵洞,能够起到事半功倍的效果。
(3)台帽与台身一起浇注相较传统的分开浇注工艺,能够提高结构稳定性,不出现质量通病,浇筑后混凝土表观质量更好。
(4)滑移支架法较传统施工方法和滑模法更易操作、更简便,工人更容易掌握施工要点,不需要特殊训练或专业设备,可以加快施工进度、可靠度高。
(5)工艺的改进是建立在对原有工艺加深理解的基础上,对盖板涵施工具有一定的指导与借鉴意义,尤其适用于涵洞数量多(或涵洞较长),且模板、支架、扣件等周转材料紧张、施工战线长(周转距离长)、施工工期紧张的情况下,采用滑架法施工效益、进度、质量等方面的效果更明显。
参考文献
[1] 张帅.高速公路钢筋混凝土盖板涵施工要点.山西建筑,2019(07):167-168+219.
[2] 韩俊.刍议公路涵洞施工技术.科技创新与应用,2017(32):50+52.
[3] 刘俊才,付军军.浅谈盖板涵施工技术.技术与市场,2012(05):229.
[4] 蓝建朋,郭盛兴.浅谈公路盖板涵施工技术控制要点及注意事项分析.中国新技术新产品,2012(07):97-98.
[5] 宋佳佳,简婷婷,孙峰.盖板涵施工工艺.技术与市场,2013(02):22-23.
[6] 张宏超.公路涵洞施工质量控制要点.黑龙江交通科技,2011(07):219.
[7] 于宝胜,章志锐.浅谈滑模法在涵洞边墙混凝土施工中的应用.交通科技,2006(05):29-30+33.

声明: 我们尊重原创,也注重分享。有部分内容来自互联网,版权归原作者所有,仅供学习参考之用,禁止用于商业用途,如无意中侵犯了哪个媒体、公司、企业或个人等的知识产权,请联系删除(VX:glyhjs),另本头条号推送内容仅代表作者观点,与头条号运营方无关,内容真伪请读者自行鉴别,本头条号不承担任何责任。