1、关于口腔医院装修要点:
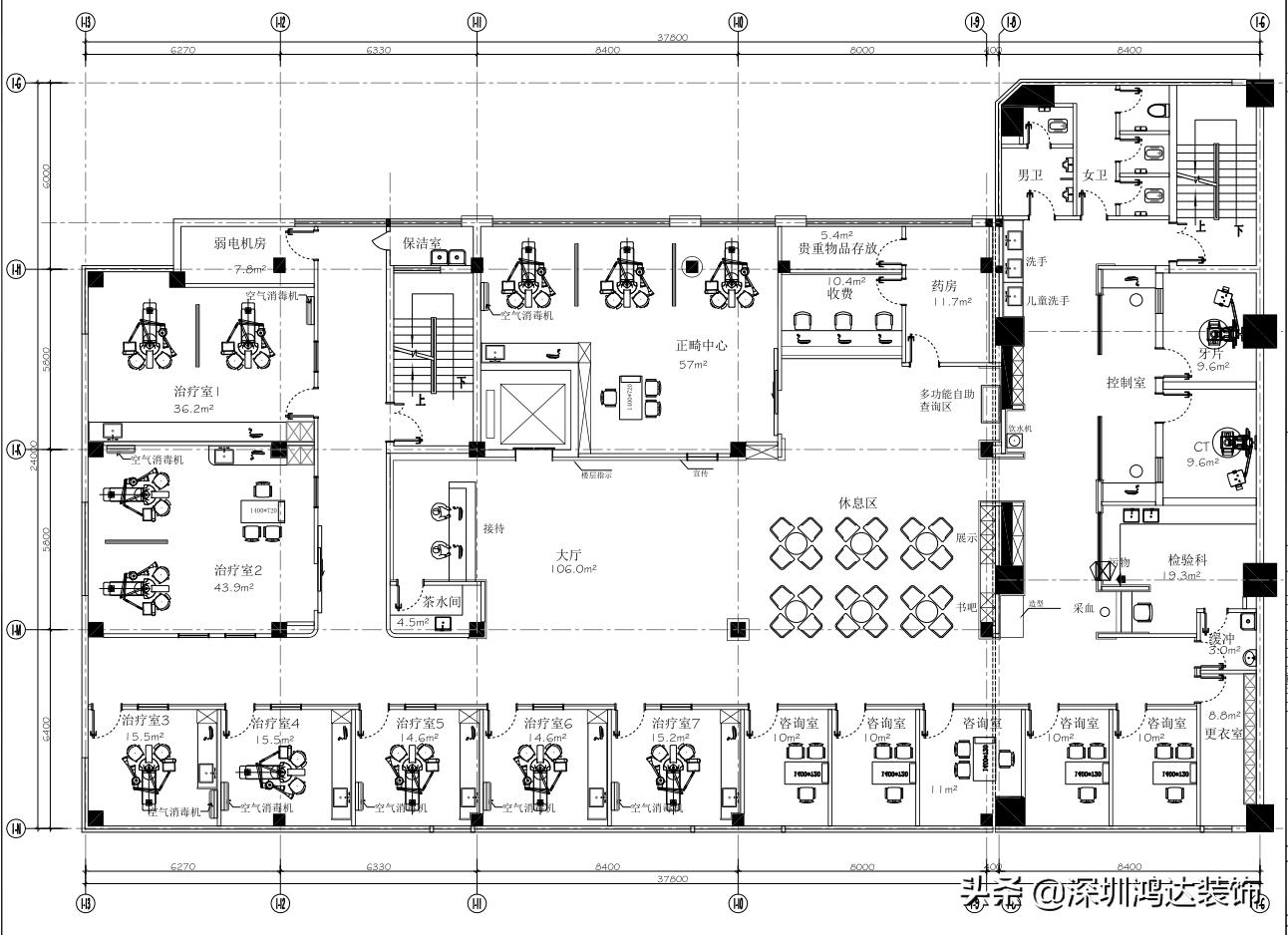
京韩口腔医院总共三层,总面积1800平方左右,虽然面积不大,但可以用"麻雀虽小,五脏俱全"来形容,牙椅、化验室、消毒室、正畸、手术室、CT室等等都对各班组质量、尺寸精细有着高要求。


首先牙椅病床对水电各管路的区分及汇总,水管高度,及后期考虑牙椅病床的操作空间都是要考虑进去的,牙椅病床光管道就有电源线、气管、负压管、纯净水管、排污管、信号线管,所有的线路管道都要汇总到机房所以对各管道的区分和测压在施工期间就要不断的检查测试。


CT室必须符合放射线防护标准,墙面必须用硫酸钡和水泥批到3公分厚度,观察窗玻璃要安装铅玻璃高度在1米左右便于观察。各区域的水电线路必须严格按照图纸要求来做。饰面板墙面转角应该呈圆弧形,防止人员碰伤。残卫需安装扶手。
2、医院因后期出现维修问题而在前期装修应注意的要点汇总:
洗手台下排污管漏掉没有用堵漏王堵好,水龙头漏水直接向下楼层天花滴水,造成天花区域部分重新返工,铺设好下水管后要逐一检查是否都用堵漏王堵好。
前期甲方交于我们的物品保护不当,甲方前期把购买的洁具交给我们后期安装,安装时才发现是坏的,师傅搬运材料时要时刻检查,放仓库里的材料要分类划分好,不要全部放在一堆,后面找也被翻来翻去的损坏。


楼梯处一直出现渗水问题,后发现是因为洗手盆下入墙角阀没有装好漏水,角阀装好后要多巡查多检查,防止出现漏水。成品损坏一直是每个工地都会出现的问题,像京韩工地前台大理石做好后虽然用保护膜保护起来,但是还是有人自然的把东西放在上面,台面没有做晶面,很容易粘上难看的污渍,不止要做好保护,也要放好醒目提示标语提醒不知道的人。


3、牙科医院设计风格感悟:
一楼进大门的弧形装饰灯带配上橘黄色灯光让人感觉高端大气的同时浅灰色的地砖又会让人感觉到稳重及温馨,墙面配上黑色的装饰柜黑白搭配突出现代简约风格,简约又不等于简单,黑色与浅色布艺家具让人倍感时尚,浅黄色墙面饰面板给人温馨舒适的感觉,过道不多的洁白墙面让人感觉干净利落,没有以往医院给人冷冰冰的感觉。


4、远程装修中采购应注意的事项:
因为地区差异,各种同样的材料和配件与广东地区价格相差比较大,多在群里汇报,与公司同事询问,要是价格差异较大,急需的材料多方面对比价格采购,不急要的材料多方因素考虑可以让公司采购部及时采购。及时与财务跟进报回急需付的材料款。


5、远程装修的管理要点:
多跟领导汇报。不会的、有疑问的、有问题的、自己解决不了的及时在群里汇报。汇报没有回应的及时打电话沟通。不能自己想怎么做就怎么做。有问题多跟领导沟通,因为自己的很多经验不足,需要多向有经验的人沟通,讨教。多问、多想、多听、多悟、多记录、多沟通、多跟进。

日期:2019年5月6日
张志勇、曾国强