
“现代风格”
案例预告
本套案例为现代简约风,设计布置摈弃了中规中矩的思路,整个空间设计实用简洁而大方,注重装修的自由化和人性化,以满足家人居住为基础,设计得宽敞舒适而惬意。
案例信息

# 设计解析 #

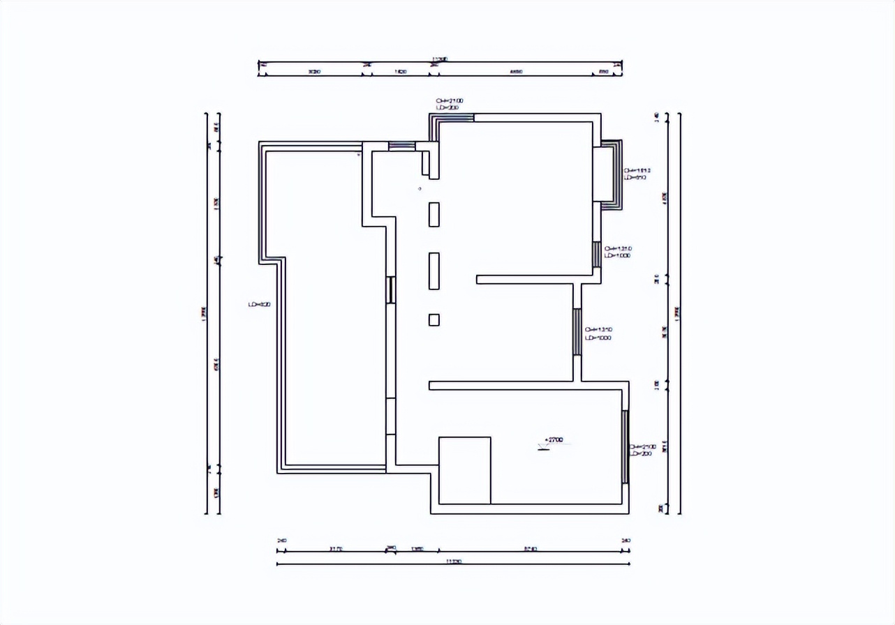
☝原始图

☝改造后

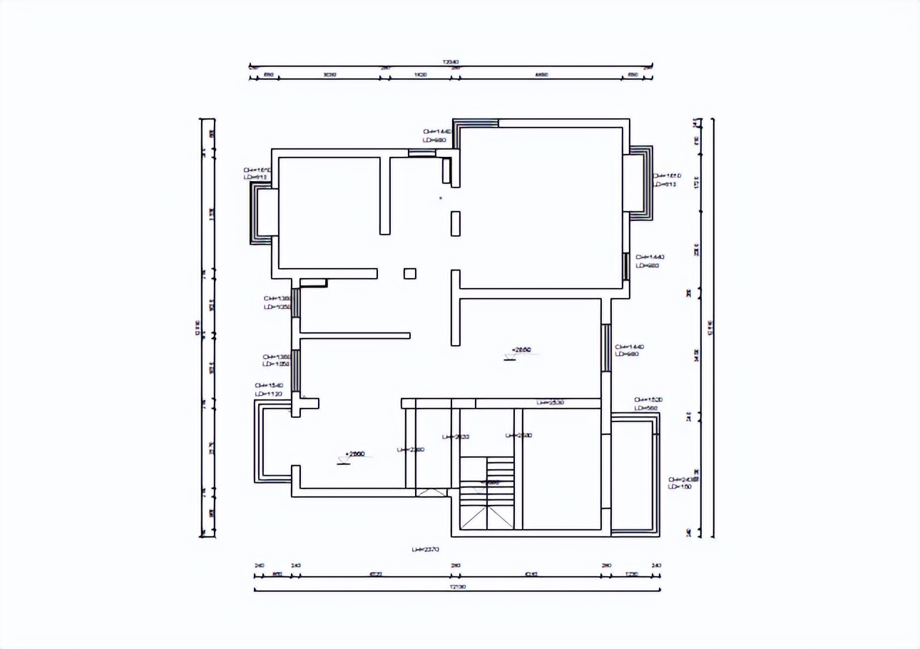
☝原始图

☝改造后
设计亮点
▼
1、客厅和餐厨房呈一体化的开放性空间,舍弃传统的电视设计,为空间增添更多可能性。
2、利用承重墙。在靠近厨房处设计了一个岛台。
玄关| Porch
玄关进门旁装了一个鞋柜 ,鞋柜造型独特一, 加入空层与暗藏灯带 ,带来一种明亮优雅而简洁大方的回家仪式感。

客厅| Saloon
现代大方的空间,天花上无主灯的设计,墙顶藏入灯带设计 ,搭配大理石纹茶几,整个客厅显得宽敞大方而舒适惬意。


沙发墙两侧木饰面+中间装饰画的搭配,给色系简单的客厅空间带来艺术韵律。


客厅和餐厨房呈一体化的开放性空间, 舍弃传统的电视设计,为空间增添更多可能性 ,提升空间的视觉层次。
转角楼梯旁边的小空间,利用起来布置了桌椅,家庭聚会时可休闲娱乐、可满足多人就餐~

餐厅| Dining
大理石餐桌搭配简约现代餐椅, 白色创意复古卓柱+简洁吊顶 ,无不营造出一种悠然自得的生活情调。

侧面 定制黑色餐边柜,玻璃+灯带的组合,使视觉上的纯净感达到极致 ,开放格与储物柜相结合,满足不同收纳需求。

厨房| Kitchen
厨房空间延续客厅黑白灰的主色调,灰色柜体,黑色线条以及大理石饰面来搭配, 采用L型结构,最大化利用空间增添收纳。


嵌入式厨具电器 ,也让厨房空间有着更加方便实用的操作体验。
设计师 利用承重墙。在靠近厨房处设计了一个岛台 ,深灰色定制柜搭配白色系餐椅经典又现代,高级感满满。

卫生间| toilet
卫生间以花灰色的墙面与地面砖设计,通过隔断墙做到干湿分离,半圆+灯带的设计,让洗漱区增添一抹亮丽活泼。


玻璃三联动门隔开淋浴区,另外配备智能马桶,提供了方便实用的卫浴空间。
多功能厅| function
上到二楼,是一个小的休闲厅,配备了电脑、电视、沙发,可同时满足家人的多种需求,增添家人之间的互动频率。


FUNCTION
卧室| bedroom
主卧舒适的灰白比例,皮质软包床头搭配咖棕色床品,与胡桃木色装饰画相呼应。黑色工艺吊灯,勾勒出大气有品位的居住空间。



墙顶灯线造型赋予了整体空间更艺术的氛围,床脚细节处加以一圈灯线呼应 ,两侧布置精致的床头吊灯,也让卧室空间显得格外的现代舒适而高端自然。
衣帽间以木质柜为基础,一侧设计开放式衣格,悬挂常用+次净衣,另一侧做半透明玻璃衣柜,方便拿取衣物,整体空间宁静雅致。显得简洁大气。


猫房| catroom
屋主家里有养猫,一直希望能有件独立的猫房让宠物能够自由活动,为此将多出的 空间利用起来改造起来,放置了猫爬架、电动猫砂盆、喂食器,家里的喵星人也有了自己的活动空间。

设计小妙招
1、去客厅设计不要盲目的模仿,如果家里经常有老人,那么可以保持客厅电视机的传统格局。
2、设计的时候,需要注意到屋主平时的生活行走动线,规划更合理,日常生活更便利。