来源:微信公众号(建筑领域学习交流)
随着高层建筑的普及,传统悬挑式钢管扣件脚手架得到了广泛的应用。但其存在的缺点也越来越受到诟病。如按楼面放置的长度与悬挑的长度比1.25:1计算,不仅不经济,而且给后续的施工带来诸多不便。
由昆山程力五金制品有限公司创造的新型花篮拉杆组合式悬挑架,是脚手架行业的一大创举,它很好的弥补了传统悬挑脚手架的不足,从进入市场开始就受到很多公司青睐,正迅速得到推广。
新型挑架构造图

如图,一根工字钢仅需要两根直径25mm的套管预埋在墙或梁里,再通过两根M24,8.8级高强螺栓及螺帽、垫片即可固定工字钢。标准工字钢长度仅有1.3米,安装上带来极大的便捷。同理,拉杆也以同样的方式连接固定在上层结构墙或梁上,组成一个承重体系。整一套除预埋套管不可回收外,其他全部可回收利用,无需任何切割剃凿,且拆装方便。
工艺流程:
先根据图纸画好挑架平面布置图,得出各个规格、尺寸、数量及算出拉杆的长度,便可生产下料。

绘制的挑架平面布置图
下好料后就可根据图纸标注的尺寸位置进行现场套管预埋及后续安装。
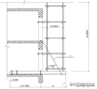
传统挑架构造图

上图可看出,工字钢的长度普遍较长,非常的不经济,尤其是角部,让室内看起来非常的杂乱和不舒适。而预埋在板内的固定件在拆除后全部得割除,非常不经济。最让人痛恨的是那横穿楼梯的“拦路虎”,冷不防就会给你来个“当头一棒”,让你欲哭无泪。如下图。

然而,最大的问题是它给施工带来的不便。工字钢环楼一圈,就需要外围一圈的一结构及二结构墙体上预留孔洞以便日后拆除。这不仅给施工带来不便,也使得日后需花更多的时间去修补,费时、费力、费钱。若修补不到位,就会造成墙体渗水的后遗症。而斜拉钢丝绳因为两头固定端均需三个马蹄扣固定,拆装十分不便,往往一割了之,非常的浪费。

看到这里,有人会说爬架相比更加经济。说的是没错,但爬架适合的较多的建筑类型仍为平立面简洁、采用玻璃幕墙的写字楼,对于凹凸有致的住宅楼,就无法大显身手了。
所以,悬挑脚手架还是大有用武之地。通过对比,我们也认清了新型花篮拉杆组合式悬挑架的优势所在,它就是在这些诟病基础上的创新,完全克服了上述的缺点,带来极大的便捷和经济,且安全性依然得到保证。难怪乎,越来越受到行业的追捧和信赖。
因为经济,所以亲睐
因为实用,所以推广
新型花篮拉杆组合式悬挑架的经济性、实用性、美观性是无可厚非的,必将被越来越多的单位使用和推广,传统挑架终将慢慢被取而代之。

更多详情及细节安装方面
请添加微信号:li676288
