自2011年济南西站投入使用以来,经过十年的发展,以西客站为核心的片区功能规划已经成型,依托于西客站这样的大型交通枢纽,不少开发商也开启十年抢滩进程。
如今的西客站核心片区内地块规划已经落幕,在片区内的住宅项目也不多了,除了部分开发商开发的项目还有存货以外,搭载西客站品牌房企标签的项目也就只有金科城、保利熙悦、中建锦绣首府和杨柳春风几个项目了。

与济南东部楼市激烈的竞争相比,西客站片区基本开发完毕,价格也相对平稳。尤其是随着 宜家、迪卡侬、麦德龙、印象济南、会展中心等先后投入运营,片区 内 商业 匮乏的 窘态 也得以缓解 , 这里也从纯粹的刚需进阶到了部分改善产品的面世。
除了之前介绍的中建锦绣首府和杨柳春风以外,在经十路北侧的金科城和保利熙悦成为高层住宅的最后代表。
01

金科城
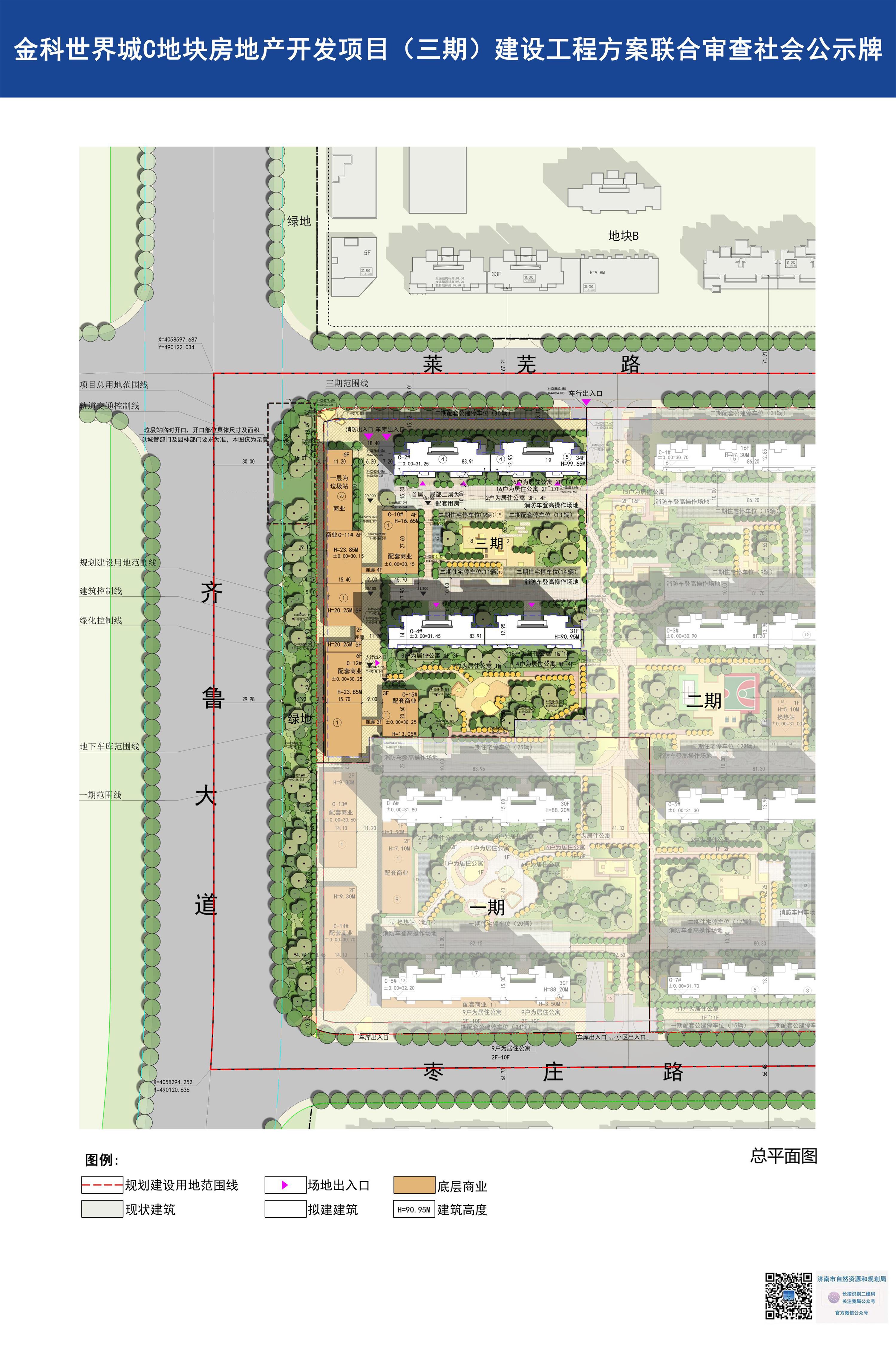
金科城是金科在济南的第一个项目。 2012 年 11 月 30 日,金科以 18.6 亿摘取西客站片区 6 宗编号为 2012-G105--2012-G110 的组团地块,从北到南分别为 A 、 B 、 C 、 D 、 E 、 F 。

(沙盘图)
资料显示,2012-G105、2012-G110地块是商业商务用地,总占地面积约4.8万平米 ; 其他4宗为居住用地,容积率均不大于3.6,总占地面积约22万平米 , 楼面价在1446元/㎡-1543元/㎡中间 。
(注:表中容积率为地上+地下)
拿地近9年后,金科的C地块 三 期因为钉子户问题 于今年 9月26日 才公示了规划。 C地块的2#为34层大高层,4#为31层大高层。同时,在住宅楼西侧的10#、11#、12#和15#楼的商业也公示了规划。在地块的西北角6层商业楼栋上一层为垃圾站,该商业楼栋紧邻2#住宅楼栋。

从规划来看,在售的C地块共有8栋住宅楼,分为三期开发,除了二期最北侧的1#楼为16+17层的小高层以外,其余7栋楼均为30-34层的大高层,整个C地块除了1#和3#楼以外,其余楼栋均存在居住公寓。

(C地块现状)
目前,项目在售的是 C 地块的二期 143 ㎡的四室房源,价格 11600-13500 元 / ㎡之间,顶底的特价房价格在 12000 元 / ㎡以内,毛坯交付,性价比还是比较高的。

(B地块现状)
值得一提的是,在 C 地块一期里的 6#和8#有部分房源处于抵押可网签状态 。从在售的 C 地块来看,西侧全部是商业楼,二期两栋住宅楼间也是商业楼栋,未来可能会有一定的噪音,就像是北侧 B 地块按合同规定已经到交房日期了商业还没有盖完,一定程度上会影响到业主的生活。

C地块的三期虽然只有2栋住宅楼但都是30层以上的大高层,预计年底前或会入市。当然大高层通常会带来的后果就是采光不足,在2#楼东单元的2-17层有32户居住公寓,西单元3层和4层的东户也为居住公寓;4#楼东单元的西户1-16层也有16户居住公寓,西单元东户1-4层有4户居住公寓,中间户1楼有1户居住公寓,西单元的西户南侧因为是3层的配套商业导致1-3楼也是居住公寓。此外,在2#楼西单元的首层和局部二层上还规划了配套用房,整体C地块还规划了325个地上车位,并未做到人车分流。

(济南市大金小学)

(济南育华中学)
金科城前后也开发了小十年,除了产品上存在的这些短板以外,整体来看居住和生活配套方面已有所改善,但教育和商业方面却“拖了后腿”。虽然东侧紧邻大金小学和育华中学,但按照原先规划在金科城 B 地块西侧地块为其配套学校,至今仍未有动工迹象;同时,在紧邻经十路的商业综合体地块也未开建,根据置业顾问介绍,该地块将于明年动工。
02

保利熙悦
保利熙悦与金科城一路之隔,位于槐荫区政府以北,大金小学和育华中学以南,项目 由保利和中科联合开发建设,2018年2月 拿地 , 商务地块和住宅地块绑定出让 ,住宅地块的楼面价4688元/ ㎡ 。

整体来看,住宅地块面积为 45508 ㎡, 楼盘体量不大, 共规划 了 13栋住宅,包含2栋34层高层、4栋31层高层、1栋23层高层、6栋18层小高层,合计1148户,均为精装交付 , 预计 2023年8月交房 。 其中,小高层公摊21%,高层公摊24%。

(沙盘图)
目前在售情况为: 5# 楼 18 层小高层 142 ㎡四室房源均价 18500 元 / ㎡, 8# 楼 34 层高层 142 ㎡四室房源均价 16000-16500 元 / ㎡;在售 1# 、 2# 楼 31 层高层中间户 110 ㎡三室房源均价 16000 元 / ㎡;在售 1# 楼边户 126 ㎡均价 16000-16500 元 / ㎡;在售 4# 楼 18 层小高层 166 ㎡房源均价 18500-19000 元 / ㎡。




(户型图)
从网签情况来看,在10#、11#和13#楼存在部分抵押可网签的房源。在售的8#楼东单元东户的8层有1户为居住公寓。此外,整个小区内也规划了150个的地上车位。 虽然小区配备了幼儿园和康养中心,但由于体量 不大整体也未形成 规模 。

对于保利熙悦而言,由于 整个 小区规划受限, 住宅底下没有底商,而商业地块又在科技馆南侧,距离项目直线距离在1公里以上,因此未来业主购物需要到金科城或 麦德龙商场。

从以上这两个项目来看,位置在西客站片区占据了非常大的优势,无论是去西客站还是长途西站都非常便捷,甚至已经开通的地铁 1 号线的大杨站就位于金科城南侧商业综合体西邻。但除了交通优势以外,目前两个项目的教育配套和商业配套都仍有待提升。

(住宅地块北侧配建)

(施工进度图)
对于刚需购房者来说,金科城的毛坯房源比保利熙悦的精装房要便宜 3000 元 / ㎡左右,而这也恰好是保利宣传的 3000 元 / ㎡的精装标准,但交房如何还有待时间检验,毕竟购房者拿着 30 万自己就能全屋打造出比较不错的装修来。