
绘装新房,微信号:huibenwan,把梦想中的房子变成现实!设计是什么?只是每个人对于家具、家居搭配美好的念想。Come on!在千万人的念想中,寻找属于你的家。
房屋信息
户 型:一室一厅
面 积:40㎡
费 用:5w
装修时长:4个月
说在前面
屋主是一位独居的小姑娘,在医院上班,喜欢理性、克制的色彩和风格。买到手的精装房基装风格偏简单日式,整体尺度都偏小,收纳有一定难度。屋主喜欢北欧风格更多一些,并且希望在控制预算的前提下,尽量合理利用空间。唯一一个特殊要求是:需要有一个不会被爸妈发现的藏酒的地方。

原始结构图
原户型没有明显的玄关、客厅、餐厅区域,需要后期重新规划。
基装格局改动:
1、客厅旁的阳台计划封入客厅作为小书房;
2、厨房有一弧形玻璃隔断,整个去掉做成开放式厨房。

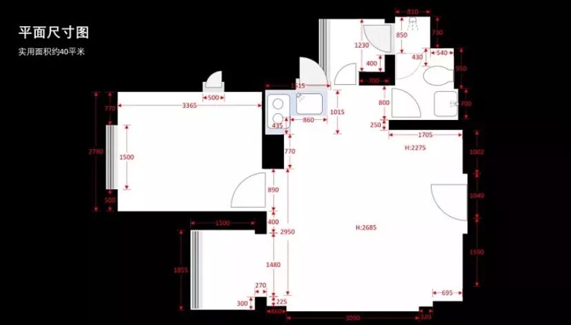
平面布局图
绿色为添加的收纳空间,蓝色为添加的家具家电。猜猜藏酒的地方在哪里?

改造前房子情况
存在问题:
1、吊顶刷了迷之粉色,没有现成的玄关位置。
2、原厨房有一个弧形的玻璃隔断,生活阳台也需要经过厨房才能到达;厨房台面除开水槽和灶台后,操作空间几乎为零。
3、留给餐厅的区域很狭窄,并且自带圆形吊顶装饰,使得餐桌的中心位置比较固定。
4、之前屋主去看样板间的时候,卧室有一面大大的落地窗很让人心动。交了房发现落地窗变成了一扇小窗,上下左右都不挨,很尴尬。整个房间被刷成粉色,虽然符合小女生的心思,但是跟木色地板和黑色窗框搭在一起,显得层层叠叠不伦不类。
一起来看看改造后的样子吧~
玄关

进门左手边,增加鞋柜和衣柜
在给屋主做收纳设计的时候,我总是希望能尽量在玄关解决大衣存放的问题。
玄关区,卡着强弱电表箱和筒灯的位置设计好尺寸,强电箱在外,弱电箱在柜内。右侧衣柜设置成镜柜门形式,扩展空间感,同时也是最佳的玄关穿衣镜位置。
常穿的鞋放在换鞋凳下方,更加实用,两只坐垫是屋主朋友送的礼物,也是全屋最卡哇伊的物件。
客厅

原精装房提供的地板、门、吊顶灯带、壁纸、空调等都没有变动。客厅左侧的阳台,封窗后做成小书房,右侧的厨房去掉玻璃隔断,添加了一组橱柜。

投影仪+升降幕布
沙发对面安装了自动升降的投影幕布,满足日常观影需要。

冰箱左侧就是玄关,所有的物件都是计算好尺寸,按照计划选择购买。本来计划在沙发后面再添点墙面装饰,后来发现对于小户型来说,留白才是最难得的。

橄榄树

靠在沙发边上看书,脚下是平整的地毯,享受惬意的午后时光。
厨房

开放式厨房
拆除了原厨房的弧形玻璃隔断后,出于成本考虑,没有更改地面,只处理了吊顶,和整体空间保持一致。
添加的新橱柜,大大扩充了厨房的实用性,并且弱化地面的材质变化边界。

开放式厨房,新增一组橱柜
比照着原橱柜的板材和石材,新增了一组橱柜,抽油烟机处的吊柜也是后加的,扩展操作台面和厨房收纳。
橱柜面向餐桌的一侧,设计隐形柜门,收纳小电器,面向水槽一侧,做了四组横向抽屉。靠近灰砖墙面的端部空间,从厨房内侧很难利用,所以面向客厅,开了一面隐形柜门,存放零食。

吊柜
烟道两侧的补充收纳,只适合不怕热的物品,家里不常开火的比较适合装。虽然看上去没有很大,但其实还挺能装的,对分寸必争的小户型很有助力。

开放柜格,收纳调味品
就连新旧橱柜之间,过渡的一点小凹空间,也完美利用上了。
餐厅

餐厅卡座
餐桌一侧,设计了卡座,一方面控制尺寸,同时也增加收纳,卡座的侧边做成抽屉便于使用,坐面突出柜体,便于落脚。
对侧日常放置一把餐椅,朋友来的话,最多可以坐五人,书房椅子和卧室的床头柜,都可以作为临时餐椅使用。

揭晓谜底:藏酒的角落,就在卡座这里了!

一整套泡咖啡的器具
餐厅墙面,增加一组搁板收纳小物件。

一个人的早餐,也要吃得有仪式感。
书房

客厅旁边的阳台改做小书房,拆掉原来的玻璃门隔断,利用原来的窗帘盒,做了自然纱帘分隔,空间更通透。阳台墙面上的水管和空调走管等,直接用柜体包住,省去处理墙面的麻烦。

为了达到柜体和书桌面最大化,定制柜侧面直接做到抵墙,仅保留原来的窗梁作为窗帘轨道的位置,只能装下单轨道,就将纱帘和主帘做了一个拼接。
插座考虑到使用情况,增设了不少,书桌下方,走空调水管的地方,铺上一块尺寸合适的小地毯,正好作为脚踏。
卧室

卧室只有一扇小窗,上下左右都不挨,位置很尴尬,而且整个屋子唯一能晒到太阳的,就是靠窗的这一小片区域,屋主希望能在这里留一个阳光读书角。
但是整个卧室的开间又很小,分寸必争之下,我们采取了地台+满墙窗帘的方式,来弱化尴尬的小窗,提供一个可以晒太阳的小角落,同时增加收纳空间。

而在房间的另一侧,有一个位置不高的小窗,反而限制了床头背板的高度。
在床的选择上,我们也讨论了很久,最后选择了1.35m宽的大单人床,颜色与窗框保持一致,以给衣柜留出更多空间。
原粉色墙面改为中性浅灰色,搭配低饱和度粉色系窗帘,理性中不失一分柔软。

小开间的另一个问题是,衣柜做对开门不好用,因此我们用了长虹钢化玻璃推拉门替代。一方面推拉门对使用空间要求更低,另一方面通透的玻璃,能给小空间更多呼吸感,并且屋主本身的生活方式是简洁利索的,并不怕视觉上的通透。

衣柜对床的格局
我通常坚持如果做对开门衣柜,一定要保证最内侧那扇门,可以打开好使用,也就是需要40cm~50cm的走道空间,对于很多卧室而言,这往往意味着需要牺牲一个标准的床头柜(50cm-60cm)。
如果不能达到,用推拉门替换对开门,对走道距离要求更低,更有利于小卧室的空间利用。

临窗地台,也做了充分的收纳设计
床尾处,设计便于使用的抽屉,宽度小于床尾到墙面的距离,方便抽取。

靠里的部分,做无把手上翻门(翻盖边缘略突出于柜体),可以存放行李箱等大件又不常用的物品。
卫生间

精装卫生间往往颜值都不太理想,但是改造成本过高,因此未作改动,仅仅卡尺寸添加了收纳架,以及在浴室窗户上,添加了防水彩虹帘。
想知道您适合哪种装修风格吗?点击测试下吧!
(我们致力于保护作者版权,部分作品来自互联网.无法核实真实出处,如涉及侵权,请直接联系小编删除.谢谢!)
