当下城市生活节奏愈发快而急促,很多人忙碌一天后已是一身疲惫,而家俨然成为了各大都市人的最后温暖的港湾,它需要充当的是一个舒适而惬意的安乐窝。自然而言,“环境好、住得舒服…”成为了很多购房者的首选。
同时,随着“金九银十”到来,为了更贴近当下购房者的意愿,房叔今天走近三水新城,了解这个连名字都带着诗意的楼盘——保利·和堂玥。
『保利·和堂玥』
保利·和堂玥佛山市三水区南丰大道西侧荷花世界旁。
保利·和堂玥是保利中央公园最后一期产品。项目占地约 11.9万㎡ ,建面约 47.2万㎡ ,规划有 18栋 高层、 15栋 小高层和 11栋 别墅,容积率 3.0 ,绿化率 38.24% ,总规划户数 3000户 ,车位数 2827个 ,车位占比 1:0.94 。

实景图

项目规划图
项目目前洋房主推 4座和33座 ,楼高共 33层 , 两梯四户 设计,涵盖 97-144㎡三至五房。
另外大户型主推 31座和32座 ,楼高共 33层 , 两梯三户 设计,户型面积均高于 160m² 。所有洋房均带精装。
据悉,该期产品预计于 2022年6-10月 交楼。

沙盘图
『多户型·多选择』
项目覆盖户型较多,涵盖了从 97-304㎡ 的高层洋房、别墅。洋房从 2+1房 至 4+1房 户型均有。

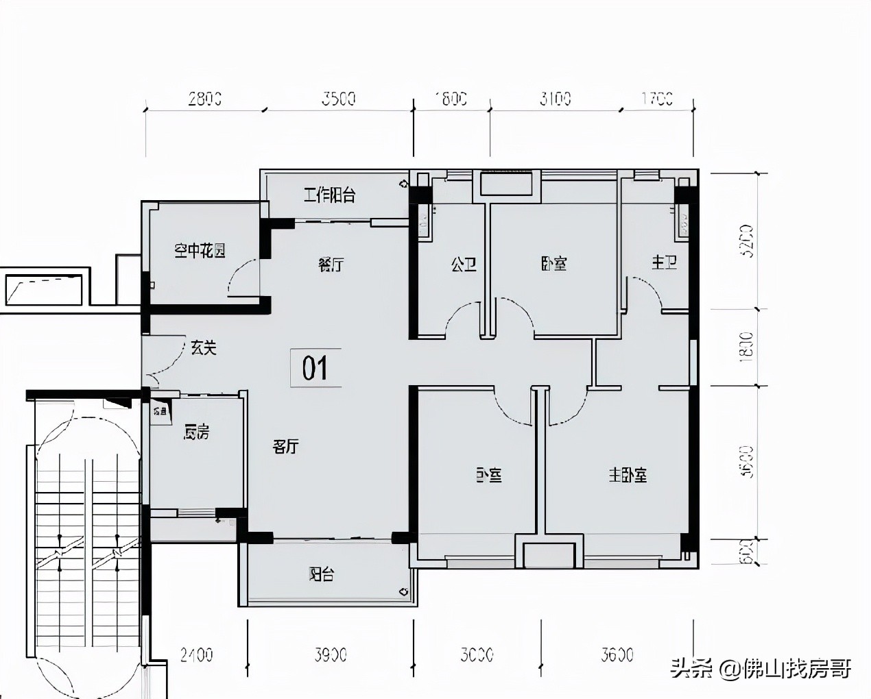
01户型图

02户型图

03/04户型图
本次选择走访几个热卖的户型。在出发看板房的路上发现这个楼盘是真的与 三水4A景区荷花世界 “握手而坐”。如果住在这里,房叔不禁想到“小径徘徊香滿路,诗情入梦伴眠乡。”

走进小区,让房叔比较印象深刻的是小区的园林设计比较新颖独特,园林的景观融入了比较多的 金属元素和水流设计 ,所有的水流都比较浅,家里有小朋友的也不用太担心。

01
97m²·纯南向望荷
接下来,房叔顺利来到约 97m²的2+1房2厅2卫03/04户型 进行参观,该户型主要卖点是纯南向,直望荷花世界,虽然面积不大,但是空间还算紧凑实用,也很适合追求“最美的风景在身边”的购房者。
该户型 餐客厅与阳台相连 ,格局比较通透,动静分区,生活空间互不干扰,完全对得起“刚需”二字。

实景图

实景图
厨房带生活阳台 ,通风透光,相对于这个户型来说空间比较充足。


实景图
主卧南向,带观景大飘窗,采光足。次卧同样带飘窗,适当利用改造一下实用性更强。 第三房面积不大,比较适合用作工具房、书房或年幼小朋友充当卧室使用。



02
125m²·南北双开间
随后,房叔走访了 约125m²的3+1房2厅2卫02户型 ,户型空间相对宽阔,所有空间分布合理, 南北双开间 是比较吸睛的地方。
格局方正, 客餐厅一体化 。常见的两梯四户,但是没有门户相对的情况,私密性够强。

实景图
所有卧室均带飘窗但不算大,优点是 采光足 ,房叔认为适当改造还是很耐用的,毕竟房间自身空间足够大。




卫生间布局总体合理,但值得留意的是自带小型飘窗,各位可以慎重考虑如何利用,介意的话可以移步观望其他户型。 独立厨房自带生活阳台 ,适合喜欢“烹饪自由”的各位购房者。



实景图
03
144m²·方正奢阔
最后房叔走访了 约144m²4+1房2厅三2卫的01户型 ,户型 格局方正奢阔,通风透光 ,最大的特点是该户型没有普通户型的卧室长廊,而是做了一个 类似半横厅的设计 ,只有一个小小卧室半走廊,餐客厅一体之余显得更为阔绰。

实景图

实景图
卧室方面,4+1房 适合三代同堂家庭居住,也方便客人接待 , 主卧配衣帽间 ,自带独立大卫浴,融合私密与舒适于一体。

每个次卧空间都很充足, 通透性和采光到位 ,设计上可以算得上“雨露均沾”。


这里第五房样板间做了工作室的设计,购房者们可供参考,也可以设计成其他类型。

值得一提的是,今次参观的户型都是当下比较流行的 n+1户型 ,最后一房交付标准均不是样版房设计所示,对家居装饰设计感兴趣的购房者也留了足够的余地参与自己房屋的设计。



交付标准实景图
『“金九银十”·上车好时机』
目前保利·和堂玥均价 约10500元/㎡ ,随着房地产市场“金九银十”传统旺季已至,更有 “一口价”、“团购券”、“购房砸金蛋”、“购房认购” 等多重折扣活动。

价格示意图(仅供参考)

实景图(仅供参考)

『处三水新城·未来可期』
项目地处三水区重点发展区域——三水新城,可享城区一站式生活配套,揽中心水轴和荷花世界两大风景资源。
三水新城承接广佛肇三地,是未来广佛肇经济圈的CBD。政府报告指出,要把三水新城打造为城市标杆,成为 珠西粤港合作示范区、“广佛创新智谷、岭南人居水城“ 。

示意图
交通方面,三水新城规划以三水北站为核心,未来将迎来 地铁+高铁+城轨+有轨电车 全覆盖,打造TOD新城启动区。
项目紧靠南丰大道,临近 广佛肇轻轨三水北站, 其中,规划有 佛山地铁4号线一期 (规划)三水段,从南海、禅城延伸至三水(预计2022年开通运营)、以及远期规划8/12号线。

示意图
此外,除了跨城交通,很多人会担心新城尚未真正发展起来,特别是会有日常公交不方便的疑虑,因此房叔特意实地了解了附近日常出行的配套概况。
了解到附近公交经过路线有 近20条 ,涵盖了边镇及西南城中心的路线,大大方便了市民日常出行。

实景图

实景图
商业配套方面,项目周边错落分布着荷花奇境、 三水文化活动中心、三水万达广场、华南戴斯酒店、百利达广场、三水广场、天聚广场(在建)及三水新城CBD——碧桂园·佛山双子星城2.5产业园 等一系列丰盛商务娱乐配套。

示意图

实景图
三水新城将完善教育配套作为重中之重。如: 新城幼儿园、云东海学校、三水中学附属初中、三水中学、三水实验中学及广东财经大学 等均已落成。 博文小学 已于今年9月正式投入使用,据房叔了解,保利·和堂玥今年小学学区分配至博文小学。另外,华中师范大学佛山附属学校即将投入使用、金融街幼儿园、华远海蓝城幼儿园等也进入议程。

示意图
医疗方面,项目板块内有 人民医院、恒德医院、妇幼保健院、南方医科大学珠江医院三水分院 等,而 三水新城医院 是一所现代化三甲综合医院,预计2021年年底投入使用。

南方医科大学珠江医院三水分院效果图
环境休闲方面,区域内有 三水荷花世界、云东海生态公园、荷香湖公园 等,另外还有 三江水韵公园 ,曾获得“佛山十大最美河湖”之称,相当于17个千灯湖。

示意图

三水新体育馆设计方案效果图
当然,三水新城这边还是有很多项目在售,价格也是很购房者选择的重要因素,房叔这次简单整理了下附近楼盘的价格,大家仅供参考!
『写在最后』
随着三水新城被誉为“三水未来CBD”,现在给很多人的印象都是现代化、城市化。房叔对保利·和堂玥总体感觉算是“城市中能找到一片清净”,毕竟其户型选择真的不算少,刚需房、改善房、大平层、别墅都一应俱全,主打也是与荷花世界为邻,试问一下谁不想每天回家都能看到赏心悦目的风景呢。
