项目标签
设计公司:中村拓志
位置: 日本
类型: 建筑
材料: 金属 玻璃 玻璃砖
标签: 广岛
分类: 住宅公寓 住宅建筑
#一起上头条##抄书打卡##头条创作挑战赛##在头条看见彼此##别墅##建筑##美丽乡村##经常安慰自己的一句话是什么##中国古建筑摄影联盟##爆料#

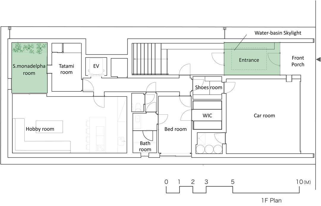
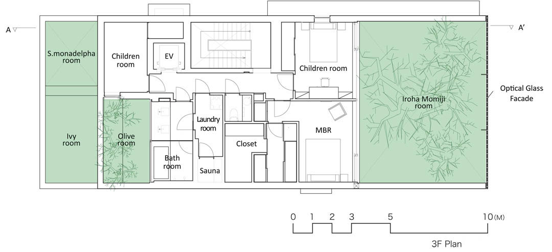
这座住宅位于日本广岛城市中车流不息的大路旁。建筑师用一面美丽的光学玻璃墙为建筑隔出了隐私和安宁,隔出了若隐若现的丰富城市景色,隔出了过滤的来自东向的美丽日光。入口门厅头顶天花开了一个方口,安装一片玻璃,上面附上一层薄薄的,流动的水膜。经过过滤的阳光穿过树影斑驳的落在客厅的地面上,超级轻盈的金属镀膜窗帘在风中若有若无的舞动。这里地处闹市,却可以安然享受宁静,享受城市的丰富,享受不断变化的光还有四季之美。
这面面光学玻璃墙由特别打造的6000块纯玻璃块(50毫米x 235毫米x 50毫米)组成。这面墙有效的阻隔了声音,却能引入城市的风光。建筑师采用了透明度极高的玻璃品种。玻璃加工是非常不容易的,除了精度要求,还需要经过两次缓慢冷却除去玻璃本身的应力。玻璃表面的细微粗糙为建筑带来了不可预计的光影效果。因为玻璃墙具有8.6mx8.6米的巨大尺度,因此建筑师将每个玻璃进行穿孔,用钢索传奇他们,为了避免侧向应力,建筑师在用不锈钢扁钢进行横向固定。最后的效果实现了玻璃砖严丝合缝的对接和完整的玻璃墙,看起来如泛着光芒的清新”瀑布”。这个瀑布重13吨,由顶上悬挑的钢梁支撑,四条竖向的主龙骨与花园楼板结构相连,均匀分力,实现了结构最小化。

光学玻璃屋
这所房子坐落在广岛市中心的高楼大厦中,俯瞰着一条街道,街道上有许多过往的汽车和有轨电车。为了在这些环境中获得隐私和宁静,我们在房子的街道一侧放置了一个花园和光学玻璃外墙。从所有房间都可以看到花园,过往的汽车和电车宁静无声的景色给房子里的生活带来了丰富。来自东方的阳光折射穿过玻璃,形成美丽的光图案。雨水打在水池天窗上,体现了入口楼层的水图案。透过花园树木的过滤光在客厅地板上闪烁,一块超轻的溅射金属窗帘在风中翩翩起舞。虽然房子位于城市的市中心,但随着时间的推移,居民可以享受不断变化的光线和城市情绪,并在意识到季节变化的情况下生活。





。






光学玻璃立面
采用了约6000块纯玻璃砖(50mm x 235mm x 50mm)的立面。纯玻璃块,单位面积质量大,有效地隔绝了声音,并能够创造一个开放、清晰的花园,欣赏城市风景。为了实现这样的外观,采用了玻璃铸造,以光学玻璃的原材料硼硅酸盐为原料生产出透明度极高的玻璃。铸造过程极其困难,因为它既需要缓慢的冷却来消除玻璃内的残余应力,又需要高的尺寸精度。然而,即使在那时,玻璃仍保留着微观水平的表面凹凸,但我们积极欢迎这种效果,因为它会在内部空间产生意想不到的视觉错觉。

瀑布
8.6米x 8.6米的外墙如此之大,如果铺设一排排只有50毫米深的玻璃砖,它就无法独立站立。因此,我们在玻璃块上穿孔,并将其挂在75个不锈钢螺栓上,这些螺栓悬挂在立面上方的横梁上。然而,这样的结构很容易受到横向应力的影响,所以除了玻璃块,我们还以10厘米的间隔将其串在不锈钢扁条(40毫米x 4毫米)上。扁条位于50mm厚的玻璃块内,使其不可见,因此在玻璃块之间实现了6mm的均匀密封接头。结果是,无论是从花园还是街道上看,都能看到一个透明的立面。立面看起来像一个向下流动的瀑布,散射光线,让空气充满新鲜感



标题
玻璃砖外墙重约13吨。因此,如果支撑梁是用混凝土建造的,那么它将是巨大的。采用钢框架钢筋混凝土,我们对钢梁进行预张紧,并使其向上起拱。然后,在给它立面的荷载后,我们在梁周围浇筑混凝土,以这种方式使其尺寸最小化







project name: Optical Glass Housemain purpose: HousingDesign: Hiroshi Nakamura & NAP Co.,Ltd.structure design : Yasushi Moribecontractor : Imai Corporationlocation: Naka-ku, Hiroshima-shi, Hitroshima, JapanSite area: 243.73m2Total Floor area: 363.51m2completion year: March,2012structure : R.C.structurePhotographer:(c)Koji Fujii_Nacasa & Partners Inc(c)Hiroshi Nakamura & NAP Co.,Ltd.
Hiroshi Nakamura 1974 Born in Tokyo1999 Master’s degree, Graduate School of Science and Technology, Meiji University1997 Worked at Kengo Kuma & Associates (-2002)2002 Established Hiroshi Nakamura & NAP Co., Ltd.