买完房后就面临装修,但是如何装修才靠谱呢?北宁湾小区一位业主将35平米的房子装修成现代风格复式,装修完之后获的亲戚好友的称赞。让我们一起来看看该业主是怎么装修的呢?
设计以简约为主,以简洁的设计让生活大方异彩,摈弃浮华的线条和装饰,还原材质的本来美感,优美简洁的线条,自然明快的白色,为生活营造了一片纯净;空间注重光的运用设计回归生活本质,营造舒适又充满灵感的空间,却足够让主人舒适。不要只把家当做睡觉的地方,那是对人生的敷衍。一个好的房子,可以让人即使在陌生的地方,也能生出久违的感动。在偌大的哏儿都里,给自己一个温暖又治愈的天堂吧!
客厅的设计,制造宽敞的感觉是一件非常重要的事情,不管固的空间是大还是小,在室内设计中都需要注意这点。宽敞的感觉可以带来轻松的心境和欢愉的心情。

在卧室的墙面上,增设一面采光窗,保证室内光线不受阻挡。

二楼过道一整排的储物柜,让小户型也能拥有豪华衣帽间。靠卧室门外,设置了一组镂空格,放上自己喜欢的摆件,给平凡的日子增加闪光点。

电视柜不仅收纳力爆表,更是内有乾坤,为家里的3只猫,做了三个联排别墅,一楼放猫砂,加装亚克力门板,进出自如,二楼用来休息睡觉,透过玻璃洞口,可以随时查看它们的身影。

阳台卡座下都是收纳空间,这里可以是书桌,也可以是餐桌。

电视左边的两扇柜门里,隐藏着洗衣机和烘干机,平时关上门,整洁干净,视觉统一。

楼梯做了隐藏灯带设计,玻璃栏杆透光性好,保持空间通透宽敞。楼梯下方的空间也没有浪费,做了小型的杂物间。

客厅采光充足,白色墙面+原木地板,搭配排列有序的筒灯,视觉上看轻盈通透。深空灰沙发床,必要时可以拉出来让朋友留宿。

卡座上方的吊顶做了钢化玻璃,一方面解决层高不足的问题,延伸视觉上的通透感,另一方面是增加采光,部分光源会从楼上映射到楼下。

靠阳台一侧做了开放格,可以放置喜欢的书籍和摆件,偶尔借着阳光阅读片刻,或放空思绪。
卧室的装修并非只是摆设一张床这么简单的事情,在卧室装修中,有很多需要注意的地方。现在的卧室,室内功能越来越完善,舒适度也越来越高,基本可以满足主人的任何生活需求。

二楼整体空间隔而不断,两面的采光相互补充,白色柜门还有些许反光作用,扩大空间视觉。

木饰面床头背景墙结合两侧的隔板当作床头柜,简单明了,也能兼顾实用性。造型别致的线条感吊灯,给空间带来一丝灵动。

卧室装修比较简单,放松身心的空间,应当尽可能保持纯粹。

二楼的另一个区域,是综合活动室,定制的书桌保障了基础使用功能。地台设计可以储物,也可以当作临时客卧。工作学习、健身、影音闲聊、朋友留宿,多个场景可以灵活切换。

家人或朋友来留宿时,把过道中间的隐形门拉开,就轻松变成了小两居室。平时收折起来,不占用空间,还能保障通风采光。
卫生间由于空气潮湿,很容易滋生细菌。所以选择有窗户的明卫最好。如果是暗卫,为了防止卫生间发霉,除了装一个功率大,性能好的排气换气扇外,还要注意避免“包裹”,尤其是在临近地面的地方。

洗手台外置,利用镜柜和台盆柜满足日常收纳,柜子底部悬空,不留卫生死角。

虽然空间有限,卫生间还是极力实现了彻底的三分离。
厨房在装修的时候是一个难题,如果装修的不合适的话,那么以后用起来是非常麻烦,而且一般厨房空间相对狭小,想要在进行改装也无处可改了,所以厨房装修尽量一步到位!

过道式厨房设计,吊柜+地柜,超大储物空间;白色+原木双色柜门,视觉上减轻压抑感!台盆区的墙面增加一组挂勾,最大程度释放台面空间,日常拿取也非常方便。
玄关是一个家庭的门脸,为了保护主人的隐私,避免客人一进门就对整个居室一览无余,在进门处用木质或玻璃作一个隔断,划出一块独立区域,在视觉上遮挡一下。

进门左手边是玄关柜,做斜切处理,让空间不显拥堵。地面选择花砖与木地板拼接,分割不同功能区。顶天立地玄关柜,足够收纳日常的鞋子,中间镂空,可以随手放置小物件。
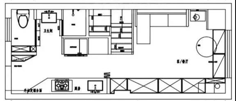
以下就是本套北宁湾小区35平米复式房子的户型图。

利用挑高做了隔层,一层是一日三餐+撸猫刷剧的起居空间,二楼是静谧舒适的休息区,实现动静分离。

公寓面积虽然不大,但户型方正,层高4.6米,可发挥的空间很足。
关于35平米的复式,采用现代风格装修的效果如何的相关信息,小编就为大家介绍到这里了,您看看是否能够为你装修的时候带去帮助。