
项目名称
广西柳州黄家新中式别墅
项目经理
龚芏铨
图纸编号
1298
建筑面积
372.9㎡
基地面积
410.8㎡
占地面积
144㎡
建筑尺寸
13.1m×10.9m
建筑结构
砖混结构
参考造价
61.5万元(不含室内装修费用)
项目概况

△总平面示意图
基地情况:
东:自家后院
西:自家院落
南:邻家住宅
北:邻家住宅
项目简介:
项目选址位于广西柳州,在和业主沟通后,选定建筑风格为新中式别墅风格,之后设计师开始了后续的设计。本项目设计强调出建筑的体量感和厚重感,以此体现建筑的磅礴大气,进而彰显出业主的气势和品位。围绕着这一目标,设计师进行了精心的平面布局、立面选材、体量推敲和细节勾勒,最终的结果也是深得业主满意。
平面布局
户型概况:
2层 / 7室 3厅 6卫 2衣帽间 1书房 1厨 1储物 2阳台 3露台

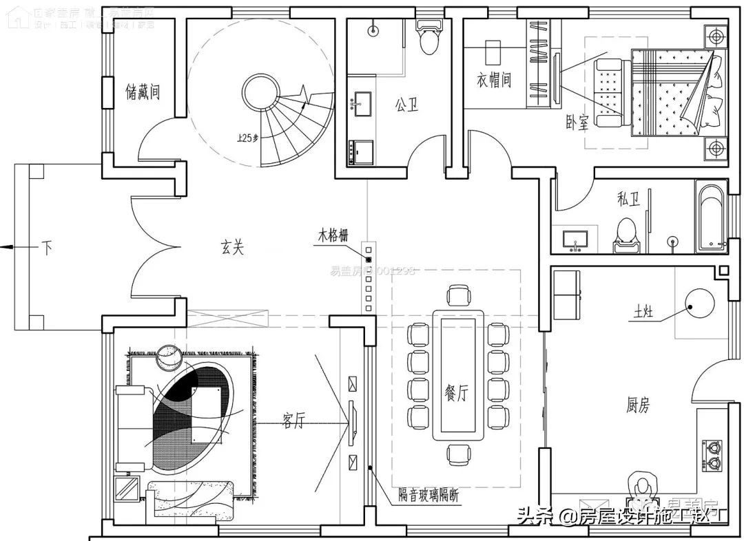
△一层平面图
一层以公共活动为主,入口为玄关,玄关北侧为开放式旋转楼梯,南侧为客厅,客厅相对独立,自成一体,餐厅和客厅相连,通过隔音玻璃隔断、减弱了相互之间的声音干扰。厨房面积较大,可以满足更多的炊事活动,布局采用L形,东侧避让出直接对外的出入口。私密性较强的东北角用作卧室。

△二层平面图
二层空间整体以居住空间作为主要诉求,布局上充分利用南侧向阳面,主卧配备私卫和户外阳台,满足更多的使用要求。书房布置在东北角,利用北侧光进行室内的照明,光线柔和,利于阅读环境的营造。整个二层布置多处露台,阳台,在满足使用要求的基础上,极大的丰富了建筑立面。

△三层平面图
三层平面由下层平面结构现需而来,西南角墙体退让,形成室外烧烤台,以此丰富家庭的娱乐活动,平面组织和二层相同,以起居室作为核心组织卧室,二、三层起居室之间通过垂直交通相连,起到上下呼应联系的作用,为了便利交通,上层楼梯由旋转楼梯改为三跑直跑楼梯,入口直通起居室,既便利了交通,又增加了空间的尺度变化。
造型设计

△主入口效果图

△鸟瞰图
建筑整体采用新中式风格,设计师以西立面作为主造型面,入口通过二层阳台遮蔽出入口空间,利用方形立柱来装饰入口,使建筑外观气势磅礴,庄重大气,突显出户主的身份地位和品味格调。

△西南鸟瞰图

△西南效果图
别墅一、二层立面主要使用米红色文化石外墙,利用深咖色真石漆进行装饰,三层立面采用深咖色真石漆外墙,与下两层装饰构件进行呼应。建筑屋顶使用深灰色陶瓦,屋檐朝两侧平缓外伸,利用深咖色真石漆进行压边处理,三种颜色之间互相碰撞,却不失和谐。

△西北鸟瞰图
别墅整体利用颜色对建筑进行分割,立面尺度怡人。厚重的外墙让建筑的方正体型量更加突出,外凸的雨棚、檐角,内凹的方形窗套,使整体别墅的立体感更加强烈。

△东北效果图

△东南效果图
二层、三层露台精美的镂空铁艺栏杆,装饰与实用并存,配合建筑体量的变化,形成凹凸的造型,尽显高贵富足。南侧大面积的玻璃窗保证了室内的采光通风,增加了别墅的时尚感。窗的深咖色线条让别墅更加美观精致,透出浓浓的欧洲风情。

△东立面图

△西立面图

△南立面图

△北立面图