中国的卫生间太小了!
城市居民楼几乎没有算得上“宽敞够用”的卫生间,好多近百平的房子卫生间就4-5m²,恨不得花洒就在马桶上方,一边蹲坑一边淋浴。

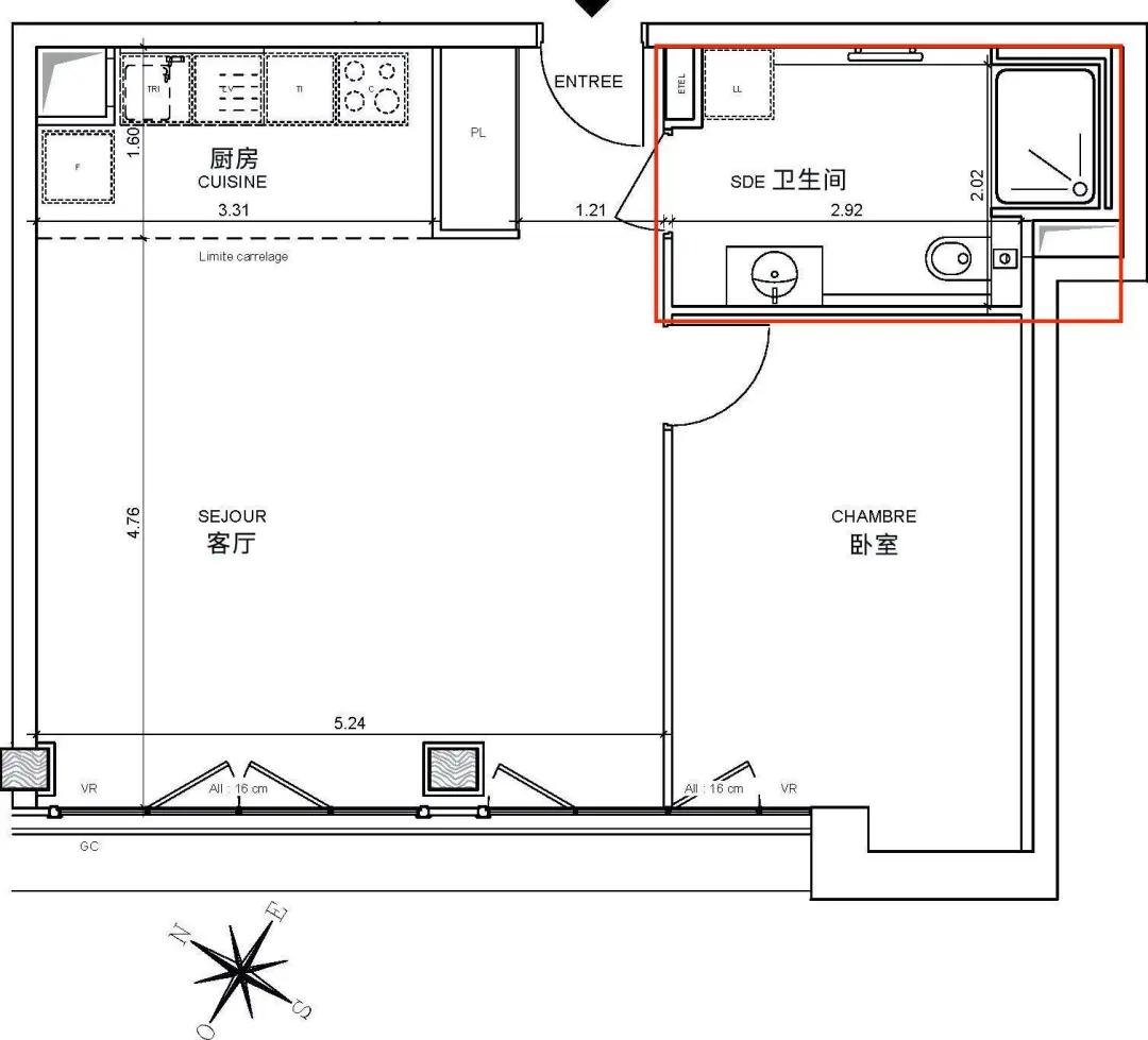
52平巴黎老住宅,卫生间超过6平米

49平北京老住宅,卫生间2.5平米
所以每次有朋友拿着国外家居博主的洗手间美图来问:参考这个效果怎么样?
我大概率会制止——人家洗手间少说8m²起,这浴室柜放进你家洗手间,门都进不去。
空间小就更应该简单、轻盈、东西少,看起来才能干净不逼仄,能不放洗手间的,都清出去。
洗手池就最好别带浴室柜,一定要带也是越轻薄、越简洁越好。
洗手池最佳配置
悬浮台面、超薄镜面
我们在欧洲很多家庭看到这样的洗手间:高脚台盆或者悬浮台盆,配个镜子,再 加 一个马桶和花洒,卫生间基础功能全部齐备。
效果我就直接放图吧,差不多大小的卫生间,哪个更清爽干净,高下立现。


无浴室柜小空间


有浴室柜小空间
为什么单台盆+镜子的效果这么优越?
两点:不阻断、不凸出。
柜子就是阻断,现在装修都知道首先考虑打掉隔断,越多区隔、空间利用率越小,感受上也越逼仄。
悬浮台盆上下都完全“通气”自然不用说,高脚台盆也不敦实厚重,大眼一瞧,卫生间四壁仍然是一个整体。
凸出就更直观,美式大落地柜那一坨,路过它都得下意识闪避一下,视觉上就是堵。
高脚台盆复古有姿态,国外很多古董家具品牌都卖高脚台盆。

包括科勒高端线kallista,高脚台盆配大气的美式五金,复古美式范儿就有了。


来源:kallista官网
薄薄的悬浮台盆灵巧不浮夸,顶奢卫浴品牌劳芬至今仍以这类台盆为主,可现代可古典。



来源:劳芬官网



来源:Charly vignette官网
这是小卫生间显大、显干净,还好看的最优解。
说到这里,有人怕是要按捺不住手里的键盘了:我需要收纳!
我懂,但是,洗手间是全家最不适合储物的空间,没有之一。
洗手间不适合储物
首先洗手间潮湿,除了洗漱用品之外,那些毛巾、手纸、化妆品、吹风机……一概不适合放在洗手间。
然后还是空间小的问题,灵魂拷问:
为什么要把“银卫”这么重要的小空间,用来储物?
洗手间那么小了,能储多少物?
洗手间收纳,是放那些必须在洗手间用/在洗手间用最方便的东西,不是存储。
列个单子整理一下自己的需求,不是“必须”的都拿走。

来源:住范儿自摄
比如你家洗衣机安排在家务阳台,那就别把洗衣液留在洗手间;面膜放冰箱去,备用手纸放干燥的收纳柜里……卫生间清掉一大半。
少量收纳
配镜柜或小搁板
当然,我们不能为了好看因噎废食,收纳刚需不能压缩(我也是身体乳就有3瓶的美少女我懂)。
那请优先考虑加镜柜、搁板。


颜值革命4.0尚高浴室柜
来源:住范儿自摄
你自己想一想,洗手间最常用的东西,大部分都是零碎小物件,瓶瓶罐罐、皮筋剃须刀……
比起大柜子大空间,层次分明、规划清晰的小搁板更适合存放它们,住范儿用户案例完美展现这一点:

来源:住范儿自摄

而且,镜柜深度最多不到30cm,15-25cm最方便,镜面一盖上还是很完整,镜子自身的反射也能消解掉一些拥挤,对空间感的剥削没那么严重。
必须收纳
优先高柜,其次极简地柜
小件还不能满足你的收纳需求,那就加高柜吧,地柜建议你放在最后考虑。
收纳效率:高柜>地柜
高柜本身就更好看,瘦高、简洁,占用的是立体空间,视觉上没有特别大只。

来源:宜家官网
最好能做嵌入式,跟咱们打通顶柜收纳一样,和墙面成为整体,清爽。

最重要的是,高柜收纳效率很高,比镜柜+地柜上下分散要方便顺手。
如何选择地柜
必须选地柜的话,我只建议你选极简风格。
地柜只选极简风格
极简风格,广泛适配大多数家庭的风格,也是最流行的一类。




其实我个人非常喜欢细节丰富、装饰精巧的古典风格,但即便我有大房子、有充足预算搞古典风,也不会买欧式浴室柜。
它是现代人凭空捏造的复古,一种不成功的解构。


完整的现代浴室概念成型不过百年,早期的“浴室柜”起的是脸盆架功能,把盆放在一个小柜子上。
真正的复古洗手池是铸铁盆,很大很重。


铸铁搪瓷台盆
来源:网络
而欧式装饰的大柜子,掏个洞嵌入洗手池,就是不伦不类的“现代式复古”,并不好看。
比如“法式复古”这个浴室柜:

原型是叫做“胸部风格”的小柜子,本身是有味道很好看的,硬掏个洞做成台盆,就太一言难尽了。


极简就是干净利落显大,选它!
无装饰门型
“假古典”欧式浴室柜先pass掉,带线框装饰和造型门把手的简美式其实观感还可以,但小户型还是不适合。
不只是浴室柜,美式风的所有家具,只有够宽、够舒展才好看,空间限制体格,装饰就变累赘,放弃。
平板柜门、隐形把手,完整感最足观感最整洁,也是市场主流——选择多,价格适中。


来源:劳芬官网
简单配色
老粉可能知道,我们也喜欢独特的、有艺术感的案例,配色大胆、审美独到,经常分享,但在谈实用参考的时候,最常提的就是“简单配色”。
因为审美不是一日之功,好看的设计不一定是适合大众的设计,没有专业基础的人很难驾驭激烈风格。



好看但难做的彩色
好看的彩色太多了,但对于大部分人来说,最经典的简单配色,把整体颜色控制在4-5个,和谐舒服,还不出错。
首选白色
洗手间看起来干净特别重要,白色最显干净。
卫浴产品,从马桶、台盆到墙砖地砖,白色、浅色是绝对的主流,最大的原因就是看着干净。


白色包容度也高,想配花砖、亮眼的白色浴帘,都不会冲突。
木色要小面积、细花纹
其实木头的纹理和质感是有“分量感”的,它在整齐、显大这个点上发挥不出力量。
想用木色元素,最好控制面积,同时挑细腻花纹,比如:樱桃木、胡桃、白橡木、桃花心木等。
同样是暖红色新中式木纹,对比法恩莎(上)和恒洁(下)这两款,显然小面积木色、大面积白色的法恩莎更好搭配。


黑色重造型不重装饰
黑色浴室柜大多是做轻奢风,配金色五金、细脚细框架、做金色线条装饰,乍一看确实精致。
但是这种“模式化”轻奢,我一直持保留态度,它够不经典,除非做好三两年就换的打算,否则它不可能像木色那样“使用痕迹本身也是美感”。


选黑色浴室柜,造型应该大于装饰,忽略那些不灵不灵的五金,本身的结构合理、线条简约流畅,让你一见倾心、再见耐看,才值得入手。
板材柜体性价比最高
浴室柜最普遍的材料就是多层板,防潮技术很成熟了,怕淋浴溅水导致变形开裂,你只需要一条浴帘。
我们淋雨3小时、泡水18小时测试的多层板,还是没封边的样板,丝毫没有变形开裂。

泡水前
来源:住范儿自摄


泡水18小时候
来源:住范儿自摄
表面材质可以选三聚氰胺饰面、实木皮、岩板,灵活组合、成本高低可控,花多大钱就买多高质量/颜值,坑比较少。
防潮防水效果最好的,是吸塑(pvc)表面和烤漆表面,封边连接处没有缝隙,更能保护里面的板材。
跟多层板相比,实木太贵、收缩率又高,简约干练的款式还少,壕请随意。
铝合金类防水抗造,但是质感差了点,也不便宜,露天家务阳台柜比较适合。
PVC类,颜色多、不怕湿、便宜,千好百好都抵不住“塑料感”这一个劣势。
台面只选陶瓷或石材/岩板
浴室柜台面最常见的三种材质:陶瓷、石材/岩板、亚克力。
陶瓷性价比最高最普及,一体式的台盆台面非常容易清洁。

来源:住范儿自摄

显贵显高端就是天然石材,酒店大台面最常用大理石,越大越显贵。

近几年的材料圈“新贵”岩板也很适合做浴室柜台面,好看,防水防污易清洁,环保性也更好。


亚克力也叫人造石,能一体成型塑造弧线、圆形,天然石材只能切割拼合,这点上亚克力是有优势的,有不少奢侈卫浴品牌做亚克力台盆台面。
但我不推荐不懂行、预算不高的人入手亚克力,品质差距特别大,差的完全是塑料感,会变黄发旧。
如果要买亚克力,就只买杜邦的可丽耐,不知名杂牌一概别买。
不要细碎分区
小浴室柜分区越多、收纳效率越低,还是隔断压缩空间的问题。
最好就选 纯柜 式或抽屉式,扩宽每个空间的边界,根据自己的习惯再去规划。

壁挂上墙,好看又干净
落地式肯定不推荐,几乎所有的现代高脚柜都可以做壁挂,只要有条件,壁挂是首选。
干净清爽,下方留出空间保证“流通感”,不留卫生死角,很完美的小户型解决方案。


大家对壁挂式的忧虑无非是担心承重(结实),其实无论厨房吊柜、壁挂马桶、壁挂浴室柜,工艺都非常成熟了——酒店哪有承重墙?大理石台面壁挂也不会有啥问题。
家里洗手间,只要不是轻体墙,经过工人确认就是OK的。
水管入墙
最推荐墙排,把进出水管都埋进墙里,得在装修开始前就规划好沟通好,已经铺好地砖墙砖就来不及了。

墙排最大的好处是干净,下水口不暴露不反味儿,墙面地面没有卫生死角。
其次是好看,说了太多遍,整体感、流通感,也不用在浴室柜里掏大洞,真正保护存储空间。
有人担心墙排容易堵塞,其实欧洲做墙排的外露U形管下面,是有一个疏通开关的,所以要注意的不是墙排,而是选不锈钢或铜管,方便疏通、可以用溶解剂。


再一个,卫生间下水堵塞,从来不是因为弯道,是头发!
在台盆里洗头的时候稍微注意点,堵的概率就很小。
排水管偏移
排水管往后偏一点/往侧面偏一点,别让下水管横亘在柜内正中间,做收纳的时候方便很多。

小空间别选台上盆
台上盆确实很美观,住范儿颜值革命4.0也增加了台上盆选项,但在我们的样板间,只有干湿分离的干区才用了竹木台面+台上盆的做法。

台上盆不易清洁人尽皆知,可对于爱干净的人来说不算事儿。
核心问题在于:台上盆是凸出的,破坏了浴室柜的整体感,再一次增加了视觉元素,把好不容易挤出来的那点干净清爽又破坏掉了。
小空间就别做了,简单大方好清洁的一体式,很好用。
尺寸建议
台面宽度
600mm起,这个宽度普通体格的人用起来不会太挤,前提是左右两侧是空的,不是墙壁/柜子。
小洗手间浴室柜尽量别超过800mm,太堵了,还需要更大收纳空间,就不如直接上一个高柜。
台面进深
500mm左右,太浅了溅水,太深了探腰。
宜家这款超浅盆,深度只有40cm,水龙头都要装侧面,除非超超超小空间,就别折磨自己了。

给一个简单粗暴的搭配建议:
洗手间面积4m²以下:
悬浮台面+超薄镜面
悬浮台面+镜柜/高柜
洗手间面积4-8m²:
悬浮台面+大镜面镜柜+高柜/极简地柜
洗手间面积8m²以上:
大镜面镜柜+极简风地柜(+高柜)
大镜面镜柜+双台盆极简风地柜(+高柜)
选购要点
价格区间
现代简约风的浴室柜,配基础的陶瓷一体盆和台面,在2000-5000元这个价格,性价比最高。
如果你是亲自跑工厂定制,记得不要大砍价。
浴室柜大都是半成品,有单子按尺寸做,板材、饰面、五金各种水准的都有,灵活组合。
比如高档的用UV底+双组全水性油漆,一般的就用免漆板,你压下来的价,一定是材料成本,而不是商家利润,到头来吃亏的还是自己。
想有好价格,建议线上买,比线下店美好得多,线下店也可以多逛几家询价再下手。
选自有工厂品牌
买大牌是买标准,但浴室柜技术难度不高,用料好就是保障。


浴室柜生产工厂
来源:住范儿自摄
设计上各花入各眼,基础简约造型差别不大。
大牌代工,品控不确定、压成本提价格,对消费者来说特别不友好,比如摩恩、安华这些。
自有工厂的品牌更值得买,广东特别大的几个像尚高、富兰克林都不错。
定制优于单独成品
预算够就定制,不管是浴室柜、衣柜、橱柜,能定制肯定不买独立成品。
柜体的大尺寸严丝合缝,既能有效利用空间,又不会留缝隙、参差不齐显乱。

收纳小尺寸也可以根据自己的需求来定,成品浴室柜经常会有难以利用的收纳空间,还得额外搞搁板、收纳 盒 来补充。
镜柜内留插座
可以给电动牙刷、剃须刀充电,吹头发也不用扯长长的电线,用过的都说好!住范儿颜值革命也有内置插座的镜柜选项,广受客户好评。
做水电之前跟工人说好留口即可,并不麻烦,也省了洗手间电源需要防水遮罩的一大坨。
环形镜前灯效果最好
只要光线够好,人人都是冷白皮小仙女。
镜前灯排布方式按效果排序:环形>左右两侧;单侧和顶光的等根本不要考虑,要么照度不均匀、要么有投影、晃眼睛。

魔鬼顶光,满脸都是投影
这几年流行起来的圆镜子环形灯照明效果最好,但圆形柜子没法有效收纳,自己取舍吧~

两侧灯就像百老汇后台化妆间那种,想装饰更足也可以换成好看的壁灯。

无边镜容易损坏
无边镜是流行趋势,不止浴室镜,装饰镜也越来越多无边框设计。
无边框+大尺寸,就是显大!就是高级!


但它在运输和日常使用过程中都更容易破损,边角尖锐,尤其不适合有小朋友的家庭。
镜柜最好带边框,无柜可以考虑带边框的超薄圆镜,有种复古酷感,像郑希怡姐姐“点头杀”的魅力。


热门品牌
浴室柜行业跟卫浴洁具几乎完全重合,做马桶起家的做整体卫浴,做龙头花洒起家的也要做整体卫浴,浴室柜就跑不了。
所以浴室柜厂家主要有两种:卫浴洁具公司的副线,比如科勒、恒洁;主打浴室柜的专门品牌,比如尚高。
但是,卫浴洁具的核心技术是陶瓷,浴室柜是板材,术业有专攻,浴室柜大厂是性价比最高的。
国内的生产地集中在佛山、潮州、杭州、许昌,大体上广东厂家精品率最高,杭州许昌等小作坊多、品质参差不齐,唐山厂家出口为主。
恒洁卫浴
价格区间:2000-7000元
在国产卫浴品牌里,恒洁浴室柜的市占率很高,他家最擅长的是陶瓷洁具,属于这类品牌里浴室柜比较值得买的品牌之一。

品质和设计比较均衡,不特别出彩也没有啥问题,业界说恒洁“千店一面”,渠道管理做得很好、品控比较稳定,这点令人放心。
总体上属于性价比比较高的。
松下
价格区间:5000-10000元
卫浴产品里松下最擅长的是智能马桶盖,其他都不算有大优势,浴室柜首先很贵。

品质不错,功能性细节规划得好,外观设计有点老派,对品牌有执念/喜欢他家设计(预算足)值得入手。
尚高
价格区间:2000-8000元
专业浴室柜品牌之一,工厂体量全国靠前,主打现代风格板材浴室柜,轻奢、复古也有,产品线比较齐全。

买现代风格基础款式浴室柜比较推荐他家,也是住范儿4.0浴室柜合作企业,性价比高。
心海伽蓝
价格区间:2000-5000元
佛山卫浴品牌,雅颂和他家同一公司。纯实木浴室柜是他家拳头产品,近几年开始做板材浴室柜。
现代轻奢风比较多,品质不错,喜欢他家设计风格值得入。

富兰克卫浴
价格区间:1500-4000元
也是自有工厂中靠前的大厂,以前也是欧式古典为主,品质可以。
现在主做复古/仿古浴室柜,新中式设计不错,但运营太差,渠道一塌糊涂,不好买。

迪维克卫浴是他家的电商品牌,更偏现代风格,喜欢款式设计值得入手。
雷丁卫浴
价格区间:3000-8000元
雷丁浴室柜的外观设计我是拒绝的……也是佛山品牌,烤漆工艺好,现代烤漆浴室柜的品质在业内评价不错,价格也合理。


设计上有一些很可怕的装饰款,简洁基础款比较值得入手。
宜家
价格区间:800-2000元
低预算首选,单镜子配高柜不到千元,品质大家心里有预期,材质和工艺透明,款式基础大方。

超小卫生间、低预算去宜家买挺合适,他家有价格很友好的超小柜/盆。
科勒
价格区间:3000-8000元
科勒的拳头产品一直是马桶,台盆都不算顶级,五金和浴室柜也比较一般,浴室柜代工厂在佛山,完全国产化,与国产品牌区别不大。

设计不算特别出彩,品牌溢价略高,综合性价比一般,折扣力度大时可以入手。
最后想说,我始终坚持一切的家居设计都是从居住者习惯出发的,先有自己的需求、再去找满足需求的方法。
有的人的需求就是浴室柜用不上,也有人就觉得洗手间没有浴室柜就像火锅不给吃宽粉。
可能家装也跟人生一样突然拔高,想清楚你到底需要什么,才能收获真正想要的东西。