【西安就今朝装饰设计师】两年前,我给西安蔷薇溪谷的一个客户做设计,这个客户的公司开在我们今朝装饰边上的高新二路上,但他的房子却买在离公司很远的蔷薇溪谷,我问他这样是不是很不方便,他说【工作跟家一定要分清楚,公司需要在闹事里争取一席之地,但家必须是远离闹区的宁静之所】,后来当我住到现在的家,才明白他说的意思。
【本案小区】西安绿地与湖小区
【设计风格】现代简约风格
【施工单位】西安装修公司 今朝装饰
【装修模式】半包+主材代购
【业主要求】三口之家,孩子上初中,简单大方,动静分离,一定要有家的氛围,改善居住环境
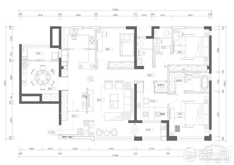
整体拆改后的布局,主要动的是【玄关 】、【厨房】、【餐厅】、【客厅过道】、【书房主卧合并】

1、玄关的小心思!玄关是我们开门的第一眼,这个区域在好用的基础上必须要干净、整洁、美观。跟阳台一体的玄关中间做了半镂空的隔断,加上软装配饰,这个区域就成了我们留给他人精致的【第一印象】!

2、客厅太过【宽敞】该怎么办?很多人都觉得客厅的空间应该大一点,这样显的空间大,活动方便。这些想法因人而异,对于只有三口的家,这么大的空间无意是显的空旷且面临一进门就一览无余的尴尬,所以我们针对这些做了一个简单的缓冲隔断,利用隔断做一个走廊,更符合我们人体的活动曲线。

3、从【假过道】进来的第一眼就是改造后的厨房,一个中西式+吧台一体的超大型厨房。厨房对于我们中国家庭来说,不管是一个做饭的区域,更是表达我们对家人健康重视跟对生活细致化的一个地方。把原有的餐厅位置囊括到厨房里,便于操作,为喜欢下厨的主人提供一个超大的发挥空间。

4、厨房的扩建是牺牲餐厅为代价,那么餐厅的位置呢?一个现代化的家里不能没有餐厅!

5、为了达到【动静分离】的居住环境,我们在原有格局上做了改动,把之前书房的位置改成了独立餐厅的位置,为全家提供了一个明亮、宽敞的用餐环境。好的美食也是需要一个轻松优雅的环境来衬托的。【我原先居住的房子,卧室就在厨房的边上,每当晨起或是其他休息时间,一旦有人在厨房做饭,睡在隔壁的我根本无法休息,这也是我这次建议客户更改格局的一大原因之一,很多提议只有在你亲身体验过之后才能建议 】

6、客厅的布局跟造型都是精简过的,现代人的客厅,尤其是对于有在上学的家庭来说也许在周末或是节假日的时候才能发挥它真正的作用,剩余的时候我们可能更多的是在餐厅或是书房度过。所以给客厅只做了简单的摆设。

7、我跟这家女主人都有一个相似之处,我们一样喜欢下厨做饭,但喜欢一个独自在厨房忙碌,可又希望在客厅看电视或是看书的另一半随时都能看到我们的举动,适合出现搭把手。或是当家人聚会的时候我能在客厅休息时随时观看到餐厅那帮胡吃海喝的动态。这就是当时做这个尺寸的电视墙的原因。【所以,设计,每一处都是有尺寸、有分寸、有寓意的 】

8、对于以不再是喜欢斑斓的年纪,这种暖色调的咖最为合适了,配上一套有质感的家具,一盏台灯,一幅挂画,家的氛围宁静又美好。

9、整个客厅后面的【静区】都是做了调整的,扩大了主卧的空间,让主卧有了独立的衣帽间以及简单办公的区域,还做了一个【地台】,全家熄灯后,我们可以席地而坐,谈谈近期身边发生的趣事,聊聊前不久冷战的原因,沟通很重要,所以也需要给它提供一个【话家常】的地方!

每个户型都它的可圈之处,每个家庭都有各自的需求,设计是让生活更美好,也让我们在这个家里得到更好的生活体验,找到更好的自己。对于现在还处于不知如何设计自己房子的亲,可以扫下方今朝装饰二维码跟我们设计师在线沟通,或是拨打本案设计小组电话:133-7928-8362咨询!
添加微信时,请务必帮我们注明【装修+装一网】,谢谢您的配合!