
项目地址:华润桃园里
主案设计:刘卓
房屋面积:145m²
外观系列:极简抽象
案例户型:四居室
设计单位:鸿扬家装
绝大多数的人
在生命的旅程中
都携带了沉重
甚至是超重的行李箱
· 多明妮克·洛罗 ·


打破桎梏,无视偏见,定义自己,定义高级,这样的生活,怎能让人不爱。
今日分享案例的屋主,是一位有着自己独特个性的女生,生活中,她独立自主,一直坚持做自己,热爱舞蹈音乐的她,始终认为,生活是自己的,无需去看待他人的目光。
一个人居住的家,跟着自己的心,自由、简单、自在、纯净,是屋主对家的想象。
原始结构VS平面布置
YUANSHIJIEGOU VS PINGMIANBUZHI
▼

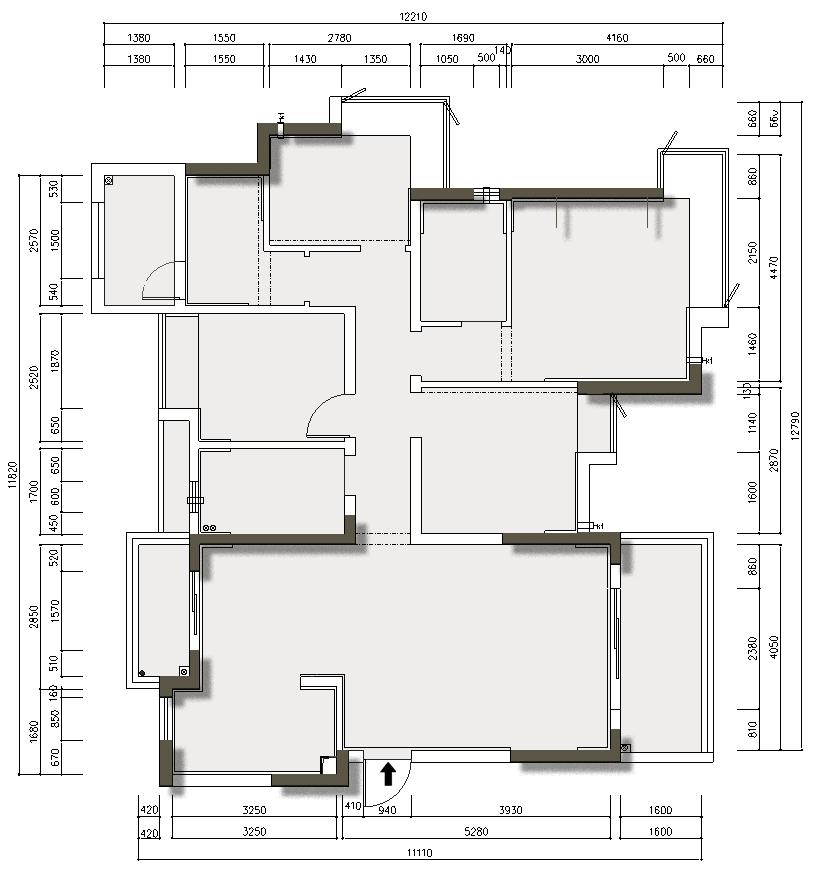
▲原始结构图
关于原始结构
1、阳台与客厅相隔,光线无法进入室内,空间昏暗;
2、主卧面积较小,空间缺乏通透感,睡眠氛围较为压抑;
3、作为房间的娱乐区,隔墙较多,整个空间不连通。

▲平面布置图
设计改造方案
1、将客厅与阳台打通,引进更多的光线,让空间更加明亮通透,开放式的厨餐区域,打造LDK一体化设计,动线流畅;
2、两卧合并为一卧,将主卧打造成一个大套间,增加衣帽间,空间更宽阔,生活更便利,完美贴合业主需求;
3、去除娱乐区整个区域的隔墙,以此形成一个整体空间。


▼



在以白色为主基调的空间之中,去凡脱俗回归本质,生活,本应简单,家亦是如此,在这一方素净中,自由生长。



沙发背景墙的定制墙挂,凸显高级感,全房采用无主灯设计,用最干净的方式诠释体与块的关系,营造舒适感,柔和的灯光静静落下,有明有暗,温柔且炙热,制造温暖氛围。


米白色的模块沙发,随心组合,想怎么摆就怎么摆,让宅家变成一种享受,北欧铁艺茶几,秉承简易风格,与整体相呼应。

深色地砖与灰色编制地毯,为浅色的空间带来一丝厚重,避免颜色的重叠,在这一方天地,摒弃纷扰,保留纯粹。


▼

餐厅继续延续极简风,干净简单的就餐环境,将饮食的焦点聚集于美食本身,让生活,更加的多姿多味。


特色的藤编餐椅与绿植盆栽的设置,增强空间与自然的沟通和互动,为生活增添一些新鲜感。
恬淡自由的生活,慢慢沉淀在记忆之中的浅浅的快乐,让日子成为一道风景,在最舒适的状态,获取幸福。

【本案图文由鸿扬家装提供】