太古里·祥荷秀中式手工定制服装店|北京人和明天品牌设计-欧模网
项目名称:祥荷秀中式手工定制服装店铺空间设计
主创设计师:王末
协作及执行团队:北京人和明天品牌设计顾问有限责任公司
完成年份:2019.5
建筑面积:70平方米
项目位置:北京市 朝阳区 三里屯太古里 南区
摄影师:和威

此次项目是为一家中国传统手工刺绣品牌进行空间设计。项目选址于北京,位于年轻人的聚集区三里屯太古里,主理设计师希望借由一种新旧融合的东方设计语汇使得更多年轻人接受中国的传统服装并将其设计进行日常穿着。
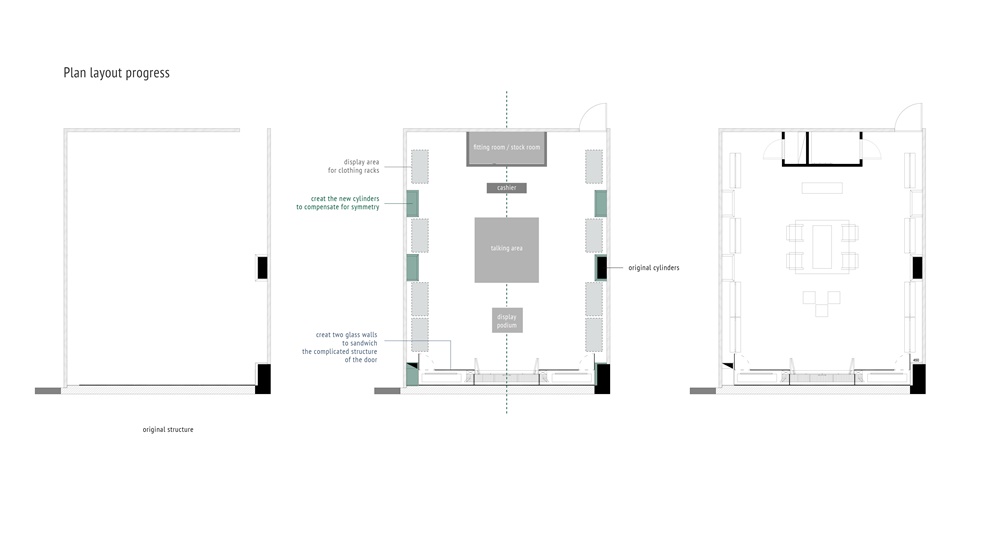
空间布局:参考了中式建筑传统的单轴对称剧中的格局布置方式,增加立柱将原先的非对称空间补足使得空间呈现高度对称。


鉴于空间可用高度仅为2.6m,使用了镜面天花使得空间的视觉高度得以充分延伸。

由于整体实际空间面积仅七十平米,空间分割策略采用功能区域的软性分割方式,除却试衣间及小型储物仓库区,其他功能区域共享了同一空间,而放弃了用实体墙面进行空间拆分。试衣间的设计仅有不足三平方米的面积。而将四枚大尺寸穿衣镜安置在店内的柱体墙面上,以便引导顾客将试衣过程的后半部分在共享空间中完成,提升了顾客试穿时的舒适度,同时也引导顾客帮助店铺成功吸引透明橱窗外走过的客流。

为融和玻璃橱窗本身的现代性与门头设计的纯粹中式风格,将橱窗的玻璃平面延伸至门头区域进行统一的一体化封装。

道具设计
橱窗道具:橱窗中的方墩使用了非传统中式风格的镜面不锈钢材质,以传统的水纹图案进行全手工的拉丝处理加以中和风格的现代感。方墩高度同时考虑到店内人员更换橱窗展示服装时更为方便。


衣架:考虑到中式服装两片式的传统剪裁,以及宽大廓形的特征,特别设计了专用的衣架,以便更好的展示服装上刺绣手工艺的华彩。

∇龙门架细节

穿衣镜:采用了大理石基础的方柱,而又同时使用了传统中式的莲花纹样柱头。

正门:门相对较宽,开门状态下,为避免近门口处店内两侧的服装在视线上被遮挡,因此把门拆分成四扇,以便降低开门时的整体长度。

∇门把手细节

∇平面图

素材来源:欧模网-专业3d模型*载下**网站,本文转自欧模设计圈-室内设计案例分享平台
https://www.om.cn/