都说成都人爱生活、懂享受,
今天看完这个设计到极致的案例,
才真正把这句话体会了个淋漓尽致。
一座35㎡的单身公寓,可谓是“机关算尽”,
每一寸空间都兼具了美观、实用与灵活。

大有大的宽敞,小有小的温馨。
一直就期望有一座自己住的公寓,
小小的空间,让人非常有安全感。
不过,小空间的收纳难题也是老生常谈了,
相信这次的设计能为有着同样心思的你,
提供很多不一样的灵感!
❖
先了解一下这间小公寓的特点——

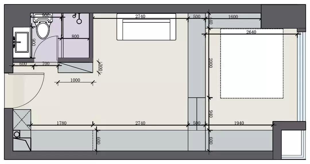
▲ 原始平面图
整屋面积仅有35㎡,好在房型方方正正。
入户左手边是迷你的卫生间,
右手边是简单的开放式厨房。
较宽敞的空间是客厅,没有独立卧室。

▲ 平面布置图
本案例的屋主是个热爱生活的年轻人,
买下这间公寓,平时主要是自己住。
要知道,屋主可是绝不凑合的——
足足的收纳空间当然要有,但不能太过拥挤;
私密的起居空间也要有,还要兼顾休闲娱乐。
嗯,确实是个需要好好花心思的活儿……
不过这可没有难倒机智的设计师~

虫工设计

服务内容
1.硬装设计:平面布局SU、全套空间效果图、施工图、硬装主材搭配
2.施工配合:与施工方施工图交底、施工途中配合方案落地
3.整体软装搭配:软装方案、软装清单
❖
玄关


装饰画:印象视觉装饰画工作室
鞋柜:IKEA鞋柜
进门左手边是卫生间和IKEA鞋柜,
色彩搭配上用了经典的黑+白+金组合,
打造出浓浓的北欧风既视感。

卫生间的门采用了长虹玻璃+铁艺,
既增加了卫生间的采光,
又为迷你的室内空间增加通透开阔感,
避免了传统木门造成的幽闭感。


颜色的搭配组合也是非常宜人。

烛台:URFF DECO
这个家中充满各式各样的摆件,
装饰画、烛台、绿植……
用浓浓的北欧风细节去画龙点睛,
让每一处角落都不乏美感。
❖
客厅

一眼望去,这个客厅真正是说明了,
什么叫“麻雀虽小,五脏俱全。”
我们一点一点来研究——


狭小的户型,采光的重要性更为凸显。
除了有一扇朝阳的大窗户,
选用干净的浅色墙打底会让空间更明快,
搭配原木色则增添了几许清新与自然。

沙发:筑睿之家家居
丝绒抱枕:虫工定制
孟菲斯风格的沙发背景墙,
颜色搭配清新宜人,兼具动态艺术感。
据设计师说,这种乳胶漆分色墙操作难度大,
硬生生把刷漆师傅逼迫成了墙绘师


在之前的案例中曾反复强调,
小户型的家具一定要选择纤细、通透的款式。
设计师就为屋主选择了小细腿的吧椅,
以及镂空底的小茶几,
干净利落的金属线条丝毫没有拥堵感。


沙发选择了可以打开的款式,
展开就是1.4*2m的小床,
一室变两室,增加睡眠空间,
亲戚朋友偶尔来小住也不怕啦。


倚在柔软的丝绒抱枕上看会儿书,
或者与朋友来一局游戏,
一个人的闲暇时光就是如此的惬意~

装饰画:虫工DIY画

沙发旁边的墙壁也没有被浪费,
L型置物架摆上了装饰画,也可用作储物空间。


柜体:亚楠全屋定制
客厅的正面,是大面积的柜体,
包含衣帽区、电视墙与厨房。
颜色是干净自然的白色+原木色,
具备超强大的收纳功能,又有一定装饰性。
❖
餐厅


餐厅的设置可以说是非常机智了!
因为平时就是一个人吃饭,
一座简洁的吧台就足以实现全部功能。
吧台同时又担任了隔断与功能分区的角色,
左边是客厅,右边是卧室,很强大!

圆形展架:丝蕴家居

长长的吧台桌也是不小的储物空间,
客厅、卧室的各类小物件尽可以摆放。
墙壁上悬挂的圆形展架灰常美貌~


椅子:北欧铁艺家具工厂店
纸巾盒:尚贸易创意
拥有小细腿的吧椅舒适又美貌,
是设计师大力推荐的一款单品哟~
不过目光全被这个纸巾盒吸引走了!

吧台的使用功能也可以灵活切换,
可以做餐桌也可以做办公桌。
❖
卧室


吧台的另一侧就是卧室了,
蓝白色床品与整个空间色系完美融合,
看似沉静,实则暗藏玄机哦!

1.8米的超舒适大床,床垫是可翻折的,
是不是感觉心机满满?
其实设计师的心机,可不止这一处——


床品:长野夕
窗帘:虫工自制
心机1:床头和床侧都做了收纳空间,
衣物、床头读物、零食等,随拿随发~

心机2:台阶也做了收纳抽屉,
出于防撞考虑,选择了皮质拉手,
整个卧室的地板之下,都是收纳空间!


衣柜:爱格衣柜
心机3:由客厅延伸而来的整面柜子,
在卧室做成了超级宽敞的衣帽间,
旁边还有灵活的储物格子收纳各种小物件~


心机4:最后是我们的压轴大Boss,
床下其实藏了一张升降桌!
将可翻折床垫收起来靠墙立放,
将榻榻米升降桌抬高,卧室瞬间变休闲区!

看,变身完成!已经看呆~
到时候来几个朋友,大家坐在这里喝茶,
看着窗外景色聊天,真是再好不过了。

装饰画:印象视觉装饰画工作室
随处可见的点缀,为卧室提升颜值。
❖
厨房


冰箱:TCL-163升
油烟机:老板电器
进门右手边就是开放式厨房,
虽然面积不大,该有的功能可一个不少。

内嵌式电磁炉,触摸式橱柜灯,
减少高低不平的凸起物,
也是增加开阔感的好办法。


颜色当然还是延续白色+原木色啦,
右边的烟管做了包管,
还挤出了一点空间做了储物格子。
❖
卫生间

仅有3㎡的卫生间也做出了干湿分区!
亮晶晶的花白瓷砖显得干净,
设计师采用了侧边隐藏式下水台盆,
在下方省出来的空间塞进了一个洗衣机。

马桶:九牧智能马桶

唯一失误是镜子买成了带边框款,
没能打造出原本想要的日食既视感,有点遗憾~
最后还是要敲小黑板强调,
在小户型里,要尽可能避免多余的边框设置,
会造成强烈的分割感,使空间显得狭小。
❖
打心眼里喜欢这个小户型设计,
它提供了太多可借鉴的地方——
在家具上,选择线条秀气、可折叠的款式;
在颜色上,要用明快的亮色为基底;
家具尺寸要精打细算、尽量采用
若能一物多用、功能区切换,是最理想的。

房屋信息
硬装设计:虫工空间设计
软装设计:rainbow软装设计
设计风格:现代&北欧
项目地址:成都市新城吾悦广场
项目类型:公寓
设计面积:35㎡
设计造价:8w(含软装及电器)
设计材料:冠承建材、亚楠全屋定制、rainbow软装、老板电器等
本文来源于网络