注意:综合水利水电枢纽认知教学实训设备制作方案为初步设想理论方案,具体实施需要根据设计详细的布置图,尺寸图,效果图等来进行实施制作。
一,设备整体介绍 : 综合水利水电枢纽认知教学实训设备整体以阶梯状逐级下降结构展示,以水利水电为主导,周边综合体现:土木工程,城市交通,火力发电,风力发电,输变电,物流港口调度,环境工程,城市布局,水资源利用,地理地形等,设备真实过水模拟,数字话信息采集,采用定制智能软件搭载触屏主机控制设备动态,动画演示,语言讲解。(具体体现请见制作方案详情)
二,设备基本参数介绍:
名称: 综合水利水电枢纽认知教学实训设备
尺寸: 13.4m*37.5m(尺寸与模块可定制)
主要制作材料:
(1) 设备制作材料: 亚克力,PVC,工程塑料,ABS,LED灯,LED灯带,PV板材,铝塑板,树脂,金属(铜,铝,不锈钢,方钢,角钢等),高级汽车烤漆,防水材料,大芯板,专用胶水,仿石漆,硝基漆,草粉,模型树,路灯模型等。所用材料皆符合欧盟环保标准E0级,环保无毒无害,无异味。
(2) 控制系统组成:
控制系统主要设备:西门子PLC(端口数根据实际情况采 购),触屏主机,爱普生投影仪器,雅马哈音响,定制配套软件。电机,继电器,水测试传感器(根据业主需要测试的数据来设计定制)
制作工艺 :采用高精度激光雕刻切割板材,板材表面工艺采用三维雕刻,单件倒模成型(采用专业软件(solidworks)数字建模,根据数字建模通过数控车间加工内模),通过模具进行倒模压制成型。倒模成型的部件通过人工手工组装,手工打磨优化,PVC有色组件采用无尘喷绘上漆,无尘恒温烤房烘烤。山体地形采用树脂倒模成型,仿石漆造型打造土壤,石头环境,山体上附高亮草粉模型数点缀。
(1) 烤漆工艺:烤漆是在基材上打三遍底漆、四遍面漆,每上一遍漆,都送入无尘恒温烤房,烘烤,优点:颜色艳丽,不易脱落,易清理维护,防潮防腐蚀。
(2) 模型底座:采用镀锌方钢为骨架支撑,PU板材贴面,不锈钢包边。
模型使用参数 :
工作电压220V;电流25A交流;工作功率10kW;适于在气温为摄氏-40℃~+50℃和相对湿度为90%的环境条件下运输和贮存;适用于在电源220V(±10%)/50Hz、气温摄氏+15℃~+30℃和相对湿度小于80%的环境条件下运行,能够连续正常工作;配置符合中国有关标准要求的插头
综合水利水电枢纽认知教学实训设备制作方案详细说明
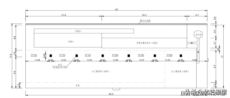
根据现场实地考察,专业老师沟通以及根据华北水利水电大学内相关专业(模型主要综合了:水利专业,土木工程专业,地理地貌测绘专业,土木与交通专业,电力专业,机械专业,环境工程专业,市政工程专业,水资源专业,建筑专业等专业学科的认知教学功能,实训功能等。综合水利水电枢纽认知教学实训设备初步设计图纸如下:综合水利水电枢纽认知教学实训设备摆放场地图纸(图1-1),综合水利枢纽平面布置图(图1-2),周边环境功能区平面图(图1-3),综合水利枢纽整体平面尺寸布局图(图1-4)

综合水利水电枢纽认知教学实训设备摆放场地图纸(图1-1)

综合水利水电枢纽认知教学实训设备(水利枢纽)规划平面图(1-2)

周边环境功能区平面图(图1-3)
1:太阳能,风力发电模块 2:火力发电厂模块 3:输变电模块 4:地质地貌地层结构模块 5 自来水厂模块 6 惠南庄泵站 7抽水蓄能电站模块8:内陆港口模块
9 城市规划建设模块 10:火车站模块 11潮汐发电 12 农田灌溉模块 13 丹江口汉江公路大桥模块

综合水利枢纽整体平面效果图(图1-4)
综合水利水电枢纽认知教学实训设备是以水利水电专业,水利枢纽为主导设计制作的综合教学设备,水利枢纽主要包括:白鹤滩水电站(双曲拱坝),水布垭水电站(面板堆石坝)模型,丹江口水电站(重力坝)模型,小浪底水电站(土石坝)模型,渠道模型,渡槽模型,引水闸模型等水利水电,水利枢纽,水工建筑模型
同类型模型参考图片:

综合能源发电模型

水利枢纽沙盘模型

水利枢纽沙盘模型

水电站发电原理模型,水电站模型

新能源模型

三峡水利枢纽模型

三峡水电站模型

新能源综合发电模型

新能源模型

新能源综合发电模型

新能源模型