文/慧心引力佳
编辑/慧心引力佳
随着电力需求的不断增长,火电厂作为一种主要的发电方式,在能源行业中占据重要地位,火电机组承压部件温度管座作为火电机组的关键组成部分,其安全性直接关系到整个火电厂的运行稳定性和安全性,因此,深入研究火电机组承压部件温度管座的安全性影响因素以及相应的优化措施,对于提高火电厂的运行效率和安全性具有重要意义。
在分析火电机组承压部件温度管座的安全性影响因素,并提出相应的优化措施,为火电厂的设计和运行提供参考和指导。

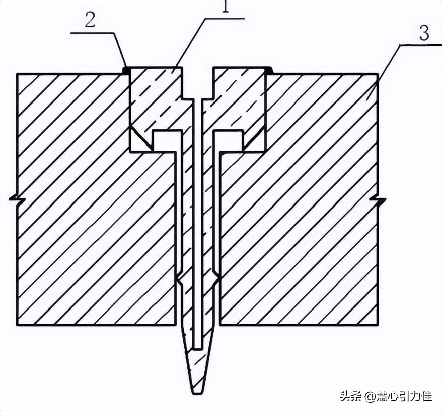
一、火电机组承压部件温度管座的安全性影响因素
温度变化
温度变化是影响火电机组承压部件温度管座安全性的重要因素之一,在火电厂的运行过程中,温度会不断发生变化,从常温到高温再到冷却过程,温度的快速变化可能会对承压部件温度管座产生不利影响。
温度的变化会导致管座的膨胀和收缩,当温度升高时 ,管座所采用的材料会发生热膨胀 ,导致管座的尺寸发生变化,这种膨胀和收缩可能会引起应力集中,尤其是在管座与其他部件连接处,增加了管座发生破裂或变形的风险。

温度的快速变化会引起管座的热疲劳,当管座在高温和冷却的循环过程中,由于温度的变化导致 管座不断经历热胀冷缩的过程 ,这将引起材料的热疲劳现象,长期以来,热疲劳会导致管座的强度下降和裂纹的形成,最终可能导致管座的失效。
此外,温度变化还会影响管座材料的力学性能,高温环境下,管座所 采用的材料的强度和韧性通常会降 低,这使得管座更加容易发生破裂或变形,而在温度迅速降低的冷却过程中,材料可能出现冷脆性增加的现象,也会增加管座的脆性破坏风险。
温度变化对火电机组承压部件温度管座的安全性产生重要影响,为了保证管座的安全运行,应该采取相应的措施,例如合理控制温度的变化范围,设计和选择具有良好耐高温性能的材料,优化管座的结构设计,加强管座的监测和维护,以及合理安排冷却过程等,以减少管座在温度变化条件下的风险,确保火电厂的安全运行。

压力变化
压力变化是影响火电机组承压部件温度管座安全性的重要因素之一,在火电厂的运行过程中,承压部件所承受的压力会有周期性的波动,这种不稳定的压力变化可能导致承压部件温度管座的 破裂和泄漏 ,给火电厂的安全运行带来严重威胁。
压力变化会引起管座内外的应力变化,当压力突然增大或减小时,管座所受到的压力载荷也会相应增大或减小,这会导致管座内部的应力分布发生变化,可能造成管座的应力集中,从而增加了破裂和疲劳的风险。
其次,压力变化还可能导致管座的变形和失效,当压力突然增大时,管座可能会受到过大的压力载荷,从而导致其变形或破裂,相反,当压力突然减小时,管座内部的压力会迅速降低,可能导致管座出现负压现象,使其受到拉伸力,进而导致管座的拉伸变形或破裂。

此外,压力变化还会对管座的密封性能造成影响,在压力变化的作用下,管座的密封结构可能会发生变形或松动,从而导致泄漏的发生,泄漏不仅会造成能源资源的浪费,还可能引发火灾、爆炸等严重的安全事故。
为了解决压力变化对火电机组承压部件温度管座安全性的影响,可以采取一系列的优化措施,可以加强管座的设计和制造,选择高强度、抗压性能良好的材料,并合理设计管座的结构,以提高其抗压能力和密封性能,应建立完善的压力监测系统,实时监测管座所承受的压力变化, 并及时采取措施进行调整和控制, 此外,定期对管座进行维护和检修,及时发现和处理管座内部的问题和缺陷,以确保其安全可靠运行。

材料强度
材料强度是影响火电机组承压部件温度管座安全性的重要因素之一,选择合适的材料并进行强度分析对于管座的安全运行至关重要,优质的材料具有 较高的强度和抗高温、抗腐蚀等特性 ,能够有效地提高管座的安全性。
在设计和制造火电机组承压部件温度管座时,需要考虑管座所承受的高温和高压环境下的工作条件,材料应具备足够的强度和耐受能力,以承受温度和压力的作用,并保持其结构的完整性和稳定性,对于高温环境下的管座,通常选择具有较高抗热应力和抗热疲劳性能的材料,如高温合金或耐热钢等。
此外,材料的抗腐蚀性也是一个重要考虑因素,由于火电机组承压部件温度管座常常处于恶劣的工作环境中,如高温、高压、高湿等,容易受到腐蚀和氧化的影响,因此,选择具有良好抗腐蚀性能的材料,如耐酸耐碱的不锈钢或合金钢等,可以有效延长管座的使用寿命,并减少因腐蚀引起的结构损坏和安全隐患。

在材料强度方面,除了材料的选择,还需要进行强度分析和计算,通过使用适当的强度计算方法和工程力学原理,对管座的结构进行强度分析,可以评估材料的承载能力和稳定性,这些分析结果可以指导设计和制造过程中的材料选择,确保管座能够在工作条件下承受相应的负荷, 并避免材料强度不足或存在缺陷导致的破裂或变形 。
总之,材料强度是确保火电机组承压部件温度管座安全可靠运行的关键因素之一,通过选择合适的材料,并进行强度分析和计算,可以提高管座的抗压能力、抗热疲劳性能和抗腐蚀性能,确保其在高温高压环境下的安全运行。

二、火电机组承压部件温度管座安全性优化措施
温度控制和监测
温度控制和监测在火电机组承压部件温度管座的安全性中起着至关重要的作用,通过合理的温度控制和监测,可以有效降低管座的风险,确保其安全运行。
温度控制是指通过调整火电机组的运行参数,使温度保持在安全范围内的过程,对于承压部件温度管座而言,温度的剧烈波动可能导致管座膨胀和收缩,增加了应力集中和热疲劳的风险,因此,需要对火电机组的运行进行精确的控制,避免温度的突变和过高温度的出现,这可以通过调整燃烧参数、冷却系统的效率以及其他相关控制策略来实现。

温度监测是指对承压部件温度管座的实时监测和数据收集,通过安装温度传感器和监测设备,可以实时获取管座的温度信息,这些数据可以被传输到监控中心或控制室,供工程师和操作人员进行实时监测和分析,温度监测可以帮助发现温度异常和危险信号,及时采取相应的措施,防止管座温度超过安全限制,此外,通过长期的温度数据分析,还可以进行趋势预测和故障诊断,提前预警和预防管座的潜在问题。
温度控制和监测是相互关联的,通过合理的温度控制,可以稳定管座的工作温度,降低温度的变化幅度,同时,通过温度监测,可以及时掌握管座的实际温度情况,确保温度在安全范围内,这种综合的温度管理方法可以 提高管座的安全性 ,减少温度相关的应力集中和热疲劳的风险,保障火电机组的稳定运行和安全性。
总之,温度控制和监测是火电机组承压部件温度管座安全性的重要环节,通过 合理的温度控制,可以稳定温度 ,降低温度变化对管座的影响,通过温度监测,可以实时获取温度数据,发现异常情况,并及时采取措施进行处理。

材料选择和强度分析
在火电机组承压部件温度管座的设计和制造过程中,材料选择和强度分析是确保其安全性的重要环节,材料选择是基于管座所处的工作环境和工作条件进行的,对于火电机组承压部件温度管座来说,常见的 材料选择包括高温合金、不锈钢和碳钢等 ,这些材料具有良好的耐高温性能、耐腐蚀性能和机械强度,能够承受高温、高压和腐蚀等恶劣环境的影响。
在材料选择之后,进行强度分析是确保管座安全性的关键步骤,强度分析是通过应用工程力学原理和材料力学性质,对管座的受力和应力分布进行计算和评估,这种分析可以确定管座在工作条件下的应力水平,以及是否满足强度要求和安全因子,如果应力超过了材料的屈服强度或者设计要求, 就可能导致管座的变形、破裂或失效 ,因此,强度分析的目标是确保管座在工作条件下具有足够的强度和刚度,以满足承受压力和温度变化的要求。

在进行强度分析时,需要考虑到管座的几何形状、材料的物理性质、工作温度和压力等因素,常见的强度分析方法包括有限元分析、应力分析和疲劳寿命评估等,有限元分析是一种常用的计算方法,通过将管座划分为有限个小元素,并对每个元素进行力学分析,从而得到整个管座的应力分布情况,应力分析则是根据管座所受到的压力和温度变化,计算出相应的应力水平,疲劳寿命评估则是通过考虑应力的循环加载和材料的疲劳特性,预测管座在长期使用过程中的寿命和可靠性。
材料选择和强度分析是确保火电机组承压部件温度管座安全性的重要步骤,合适的材料选择和科学合理的强度分析能够确保管座在高温、高压和腐蚀等恶劣环境下的稳定运行。

合理的设计和制造
在火电机组承压部件温度管座的设计和制造过程中,合理的设计和制造是确保其安全性的重要环节,在设计方面,需要注重管座尺寸和形状的合理设计,合适的尺寸可以确保管座能够承受预定的温度和压力,并具备足够的强度和稳定性,同时,考虑到管座在高温条件下的膨胀和收缩,合理的形状设计可以减少应力集中,降低破裂风险。
在制造过程中,应采用优化的制造工艺,制造工艺的选择和控制对于管座的质量和安全性至关重要,通过合适的材料加工和连接工艺,可以确保管座的内部和外部结构紧密牢固,减少可能 存在的缺陷和弱点 ,此外,制造过程中的质量控制和检验也是关键步骤,通过严格的检验和测试,可以排除制造缺陷,提高管座的可靠性和耐久性。

在整个设计和制造过程中,还需要进行强度分析,通过对管座的强度计算和仿真分析,可以评估其在不同温度和压力条件下的应力分布和变形情况,这有助于确定合适的材料和尺寸,并优化管座的结构,以 提高其抗压、抗拉和抗热疲劳能力 ,强度分析的结果还可以为管座的使用寿命评估和维护计划提供依据,确保其安全运行。
总之,合理的设计和制造是确保火电机组承压部件温度管座安全性的关键,通过合适的尺寸和形状设计、优化的制造工艺和强度分析,可以降低管座的应力集中和破裂风险,提高其安全性和可靠性,这需要综合考虑材料的选择、制造工艺的控制以及强度分析等因素,以确保管座能够在高温和高压条件下稳定运行,为火电厂的安全运行提供保障。
